
Salvialaan 6
Winsum
contact met
Riant Makelaars Bedum
| 050 301 3775 | |
| bedum@riantmakelaars.nl | |
| 050 8503356 | |
| Molenweg 22, 9781 GM Bedum |
Zeer nette en gemoderniseerde eengezinswoning met drie slaapkamers en een royale achtertuin.
Deze sfeervolle en goed onderhouden woning is instapklaar en van alle gemakken voorzien. Aan de achterzijde is een tuinkamer aangebouwd, waardoor je het hele jaar door kunt genieten van de fijne, groene tuin. De woning beschikt over een vernieuwde keuken en badkamer, is goed geïsoleerd en uitgerust met zeven zonnepanelen.
De woning is gelegen in een rustige straat aan de rand van het gezellige dorp Winsum. Het treinstation bevindt zich op steenworp afstand en het centrum van Winsum is lopend te bereiken. Winsum biedt alle benodigde voorzieningen zoals winkels, scholen en horecagelegenheden. Bovendien is het dankzij de ligging aan het Reitdiep een waar watersportdorp, met vaarroutes richting Groningen en Lauwersoog. De stad Groningen ligt op ongeveer 15 minuten rijden en is ook uitstekend bereikbaar per trein.
INDELING
Begane grond: Entree/hal met toiletruimte. Lichte woonkamer met een speelse verhoging en aansluitend de open keuken (samen ca. 35 m²). De keuken is in 2021 vernieuwd en voorzien van een 6-pits gasfornuis, afzuigkap en vaatwasser. Aansluitend bevindt zich de ruime bijkeuken (ca. 9 m²) met witgoedaansluiting en cv-opstelling. Vanuit de bijkeuken is de aangebouwde tuinkamer (ca. 18 m²) bereikbaar, voorzien van schuifdeuren naar de zonnige achtertuin.
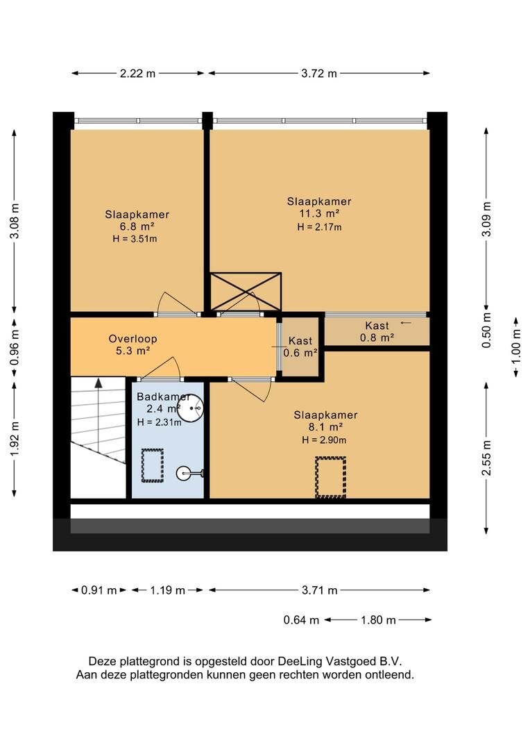
Eerste verdieping: Overloop met vaste kast en toegang tot drie slaapkamers van ca. 11, 8 en 6 m². De grootste slaapkamer beschikt over een praktische kastenwand. De badkamer is in 2025 vernieuwd en voorzien van een douche, wastafelmeubel en een dakraam dat zorgt voor veel natuurlijk licht.
Vliering: Via een luik is de bergzolder bereikbaar, ideaal voor extra opslagruimte.
BUITENRUIMTE
De diepe, groene achtertuin is keurig aangelegd en beschikt over een houten berging en een achterom. Door de vrije ligging aan de achterzijde geniet je van een vrij uitzicht op bomen. De tuin is gelegen op het noorden, maar dankzij de diepte kun je kiezen voor zon of juist een plekje in de schaduw.
GOED OM TE WETEN
- gemoderniseerde en instapklare gezinswoning
- rustige ligging in het gezellige Winsum
- keuken vernieuwd in 2021
- badkamer vernieuwd in 2025
- deels voorzien van kunststof kozijnen met HR++ glas (2023)
- dakgoten en houtwerk/boeidelen voorzijde vernieuwd in 2025
- meterkast vervangen in 2021
- cv-ketel Remeha uit 2015 (eigendom)
- voorzien van 7 zonnepanelen
- royale en groene achtertuin met vrije ligging
- aanvaarding in overleg
Deze sfeervolle en goed onderhouden woning is instapklaar en van alle gemakken voorzien. Aan de achterzijde is een tuinkamer aangebouwd, waardoor je het hele jaar door kunt genieten van de fijne, groene tuin. De woning beschikt over een vernieuwde keuken en badkamer, is goed geïsoleerd en uitgerust met zeven zonnepanelen.
De woning is gelegen in een rustige straat aan de rand van het gezellige dorp Winsum. Het treinstation bevindt zich op steenworp afstand en het centrum van Winsum is lopend te bereiken. Winsum biedt alle benodigde voorzieningen zoals winkels, scholen en horecagelegenheden. Bovendien is het dankzij de ligging aan het Reitdiep een waar watersportdorp, met vaarroutes richting Groningen en Lauwersoog. De stad Groningen ligt op ongeveer 15 minuten rijden en is ook uitstekend bereikbaar per trein.
INDELING
Begane grond: Entree/hal met toiletruimte. Lichte woonkamer met een speelse verhoging en aansluitend de open keuken (samen ca. 35 m²). De keuken is in 2021 vernieuwd en voorzien van een 6-pits gasfornuis, afzuigkap en vaatwasser. Aansluitend bevindt zich de ruime bijkeuken (ca. 9 m²) met witgoedaansluiting en cv-opstelling. Vanuit de bijkeuken is de aangebouwde tuinkamer (ca. 18 m²) bereikbaar, voorzien van schuifdeuren naar de zonnige achtertuin.
Eerste verdieping: Overloop met vaste kast en toegang tot drie slaapkamers van ca. 11, 8 en 6 m². De grootste slaapkamer beschikt over een praktische kastenwand. De badkamer is in 2025 vernieuwd en voorzien van een douche, wastafelmeubel en een dakraam dat zorgt voor veel natuurlijk licht.
Vliering: Via een luik is de bergzolder bereikbaar, ideaal voor extra opslagruimte.
BUITENRUIMTE
De diepe, groene achtertuin is keurig aangelegd en beschikt over een houten berging en een achterom. Door de vrije ligging aan de achterzijde geniet je van een vrij uitzicht op bomen. De tuin is gelegen op het noorden, maar dankzij de diepte kun je kiezen voor zon of juist een plekje in de schaduw.
GOED OM TE WETEN
- gemoderniseerde en instapklare gezinswoning
- rustige ligging in het gezellige Winsum
- keuken vernieuwd in 2021
- badkamer vernieuwd in 2025
- deels voorzien van kunststof kozijnen met HR++ glas (2023)
- dakgoten en houtwerk/boeidelen voorzijde vernieuwd in 2025
- meterkast vervangen in 2021
- cv-ketel Remeha uit 2015 (eigendom)
- voorzien van 7 zonnepanelen
- royale en groene achtertuin met vrije ligging
- aanvaarding in overleg
Over dit object
Overdracht
| Status | verkocht |
|---|---|
| Prijs | € 275.000 k.k. |
Bouw
| Bouwjaar | 1973 |
|---|---|
| Bouwvorm | bestaande bouw |
| Type Object | Woonhuis |
| Hoofdfunctie | Woonruimte |
Indeling
| Woonoppervlakte | 95 m² |
|---|---|
| Perceeloppervlakte | 159 m² |
| Woning Inhoud | 424 m³ |
| Kamers | 4 (3 slaapkamers) |
Energie
| Energielabel | B |
|---|










































































































