
Roer 47
Groningen
contact met
Riant Makelaars Groningen
| 050 850 33 56 | |
| groningen@riantmakelaars.nl | |
| Hereweg 29, 9725 AA Groningen |
Als je op zoek bent naar een ruime woning, bijvoorbeeld voor het hele gezin, zit je hier goed! Deze goed onderhouden en lichte woning heeft drie slaapkamers en de mogelijkheid om een vierde slaapkamer te realiseren. De begane grond is heerlijk ruim en de woonkamer heeft een extra zithoek van ca. 14 m², die eventueel ook nog als aparte kamer in te richten is. De woning heeft aan zowel de voor- als achterzijde een mooie tuin, waardoor je elk moment van de dag zon in de tuin hebt. Alles is tot in de puntjes verzorgd, van kunststof kozijnen met HR++ beglazing tot een nieuw dak (2024) met dakisolatie. Met een energielabel A kun je hier ook energiezuinig wonen!
De woning is gelegen aan de rand van de kindvriendelijke woonwijk "Lewenborg" met alle voorzieningen en het recreatiegebied "Kardinge" binnen handbereik. Het winkelcentrum ligt op loopafstand en alle voorzieningen zoals scholen, kinderopvang, bibliotheek en sportfaciliteiten vind je in de buurt. De binnenstad van Groningen is goed met de fiets of de bus te bereiken.
INDELING
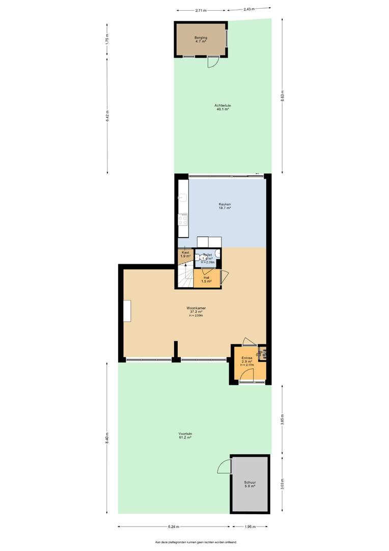
Begane grond: entree/hal, toegang tot de ruime en lichte woonkamer van ca. 37 m² met een aparte zithoek. De open (woon)keuken is ca. 19 m² en beschikt over een nette keukenopstelling met inductiekookplaat, afzuigkap, combimagnetron, koelkast en vriezer. De vaste kast zorgt voor extra opbergruimte. De achterdeur geeft toegang tot de verzorgde achtertuin met houten tuinhuis en achterom. Dankzij de ligging op het noordoosten, kun je hier al vroeg op de dag genieten van het ochtendzonnetje. Bijvoorbeeld met een ontbijtje of kopje koffie!
De hal midden in de woning geeft toegang tot de toiletruimte en trapopgang.
Eerste verdieping: ruime overloop van ca. 14 m². Hier is de mogelijkheid om nog een extra kamer te creëren. Op deze verdieping zijn drie slaapkamers van ca. 14, 14 en 10 m² aanwezig. De nette badkamer is voorzien van een inloopdouche en wastafelmeubel. Verder is er nog een berging met wasmachineaansluiting en cv-opstelling.
BUITENRUIMTE
Deze woning heeft een ruime voor- en achtertuin, waardoor je 's ochtends in de achtertuin in de zon kunt zitten en in de voortuin de middag- én avondzon hebt. Oftewel: altijd zon! De achtertuin heeft een vrijstaande houten tuinhuis en hier kun je via een achterom ook binnenkomen. De voortuin heeft een vrijstaande stenen berging met een houten overkapping.
GOED OM TE WETEN
- zeer nette en ruime woning;
- zonnige voor- en achtertuin;
- dankzij de breedte van de woning een goede lichtinval;
- voorzien van 12 zonnepanelen (2022);
- nieuw dak met dakisolatie (2024);
- kunststof kozijnen met HR++ beglazing;
- cv-ketel Intergas 2021 (eigendom);
- moderne meterkast;
- energielabel A;
- aanvaarding in overleg.
De woning is gelegen aan de rand van de kindvriendelijke woonwijk "Lewenborg" met alle voorzieningen en het recreatiegebied "Kardinge" binnen handbereik. Het winkelcentrum ligt op loopafstand en alle voorzieningen zoals scholen, kinderopvang, bibliotheek en sportfaciliteiten vind je in de buurt. De binnenstad van Groningen is goed met de fiets of de bus te bereiken.
INDELING
Begane grond: entree/hal, toegang tot de ruime en lichte woonkamer van ca. 37 m² met een aparte zithoek. De open (woon)keuken is ca. 19 m² en beschikt over een nette keukenopstelling met inductiekookplaat, afzuigkap, combimagnetron, koelkast en vriezer. De vaste kast zorgt voor extra opbergruimte. De achterdeur geeft toegang tot de verzorgde achtertuin met houten tuinhuis en achterom. Dankzij de ligging op het noordoosten, kun je hier al vroeg op de dag genieten van het ochtendzonnetje. Bijvoorbeeld met een ontbijtje of kopje koffie!
De hal midden in de woning geeft toegang tot de toiletruimte en trapopgang.
Eerste verdieping: ruime overloop van ca. 14 m². Hier is de mogelijkheid om nog een extra kamer te creëren. Op deze verdieping zijn drie slaapkamers van ca. 14, 14 en 10 m² aanwezig. De nette badkamer is voorzien van een inloopdouche en wastafelmeubel. Verder is er nog een berging met wasmachineaansluiting en cv-opstelling.
BUITENRUIMTE
Deze woning heeft een ruime voor- en achtertuin, waardoor je 's ochtends in de achtertuin in de zon kunt zitten en in de voortuin de middag- én avondzon hebt. Oftewel: altijd zon! De achtertuin heeft een vrijstaande houten tuinhuis en hier kun je via een achterom ook binnenkomen. De voortuin heeft een vrijstaande stenen berging met een houten overkapping.
GOED OM TE WETEN
- zeer nette en ruime woning;
- zonnige voor- en achtertuin;
- dankzij de breedte van de woning een goede lichtinval;
- voorzien van 12 zonnepanelen (2022);
- nieuw dak met dakisolatie (2024);
- kunststof kozijnen met HR++ beglazing;
- cv-ketel Intergas 2021 (eigendom);
- moderne meterkast;
- energielabel A;
- aanvaarding in overleg.
Over dit object
Overdracht
| Status | verkocht |
|---|---|
| Prijs | € 325.000 k.k. |
Bouw
| Bouwjaar | 1973 |
|---|---|
| Bouwvorm | bestaande bouw |
| Type Object | Woonhuis |
| Hoofdfunctie | Woonruimte |
Indeling
| Woonoppervlakte | 129 m² |
|---|---|
| Perceeloppervlakte | 188 m² |
| Woning Inhoud | 435 m³ |
| Kamers | 4 (3 slaapkamers) |
Energie
| Energielabel | A |
|---|


















































































