
Vaargeul 95
Groningen
contact met
Riant Makelaars Groningen
| 050 850 33 56 | |
| info@riantmakelaars.nl | |
| 050 850 33 56 | |
| Hereweg 29, 9725 AA Groningen |
Op één van de mooiste plekjes van Lewenborg staat deze ruime en lichte geschakelde 2-onder-1-kapwoning met vijf slaapkamers. Dit is dan ook de ideale gezinswoning! De groene achtertuin biedt de mogelijkheid om in alle privacy lekker van de tuin kunt genieten, of je nou in de zon of juist in de schaduw wil zitten. De aangebouwde garage en de eigen oprit geeft de optie om meerdere auto's aan huis te hebben. De woning is netjes onderhouden en heeft vloerisolatie, spouwmuurisolatie en acht zonnepanelen.
De woning is gelegen in een rustige en groene straat, aan de westzijde van Lewenborg. Alle voorzieningen vind je in de wijk en Recreatiegebied Kardinge ligt om de hoek, waar je lekker kunt wandelen. De binnenstad van Groningen ligt op een kwartier fietsen en mocht je de auto pakken, ben je met enkele minuten rijden op de ringweg van Groningen.
INDELING
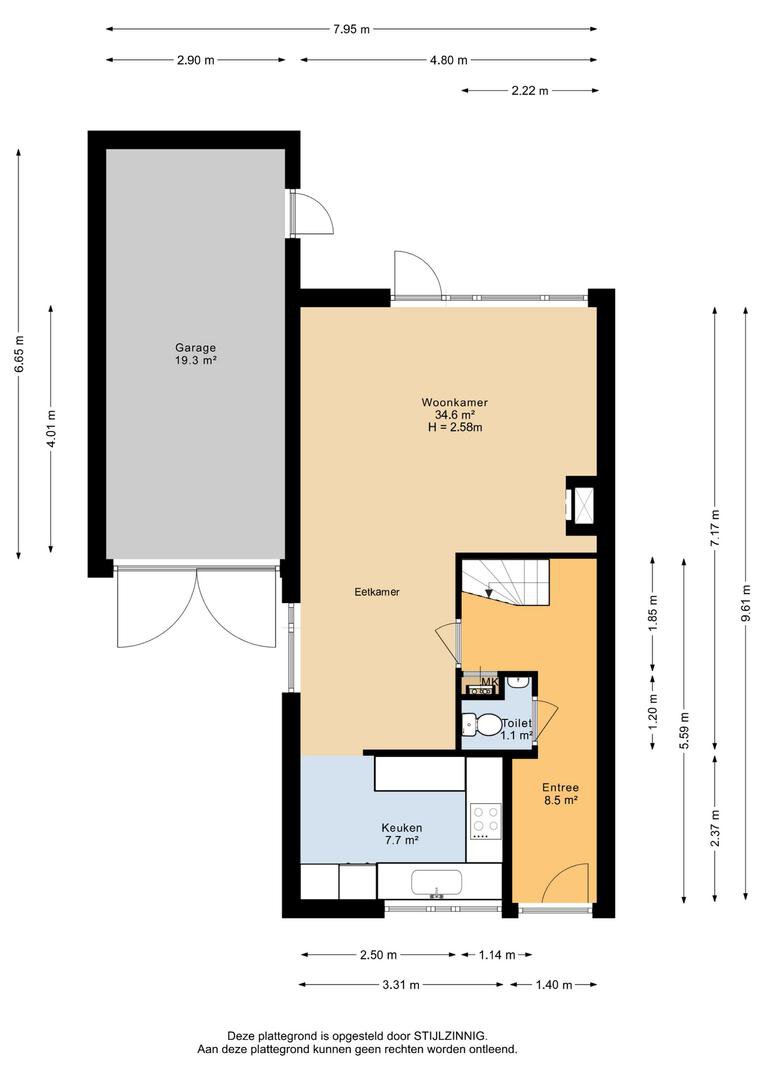
Begane grond: entree/hal, toiletruimte, lichte woonkamer van ca. 35 m² met deur naar de achtertuin en een open haard. De keuken van ca. 8 m² is eveneens licht en beschikt over een keukenopstelling met inductiekookplaat, afzuigkap, koelkast, vriezer, combi-oven en vaatwasser.
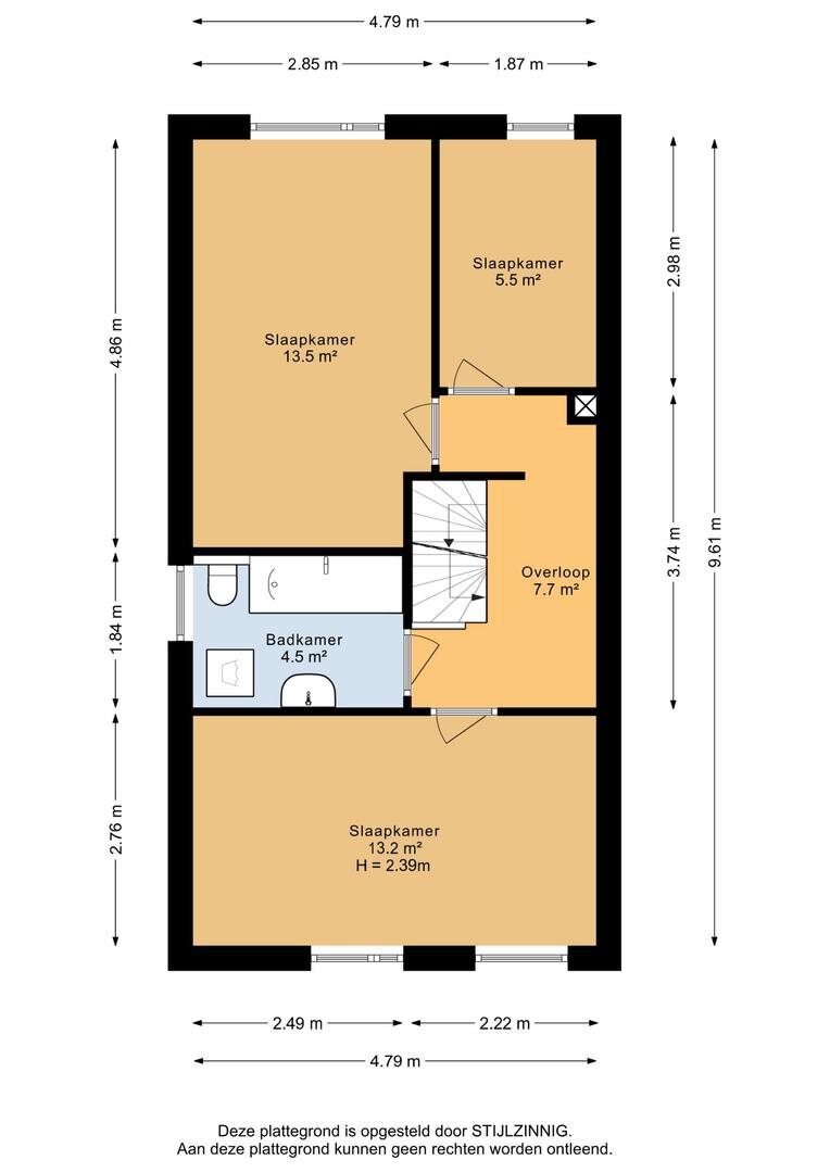
Eerste verdieping: overloop, drie slaapkamers van ca. 14, 13 en 6 m², badkamer met ligbad/douche, wastafel, tweede toilet en wasmachineaansluiting.
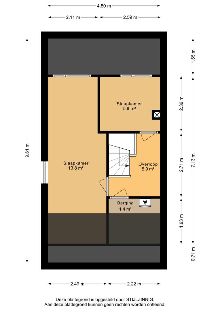
Tweede verdieping: overloop met aansluitend een berging met cv-opstelling en mechanische ventilatie box. De twee slaapkamers zijn ca. 14 en 6 m².
BUITENRUIMTE
De verzorgde achtertuin is volop groen, wat zorgt voor een rustige uitstraling. Dankzij de vrijheid achter de woning, heb je volop privacy in de tuin. De ligging op het noordwesten geeft de mogelijkheid om zowel in de zon- als schaduw te zitten.
Aan de voorzijde is een groene voortuin aanwezig en er is een oprit voor twee auto's.
GOED OM TE WETEN
- de ideale gezinswoning;
- dankzij de raampartijen heerlijk licht;
- woning is nog verder naar smaak in te richten;
- buitenschilderwerk van 2023/2024;
- de woning heeft HR++ beglazing;
- spouwmuur reeds na-geïsoleerd;
- energielabel C (voor de spouwmuurisolatie);
- voorzien van 8 zonnepanelen;
- cv-ketel Intergas 2013 (eigendom);
- aanvaarding in overleg;
De woning is gelegen in een rustige en groene straat, aan de westzijde van Lewenborg. Alle voorzieningen vind je in de wijk en Recreatiegebied Kardinge ligt om de hoek, waar je lekker kunt wandelen. De binnenstad van Groningen ligt op een kwartier fietsen en mocht je de auto pakken, ben je met enkele minuten rijden op de ringweg van Groningen.
INDELING
Begane grond: entree/hal, toiletruimte, lichte woonkamer van ca. 35 m² met deur naar de achtertuin en een open haard. De keuken van ca. 8 m² is eveneens licht en beschikt over een keukenopstelling met inductiekookplaat, afzuigkap, koelkast, vriezer, combi-oven en vaatwasser.
Eerste verdieping: overloop, drie slaapkamers van ca. 14, 13 en 6 m², badkamer met ligbad/douche, wastafel, tweede toilet en wasmachineaansluiting.
Tweede verdieping: overloop met aansluitend een berging met cv-opstelling en mechanische ventilatie box. De twee slaapkamers zijn ca. 14 en 6 m².
BUITENRUIMTE
De verzorgde achtertuin is volop groen, wat zorgt voor een rustige uitstraling. Dankzij de vrijheid achter de woning, heb je volop privacy in de tuin. De ligging op het noordwesten geeft de mogelijkheid om zowel in de zon- als schaduw te zitten.
Aan de voorzijde is een groene voortuin aanwezig en er is een oprit voor twee auto's.
GOED OM TE WETEN
- de ideale gezinswoning;
- dankzij de raampartijen heerlijk licht;
- woning is nog verder naar smaak in te richten;
- buitenschilderwerk van 2023/2024;
- de woning heeft HR++ beglazing;
- spouwmuur reeds na-geïsoleerd;
- energielabel C (voor de spouwmuurisolatie);
- voorzien van 8 zonnepanelen;
- cv-ketel Intergas 2013 (eigendom);
- aanvaarding in overleg;
Over dit object
Overdracht
| Status | verkocht |
|---|---|
| Prijs | € 395.000 k.k. |
Bouw
| Bouwjaar | 1978 |
|---|---|
| Bouwvorm | bestaande bouw |
| Type Object | Woonhuis |
| Hoofdfunctie | Woonruimte |
Indeling
| Woonoppervlakte | 122 m² |
|---|---|
| Perceeloppervlakte | 187 m² |
| Woning Inhoud | 500 m³ |
| Kamers | 6 (5 slaapkamers) |
Energie
| Energielabel | C |
|---|

































































































