
Populier 38
Leek
contact met
Bruining en De Reus
| 0594 55 43 55 | |
| leek@bruiningdereus.nl | |
| 06 8281 0106 | |
| Boveneind 20, 9351 AP Leek | |
| bruiningdereus.nl |
Ruime en instapklare gezinswoning in groene wijk Oostindie
In een rustige straat, omringd door groen en houtwallen, staat deze ruime en goed onderhouden gezinswoning uit 2011. Met een woonoppervlakte van ca. 125 m² en een inhoud van ca. 456 m³ heb je hier alle ruimte voor het hele gezin. De woning heeft drie slaapkamers en een grote zolder waar je eenvoudig een vierde slaapkamer of werkplek kunt maken. Dankzij de 9 zonnepanelen woon je bovendien energiezuinig.
Ligging
Je woont hier in de kindvriendelijke wijk Oostindie. Basisscholen, kinderopvang en sportfaciliteiten zijn op loopafstand, het centrum van Leek ligt op fietsafstand en zowel Groningen als Drachten bereik je met de auto in ongeveer 15 minuten. Ook landgoed Nienoord en de omliggende natuurgebieden liggen vlakbij – perfect voor een wandeling of fietstocht.
Indeling
Begane grond
Je komt binnen in de hal met meterkast, modern toilet en de trap naar boven. Vanuit de hal loop je door naar de lichte woonkamer (ca. 40 m²) met openslaande deuren naar de achtertuin en een moderne open keuken aan de voorzijde compleet met inbouwapparatuur zoals een koelkast, vriezer, combimagnetron, oven, inductiekookplaat, afzuigkap en vaatwasser. Onder de trap is nog een handige trapkast.
Eerste verdieping
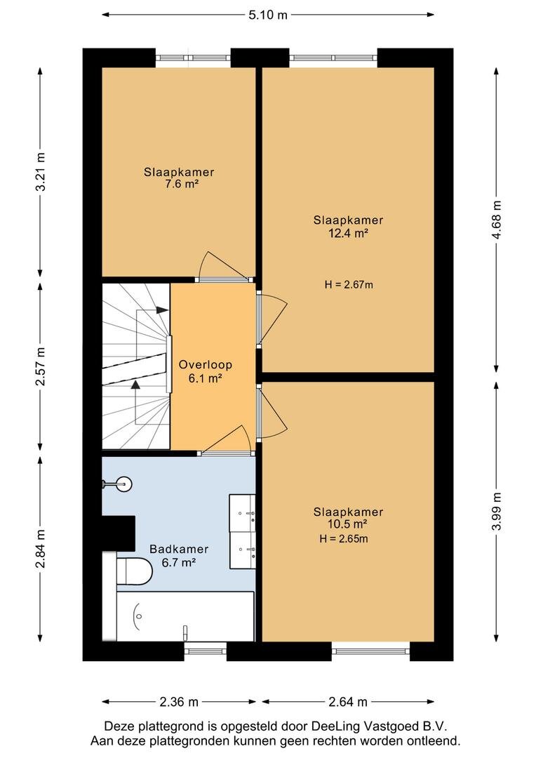
Op de eerste verdieping zijn drie ruime slaapkamers van ca. 7½, 10½ en 12½ m². De badkamer (ca. 6,7 m²) is modern en compleet met een ligbad, inloopdouche, tweede toilet en dubbele wastafel.
Tweede verdieping
Met de vaste trap kom je op de royale zolder (ca. 28 m²). Hier kun je eenvoudig een extra slaapkamer of werkruimte creëren. Ook vind je hier de aansluitingen voor de wasmachine en droger, de cv-installatie en de mechanische ventilatie.
Tuin
De achtertuin is netjes aangelegd en vraagt weinig onderhoud. Je hebt hier een vrijstaande houten berging (ca. 6 m²) met elektra en een achterom, zodat je makkelijk met de fiets achter het huis kunt komen.
Pluspunten op een rij
- Bouwjaar 2011
- Woonoppervlakte ca. 125 m²
- Inhoud ca. 456 m³
- Perceeloppervlakte ca. 155 m²
- Voorzien van 9 zonnepanelen
- Volledig geïsoleerd en energiezuinig
- Mogelijkheid voor een vierde slaapkamer op zolder
- Achtertuin met berging en achterom
Ben jij op zoek naar een ruim en instapklaar huis in een fijne wijk met alle voorzieningen dichtbij? Dan is Populier 38 misschien wel jouw nieuwe thuis. Maak snel een afspraak, we laten je dit huis graag zien!
In een rustige straat, omringd door groen en houtwallen, staat deze ruime en goed onderhouden gezinswoning uit 2011. Met een woonoppervlakte van ca. 125 m² en een inhoud van ca. 456 m³ heb je hier alle ruimte voor het hele gezin. De woning heeft drie slaapkamers en een grote zolder waar je eenvoudig een vierde slaapkamer of werkplek kunt maken. Dankzij de 9 zonnepanelen woon je bovendien energiezuinig.
Ligging
Je woont hier in de kindvriendelijke wijk Oostindie. Basisscholen, kinderopvang en sportfaciliteiten zijn op loopafstand, het centrum van Leek ligt op fietsafstand en zowel Groningen als Drachten bereik je met de auto in ongeveer 15 minuten. Ook landgoed Nienoord en de omliggende natuurgebieden liggen vlakbij – perfect voor een wandeling of fietstocht.
Indeling
Begane grond
Je komt binnen in de hal met meterkast, modern toilet en de trap naar boven. Vanuit de hal loop je door naar de lichte woonkamer (ca. 40 m²) met openslaande deuren naar de achtertuin en een moderne open keuken aan de voorzijde compleet met inbouwapparatuur zoals een koelkast, vriezer, combimagnetron, oven, inductiekookplaat, afzuigkap en vaatwasser. Onder de trap is nog een handige trapkast.
Eerste verdieping
Op de eerste verdieping zijn drie ruime slaapkamers van ca. 7½, 10½ en 12½ m². De badkamer (ca. 6,7 m²) is modern en compleet met een ligbad, inloopdouche, tweede toilet en dubbele wastafel.
Tweede verdieping
Met de vaste trap kom je op de royale zolder (ca. 28 m²). Hier kun je eenvoudig een extra slaapkamer of werkruimte creëren. Ook vind je hier de aansluitingen voor de wasmachine en droger, de cv-installatie en de mechanische ventilatie.
Tuin
De achtertuin is netjes aangelegd en vraagt weinig onderhoud. Je hebt hier een vrijstaande houten berging (ca. 6 m²) met elektra en een achterom, zodat je makkelijk met de fiets achter het huis kunt komen.
Pluspunten op een rij
- Bouwjaar 2011
- Woonoppervlakte ca. 125 m²
- Inhoud ca. 456 m³
- Perceeloppervlakte ca. 155 m²
- Voorzien van 9 zonnepanelen
- Volledig geïsoleerd en energiezuinig
- Mogelijkheid voor een vierde slaapkamer op zolder
- Achtertuin met berging en achterom
Ben jij op zoek naar een ruim en instapklaar huis in een fijne wijk met alle voorzieningen dichtbij? Dan is Populier 38 misschien wel jouw nieuwe thuis. Maak snel een afspraak, we laten je dit huis graag zien!
Over dit object
Overdracht
| Status | verkocht |
|---|---|
| Prijs | € 392.500 k.k. |
Bouw
| Bouwjaar | 2011 |
|---|---|
| Bouwvorm | bestaande bouw |
| Type Object | Woonhuis |
| Hoofdfunctie | Woonruimte |
Indeling
| Woonoppervlakte | 126 m² |
|---|---|
| Perceeloppervlakte | 146 m² |
| Woning Inhoud | 456 m³ |
| Kamers | 4 (3 slaapkamers) |
Energie
| Energielabel | A |
|---|


































































































