
Linde 26
Leek
contact met
Bruining en De Reus
| 0594 55 43 55 | |
| leek@bruiningdereus.nl | |
| 06 8281 0106 | |
| Boveneind 20, 9351 AP Leek | |
| bruiningdereus.nl |
Instapklare gezinswoning met moderne keuken in Oostindie!
Aan een rustige straat, omringd door groen en een fraaie houtsingel, staat deze goed onderhouden en energiezuinige gezinswoning uit 2009. Met een woonoppervlakte van ca. 123 m² en een perceel van ca. 174 m² biedt deze woning volop ruimte voor het hele gezin. In 2023 is de woning gemoderniseerd met o.a. een nieuwe keuken en tevens is er een vaste trap naar de tweede verdieping gerealiseerd, waardoor er nu een vierde slaapkamer én een lichte overloop met witgoedaansluitingen beschikbaar zijn. Bovendien woon je hier energiezuinig dankzij 12 zonnepanelen en een energielabel A.
Ligging
De woning ligt in de kindvriendelijke wijk Oostindie. Basisscholen, kinderopvang, speeltuintjes, sportvoorzieningen en een natuurpark liggen allemaal op loopafstand. Het centrum van Leek met diverse voorzieningen en Landgoed Nienoord bereik je eenvoudig met de fiets. Ook de ligging ten opzichte van de uitvalswegen is gunstig: binnen ca. 15 minuten ben je in Groningen of Drachten. Het openbaar vervoer is uitstekend geregeld; op loopafstand vertrekt ieder kwartier een rechtstreekse bus naar het Centraal Station van Groningen.
Indeling
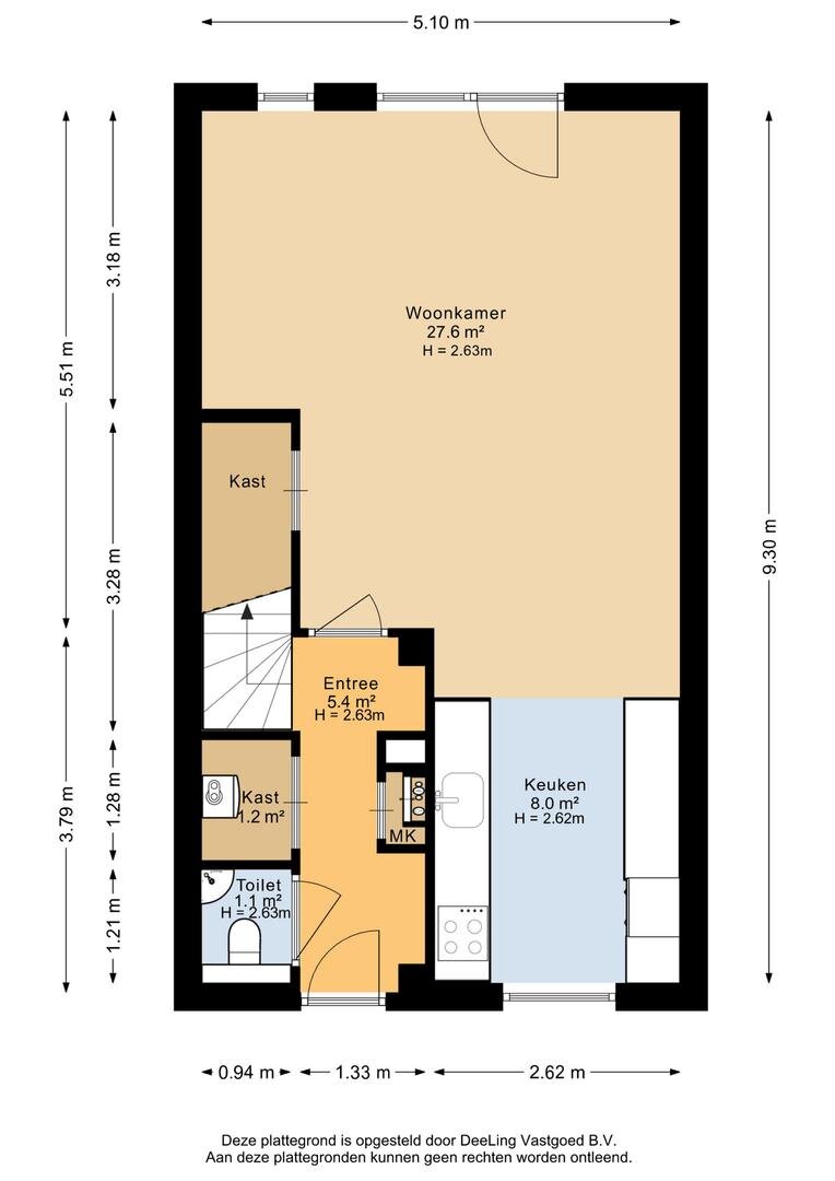
Begane grond: Je komt binnen in de hal met toilet, meterkast en cv-bergkast. Vanuit de hal loop je door naar de lichte, tuingerichte woonkamer met toegang tot de achtertuin. Aan de voorzijde vind je de moderne open keuken (2023) in parallelopstelling, compleet met inbouwapparatuur en een inductiekookplaat met geïntegreerde veldafzuiging. De zonnige achtertuin is onderhoudsvriendelijk aangelegd en beschikt over een achterom en een fraaie houten overkapping.
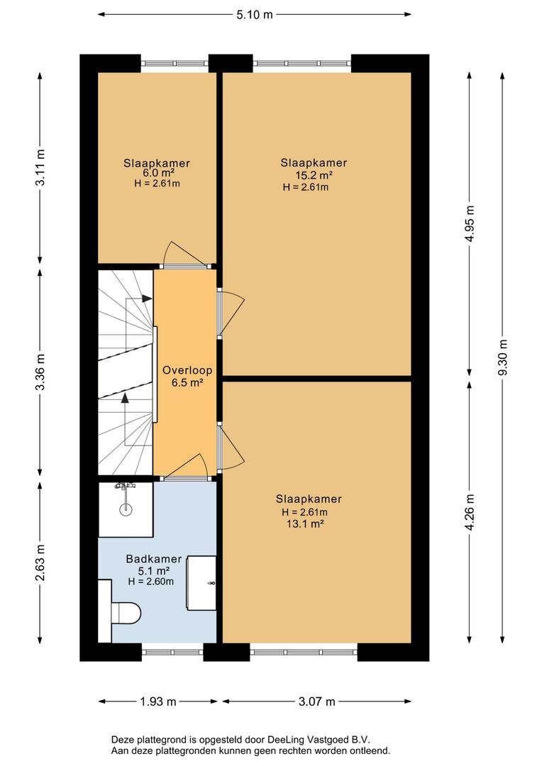
Eerste verdieping: De eerste verdieping biedt drie slaapkamers van ca. 6, 13 en 15 m². De badkamer is netjes afgewerkt en voorzien van daglicht, een douchecabine, hangend toilet en wastafelmeubel met spiegelkast.
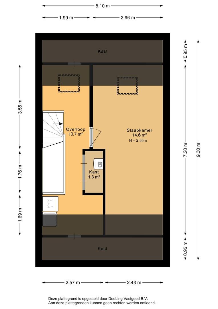
Tweede verdieping: Via de vaste trap kom je op de tweede verdieping. Deze is volledig afgewerkt en ingericht met een ruime vierde slaapkamer (ca. 15 m²) en een lichte overloop met plek voor de wasmachine en droger.
Tuin en bijgebouwen:
De achtertuin is verzorgd aangelegd en onderhoudsvriendelijk, zodat je er vooral van kunt genieten. Achterin de tuin staat een vrijstaande houten berging (ca. 6 m²) met elektra en een achterom – ideaal om fietsen en tuingereedschap netjes op te bergen. Extra pluspunt is de aangebouwde houten overkapping: een sfeervolle plek waar je het hele jaar door heerlijk kunt zitten. Dankzij de verlichting kun je hier ook ’s avonds nog heerlijk genieten van je tuin.
Goed om te weten:
- Bouwjaar 2009;
- Woonoppervlakte ca. 123 m²;
- Perceeloppervlakte ca. 174 m²;
- Nieuwe vaste trap naar tweede verdieping (2023);
- Voorzien van 12 zonnepanelen (2023);
- Goed onderhouden en instapklaar;
- Voorzien van heteluchtverwarming en WTW-installatie;
- Warm water via cv-combiketel;
- Energielabel A+.
Interesse?
Ben jij op zoek naar een instapklaar huis in een fijne, groene en kindvriendelijke wijk? Dan is Linde 26 in Leek misschien wel jouw nieuwe thuis. Neem gerust en geheel vrijblijvend contact op met Bruining en De Reus Makelaars voor een bezichtigingsafspraak – we laten je dit huis graag zien!
Aan een rustige straat, omringd door groen en een fraaie houtsingel, staat deze goed onderhouden en energiezuinige gezinswoning uit 2009. Met een woonoppervlakte van ca. 123 m² en een perceel van ca. 174 m² biedt deze woning volop ruimte voor het hele gezin. In 2023 is de woning gemoderniseerd met o.a. een nieuwe keuken en tevens is er een vaste trap naar de tweede verdieping gerealiseerd, waardoor er nu een vierde slaapkamer én een lichte overloop met witgoedaansluitingen beschikbaar zijn. Bovendien woon je hier energiezuinig dankzij 12 zonnepanelen en een energielabel A.
Ligging
De woning ligt in de kindvriendelijke wijk Oostindie. Basisscholen, kinderopvang, speeltuintjes, sportvoorzieningen en een natuurpark liggen allemaal op loopafstand. Het centrum van Leek met diverse voorzieningen en Landgoed Nienoord bereik je eenvoudig met de fiets. Ook de ligging ten opzichte van de uitvalswegen is gunstig: binnen ca. 15 minuten ben je in Groningen of Drachten. Het openbaar vervoer is uitstekend geregeld; op loopafstand vertrekt ieder kwartier een rechtstreekse bus naar het Centraal Station van Groningen.
Indeling
Begane grond: Je komt binnen in de hal met toilet, meterkast en cv-bergkast. Vanuit de hal loop je door naar de lichte, tuingerichte woonkamer met toegang tot de achtertuin. Aan de voorzijde vind je de moderne open keuken (2023) in parallelopstelling, compleet met inbouwapparatuur en een inductiekookplaat met geïntegreerde veldafzuiging. De zonnige achtertuin is onderhoudsvriendelijk aangelegd en beschikt over een achterom en een fraaie houten overkapping.
Eerste verdieping: De eerste verdieping biedt drie slaapkamers van ca. 6, 13 en 15 m². De badkamer is netjes afgewerkt en voorzien van daglicht, een douchecabine, hangend toilet en wastafelmeubel met spiegelkast.
Tweede verdieping: Via de vaste trap kom je op de tweede verdieping. Deze is volledig afgewerkt en ingericht met een ruime vierde slaapkamer (ca. 15 m²) en een lichte overloop met plek voor de wasmachine en droger.
Tuin en bijgebouwen:
De achtertuin is verzorgd aangelegd en onderhoudsvriendelijk, zodat je er vooral van kunt genieten. Achterin de tuin staat een vrijstaande houten berging (ca. 6 m²) met elektra en een achterom – ideaal om fietsen en tuingereedschap netjes op te bergen. Extra pluspunt is de aangebouwde houten overkapping: een sfeervolle plek waar je het hele jaar door heerlijk kunt zitten. Dankzij de verlichting kun je hier ook ’s avonds nog heerlijk genieten van je tuin.
Goed om te weten:
- Bouwjaar 2009;
- Woonoppervlakte ca. 123 m²;
- Perceeloppervlakte ca. 174 m²;
- Nieuwe vaste trap naar tweede verdieping (2023);
- Voorzien van 12 zonnepanelen (2023);
- Goed onderhouden en instapklaar;
- Voorzien van heteluchtverwarming en WTW-installatie;
- Warm water via cv-combiketel;
- Energielabel A+.
Interesse?
Ben jij op zoek naar een instapklaar huis in een fijne, groene en kindvriendelijke wijk? Dan is Linde 26 in Leek misschien wel jouw nieuwe thuis. Neem gerust en geheel vrijblijvend contact op met Bruining en De Reus Makelaars voor een bezichtigingsafspraak – we laten je dit huis graag zien!
Over dit object
Overdracht
| Status | verkocht onder voorbehoud |
|---|---|
| Prijs | € 389.000 k.k. |
Bouw
| Bouwjaar | 2009 |
|---|---|
| Bouwvorm | bestaande bouw |
| Type Object | Woonhuis |
| Hoofdfunctie | Woonruimte |
Indeling
| Woonoppervlakte | 123 m² |
|---|---|
| Perceeloppervlakte | 174 m² |
| Woning Inhoud | 428 m³ |
| Kamers | 5 (4 slaapkamers) |
Energie
| Energielabel | A+ |
|---|


























































































