
Leeuwerikhof 20
Ten boer
contact met
Riant Makelaars Bedum
| 050 301 3775 | |
| bedum@riantmakelaars.nl | |
| 050 8503356 | |
| Molenweg 22, 9781 GM Bedum |
Keurig afgewerkte en onderhoudsarme tussenwoning met een moderne keuken, moderne badkamer en toilet, kunststof kozijnen en gevelbekleding, een heerlijk diepe tuin met terrasoverkapping en parkeergelegenheid op eigen terrein.
In een autoluwe straat met enkel bestemmingsverkeer in het gezellige Ten Boer vindt u deze fraaie tussenwoning met tuingerichte woonkamer. Door de aangebouwde terrasoverkapping met verlichting in combinatie met de openslaande tuindeuren is het woongenot en de ruimtebeleving aanzienlijk vergroot.
In de afgelopen jaren is de woning uitgebreid gemoderniseerd en verduurzaamd. De woning is rondom voorzien van HR++ beglazing, in 2024 is er een nieuw dak incl. dakisolatie geplaatst en de woning is inmiddels voorzien van een hybride warmtepomp en 9 zonnepanelen. Dat inmiddels ook alle kozijnen, gevelbekleding, goten en deuren zijn uitgevoerd in kunststof zorgt er voor dat ook het onderhoud buitenom tot een minimum beperkt blijft.
Inmiddels zijn ook alle werkzaamheden vanuit het versterkingstraject volledig afgerond waardoor er ook op dat vlak zorgeloos gewoond kan worden!
De zonnige achtertuin met achterom ligt gunstig op het zuidoosten, waardoor u een groot deel van de dag van de zon kunt genieten. De stijlvolle tuinberging en bestrating geven een luxe uitstraling.
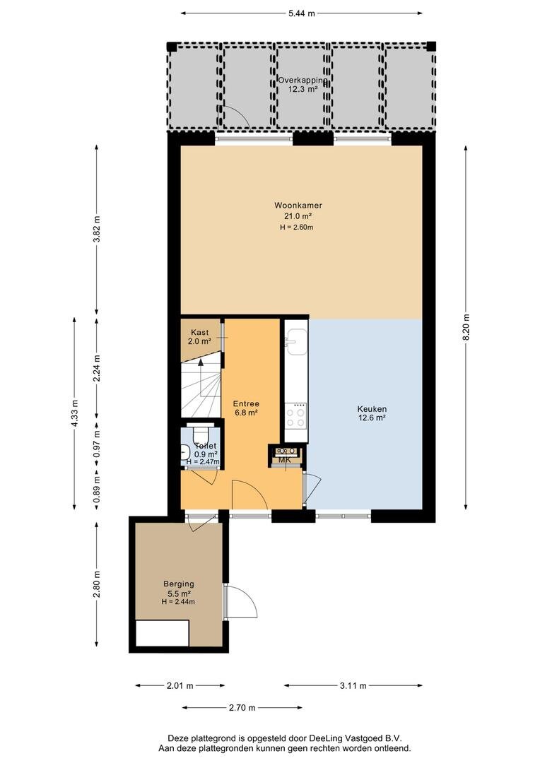
Indeling
Begane grond: Entree/hal met toilet, meterkast en trapkast; (fietsen)berging met kleine bergzolder; L-vormige living met straatgerichte keuken v.v. inductiekookplaat, oven, afzuigkap en vaatwasser; tuingerichte woonkamer met openslaande deuren waardoor een fijne verbinding tussen binnen en buiten.
Eerste verdieping
Overloop; 3 slaapkamers en een moderne badkamer. De slaapkamers zijn ruim van formaat en beschikken allemaal over veel lichtinval. De badkamer is praktisch en compleet ingericht met een royale inloopdouche, een hangend toilet en een fraai wastafelmeubel.
Tweede verdieping
Op de tweede verdieping bevindt zich een vierde, ruime slaapkamer, voorzien van een dakraam en bergruimte achter het knieschot. Deze verdieping is eveneens keurig afgewerkt en biedt natuurlijk mogelijkheden als extra slaapruimte, werk- of hobbyruimte. Op de overloop met daglicht vindt u de cv-opstelling incl. de hybride warmtepomp.
Tuin en omgeving
De woning beschikt over een nette voor- en achtertuin. De achtertuin ligt op het zuidoosten, waardoor u vanaf de ochtend tot laat in de middag kunt genieten van het zonnetje. De tuin is fraai aangelegd met keurige bestrating en leuke borders. Daarnaast is de achtertuin achterom bereikbaar, handig voor fietsen of tuinafval. De vrijstaande houten schuur is voorzien van elektra en ideaal als opslagruimte of fietsenstalling.
Aan de voorzijde is er parkeergelegenheid voor meerdere auto’s op eigen terrein en in de straat is voldoende openbare parkeergelegenheid beschikbaar.
De ligging is rustig en groen maar toch centraal. Op loopafstand vindt u scholen, winkels en sportvoorzieningen, en binnen 15 minuten rijden bent u in de bruisende binnenstad van Groningen.
Bijzonderheden
* Energielabel A;
* 9 zonnepanelen (2022);
* Moderne badkamer en toilet (2019);
* Waterontharder (2020);
* Terrasoverkapping (2023);
* Nieuw geïsoleerd dak (uit 2024);
* Voegwerk vernieuwd (2025);
* Kunststof kozijnen, deuren en gevelbekleding;
* Grotendeels HR++ beglazing;
* Gevelbekleding kunststof;
* cv-ketel (2015)+ hybride warmtepomp (2025).
Geïnteresseerd?
Neem contact op met Riant Makelaars Bedum voor een bezichtiging. We laten je deze instapklare woning aan Leeuwerikhof 20 graag van binnen én buiten zien!
In een autoluwe straat met enkel bestemmingsverkeer in het gezellige Ten Boer vindt u deze fraaie tussenwoning met tuingerichte woonkamer. Door de aangebouwde terrasoverkapping met verlichting in combinatie met de openslaande tuindeuren is het woongenot en de ruimtebeleving aanzienlijk vergroot.
In de afgelopen jaren is de woning uitgebreid gemoderniseerd en verduurzaamd. De woning is rondom voorzien van HR++ beglazing, in 2024 is er een nieuw dak incl. dakisolatie geplaatst en de woning is inmiddels voorzien van een hybride warmtepomp en 9 zonnepanelen. Dat inmiddels ook alle kozijnen, gevelbekleding, goten en deuren zijn uitgevoerd in kunststof zorgt er voor dat ook het onderhoud buitenom tot een minimum beperkt blijft.
Inmiddels zijn ook alle werkzaamheden vanuit het versterkingstraject volledig afgerond waardoor er ook op dat vlak zorgeloos gewoond kan worden!
De zonnige achtertuin met achterom ligt gunstig op het zuidoosten, waardoor u een groot deel van de dag van de zon kunt genieten. De stijlvolle tuinberging en bestrating geven een luxe uitstraling.
Indeling
Begane grond: Entree/hal met toilet, meterkast en trapkast; (fietsen)berging met kleine bergzolder; L-vormige living met straatgerichte keuken v.v. inductiekookplaat, oven, afzuigkap en vaatwasser; tuingerichte woonkamer met openslaande deuren waardoor een fijne verbinding tussen binnen en buiten.
Eerste verdieping
Overloop; 3 slaapkamers en een moderne badkamer. De slaapkamers zijn ruim van formaat en beschikken allemaal over veel lichtinval. De badkamer is praktisch en compleet ingericht met een royale inloopdouche, een hangend toilet en een fraai wastafelmeubel.
Tweede verdieping
Op de tweede verdieping bevindt zich een vierde, ruime slaapkamer, voorzien van een dakraam en bergruimte achter het knieschot. Deze verdieping is eveneens keurig afgewerkt en biedt natuurlijk mogelijkheden als extra slaapruimte, werk- of hobbyruimte. Op de overloop met daglicht vindt u de cv-opstelling incl. de hybride warmtepomp.
Tuin en omgeving
De woning beschikt over een nette voor- en achtertuin. De achtertuin ligt op het zuidoosten, waardoor u vanaf de ochtend tot laat in de middag kunt genieten van het zonnetje. De tuin is fraai aangelegd met keurige bestrating en leuke borders. Daarnaast is de achtertuin achterom bereikbaar, handig voor fietsen of tuinafval. De vrijstaande houten schuur is voorzien van elektra en ideaal als opslagruimte of fietsenstalling.
Aan de voorzijde is er parkeergelegenheid voor meerdere auto’s op eigen terrein en in de straat is voldoende openbare parkeergelegenheid beschikbaar.
De ligging is rustig en groen maar toch centraal. Op loopafstand vindt u scholen, winkels en sportvoorzieningen, en binnen 15 minuten rijden bent u in de bruisende binnenstad van Groningen.
Bijzonderheden
* Energielabel A;
* 9 zonnepanelen (2022);
* Moderne badkamer en toilet (2019);
* Waterontharder (2020);
* Terrasoverkapping (2023);
* Nieuw geïsoleerd dak (uit 2024);
* Voegwerk vernieuwd (2025);
* Kunststof kozijnen, deuren en gevelbekleding;
* Grotendeels HR++ beglazing;
* Gevelbekleding kunststof;
* cv-ketel (2015)+ hybride warmtepomp (2025).
Geïnteresseerd?
Neem contact op met Riant Makelaars Bedum voor een bezichtiging. We laten je deze instapklare woning aan Leeuwerikhof 20 graag van binnen én buiten zien!
Over dit object
Overdracht
| Status | verkocht |
|---|---|
| Prijs | € 325.000 k.k. |
Bouw
| Bouwjaar | 1974 |
|---|---|
| Bouwvorm | bestaande bouw |
| Type Object | Woonhuis |
| Hoofdfunctie | Woonruimte |
Indeling
| Woonoppervlakte | 116 m² |
|---|---|
| Perceeloppervlakte | 303 m² |
| Woning Inhoud | 403 m³ |
| Kamers | 5 (4 slaapkamers) |
Energie
| Energielabel | A |
|---|

























































































