
Iepenlaan 27
Marum
contact met
Bruining en De Reus
| 0594 55 43 55 | |
| leek@bruiningdereus.nl | |
| 06 8281 0106 | |
| Boveneind 20, 9351 AP Leek | |
| bruiningdereus.nl |
Ruime hoekwoning met aangebouwde garage en zonnige tuin op het zuiden
Gelegen op een rustige locatie aan de rand van het centrum, biedt deze goed onderhouden hoekwoning met aangebouwde garage en een tuin op het zuiden veel comfort en ruimte. Het perceel heeft een totaaloppervlakte van 266 m² en is ideaal voor gezinnen die op zoek zijn naar een woning met zowel binnen- als buitenruimte.
Indeling:
Op de begane grond bevindt zich een ruime hal/entree, meterkast, provisieruimte, en een modern toilet. De royale woonkamer met open keuken van ca. 36 m². De keuken is uitgerust met moderne inbouwapparatuur, waaronder een inductiekookplaat, koelkast, vriezer, combimagnetron en afzuigkap. Aangrenzend aan de woonkamer bevindt zich een ruime, praktische bijkeuken met wasmachineaansluiting en toegang tot de aangebouwde garage.
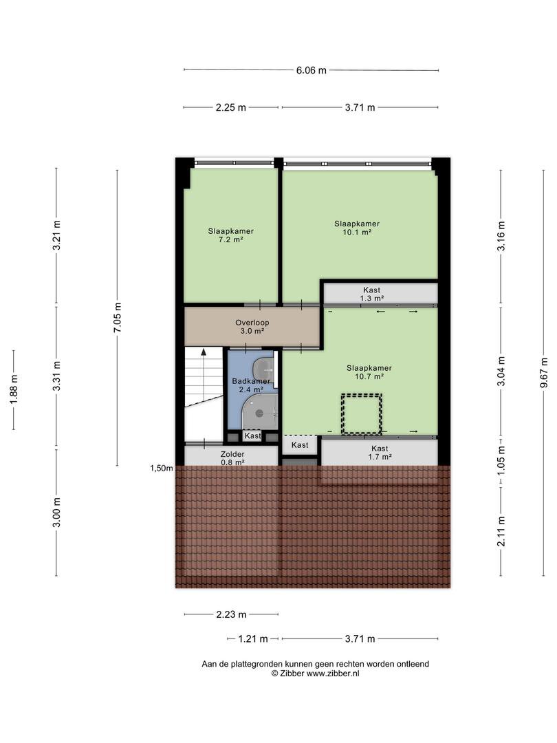
De verdieping biedt drie slaapkamers van respectievelijk ca. 11 m², 10 m² en 7 m², allen voorzien van een laminaatvloer en vaste kasten. De doucheruimte is uitgerust met een douche en een vaste wastafel..
Bijgebouwen:
- aangebouwde garage ca. 31 m²
Bijzonderheden:
- Centraal verwarmd via HR-ketel (bouwjaar 2013);
- Gehele woning voorzien van dubbel glas;
- Zonnige tuin op het zuiden;
- De woning is grotendeels voorzien van kunststofkozijnen met isolerende beglazing;
- De woning beschikt over 9 zonnepanelen en is voorzien van energielabel B;
- Aangebouwde verlengde garage;
- Deze woning is uitstekend gelegen, op korte afstand van het centrum en biedt een rustige en comfortabele leefomgeving. Ideaal voor mensen die zowel de voordelen van een stadse ligging als de rust van een woonwijk zoeken.
Interesse? Plan snel een bezichtiging!
Gelegen op een rustige locatie aan de rand van het centrum, biedt deze goed onderhouden hoekwoning met aangebouwde garage en een tuin op het zuiden veel comfort en ruimte. Het perceel heeft een totaaloppervlakte van 266 m² en is ideaal voor gezinnen die op zoek zijn naar een woning met zowel binnen- als buitenruimte.
Indeling:
Op de begane grond bevindt zich een ruime hal/entree, meterkast, provisieruimte, en een modern toilet. De royale woonkamer met open keuken van ca. 36 m². De keuken is uitgerust met moderne inbouwapparatuur, waaronder een inductiekookplaat, koelkast, vriezer, combimagnetron en afzuigkap. Aangrenzend aan de woonkamer bevindt zich een ruime, praktische bijkeuken met wasmachineaansluiting en toegang tot de aangebouwde garage.
De verdieping biedt drie slaapkamers van respectievelijk ca. 11 m², 10 m² en 7 m², allen voorzien van een laminaatvloer en vaste kasten. De doucheruimte is uitgerust met een douche en een vaste wastafel..
Bijgebouwen:
- aangebouwde garage ca. 31 m²
Bijzonderheden:
- Centraal verwarmd via HR-ketel (bouwjaar 2013);
- Gehele woning voorzien van dubbel glas;
- Zonnige tuin op het zuiden;
- De woning is grotendeels voorzien van kunststofkozijnen met isolerende beglazing;
- De woning beschikt over 9 zonnepanelen en is voorzien van energielabel B;
- Aangebouwde verlengde garage;
- Deze woning is uitstekend gelegen, op korte afstand van het centrum en biedt een rustige en comfortabele leefomgeving. Ideaal voor mensen die zowel de voordelen van een stadse ligging als de rust van een woonwijk zoeken.
Interesse? Plan snel een bezichtiging!
Over dit object
Overdracht
| Status | verkocht |
|---|---|
| Prijs | € 259.500 k.k. |
Bouw
| Bouwjaar | 1974 |
|---|---|
| Bouwvorm | bestaande bouw |
| Type Object | Woonhuis |
| Hoofdfunctie | Woonruimte |
Indeling
| Woonoppervlakte | 103 m² |
|---|---|
| Perceeloppervlakte | 266 m² |
| Woning Inhoud | 476 m³ |
| Kamers | 4 (3 slaapkamers) |
Energie
| Energielabel | B |
|---|


















































