Zetveld 14 De wilp

Zetveld 14
De wilp

contact met
Bruining en De Reus

0594 55 43 55
leek@bruiningdereus.nl
06 8281 0106
Boveneind 20, 9351 AP Leek
bruiningdereus.nl

€ 625.000 k.k.

Zetveld 14, De wilp

Locatie bekijken
Vrijstaand wonen aan het water met volop ruimte binnen en buiten!

Op een mooie en rustige locatie in De Wilp staat deze goed onderhouden vrijstaande woning uit 2002. Met een royaal woonoppervlak van circa 246 m², veel binnenruimte én een fraai aangelegde tuin direct aan het water, is dit een ideale woning voor wie comfortabel en ruim wil wonen in een groene omgeving.

Indeling
Via de hal met meterkast en toilet betreedt je de ruime en lichte woonkamer (ca 62 m²) met houtkachel. De open keuken is voorzien van inbouwapparatuur, waaronder een inductiekookplaat, oven, vaatwasser en afzuigkap en toegang tot de bijkeuken. Aan de achterzijde van de woning vindt u een royale serre (ca 35 m²) met veel glas en een prachtig zicht op de tuin en het water. Deze serre vormt een volwaardig verlengstuk van de woonkamer en is een heerlijke plek om te zitten – ongeacht het seizoen. Dankzij de grote raampartijen komt er veel daglicht binnen en geniet u optimaal van de buitenruimte, ook als u binnen bent.

Via de bijkeuken bereikt u de ruime garage van ca. 41 m². Zeer geschikt voor hobby, opslag of als werkruimte. In deze ruimte kan eventueel ook een slaapkamer gerealiseerd worden (badkamer is al aanwezig);

Verdiepingen
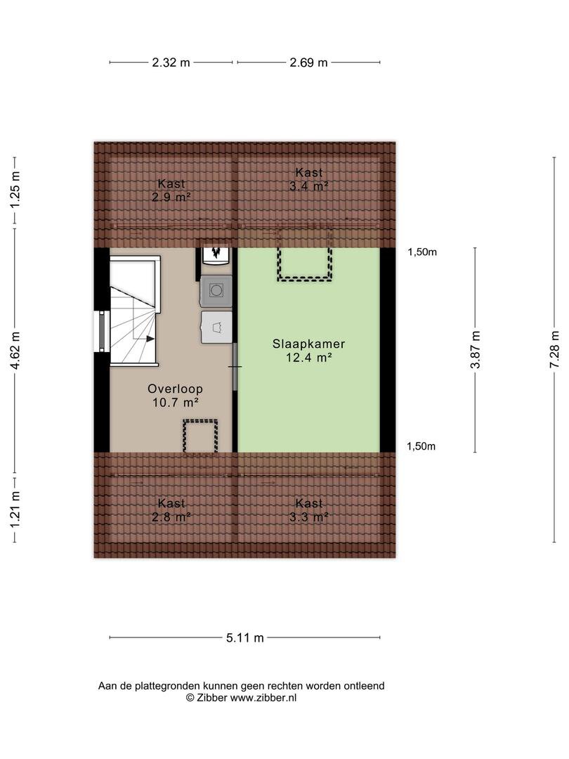
De eerste verdieping telt drie opvallend ruime slaapkamers met diverse garderobekasten. Ook vindt u hier een separaat toilet en een complete badkamer met ligbad en vaste wastafel.

Op de tweede verdieping is er voldoende ruimte om een extra (slaap)kamers te realiseren

Tuin
De verzorgde tuin is fraai aangelegd en beschikt over meerdere terrassen en zitplekken. De ligging direct aan het water zorgt voor een rustige, natuurlijke sfeer en een prachtig uitzicht. Een heerlijke plek om te genieten van privacy, buitenleven en natuur – of je nu wilt ontspannen, tuinieren of gezellig buiten wilt eten.

Bijzonderheden
- Vrijstaande woning uit 2002;
- Woonoppervlakte ca. 246 m²;
- Perceeloppervlakte ca. 700 m²;
- Grote, lichte serre met zicht op tuin en water;
- Ruime garage (ca. 41 m²) en praktische bijkeuken;
- Fraai aangelegde tuin aan het water;
- Deels voorzien van vloerverwarming, optimaal geïsoleerd, energielabel energielabel B.

Ben je op zoek naar een ruime vrijstaande woning op een rustige plek met een unieke ligging aan het water? Dan is Zetveld 14 in De Wilp absoluut een bezichtiging waard.

Interesse? Neem geheel vrijblijvend contact op met Bruining en De Reus Makelaars uit Leek.

Over dit object

Overdracht
Statusbeschikbaar
Prijs€ 625.000 k.k.
Bouw
Bouwjaar2002
Bouwvormbestaande bouw
Type ObjectWoonhuis
HoofdfunctieWoonruimte
Indeling
Woonoppervlakte246 m²
Perceeloppervlakte700 m²
Woning Inhoud990 m³
Kamers5 (4 slaapkamers)
Energie
EnergielabelB
4604e9b8bb67889fd2e5fd7228a00433.jpg
ac67af1fcf0ad480c0ef0a9049f8e748.jpg
a95acac350592dfad48a4f5107eab687.jpg
0c91b6a9d67c1ae3fbbb92d9d9573a8e.jpg
dc3dce9724b7670a307814ea255b0d3a.jpg
f9f9713a6f302e928963155d7b925ba6.jpg
609305a8ac2773358e28996a275ba3f2.jpg
c70051b1046bb34d84aaa7aea493dcd0.jpg
f75dedd21b764c999a40f8b063189ffe.jpg
1235f0fda8502e4d02cd879dd9371baf.jpg
bc4cf4815564c75786d128e42fbb7322.jpg
d6f4a714a16a18be8a9d01c4ac6791f5.jpg
b5a81c76d758b47115e0be76a1ef04bb.jpg
f1017d1616e74f5242eaaa27ce3f3ffb.jpg
c2618400f6932327c1eaec9363e83d53.jpg
10224f6dc1f187c781b6d3c7a8332026.jpg
70dd7e542fb5f2ef5f3f976be8ab63bc.jpg
49723ec271579def811775720beaca75.jpg
f88f6ebac8274aa9e6c65585ac0716f4.jpg
d975c1d53e3210c55c836a81aa15b6d8.jpg
51b4911982f626e2fea0a0161b3eda71.jpg
9061ccef199cd694f36a861bbd67efb6.jpg
2880a5c2446fa681eda0a27a780af337.jpg
aaeed2fe6043a53256dcfd7bd3c39c4c.jpg
cf2d9a0e1a70e99552aebb38a08c042c.jpg
c46ea57dacab4b6368b44d349f48070c.jpg
6d03e8ab3e7edb7a2b5f20b8e10536d5.jpg
0165fcaa0c59e1c05a8bb1fb9c127e62.jpg
2068ca7cb80a7898fd4c3ebfd83423be.jpg
ac099b185cfb4ea8d188f4ecf037b206.jpg
ed21117db3c11f2d6e600c55b011348f.jpg
eaa1de304d8806dd3efbd34df2c85a49.jpg
76f77cd49403d248d5df0a7cc5f7ad1d.jpg
e6d6d9c6104716b65f285a525eb4d793.jpg
9f0190a4d7e92a5031e5c6b4dba5381c.jpg
dee46e3665e2784c2e434440711482fe.jpg