
Schubertweg 12
Eelde
contact met
Riant Makelaars Groningen
| 050 850 33 56 | |
| info@riantmakelaars.nl | |
| 050 850 33 56 | |
| Hereweg 29, 9725 AA Groningen |
Ruime hoekwoning op een prachtige locatie in Eelde – met royale kavel, garage en gloednieuwe tuin!
Aan de groene, rustige en lommerrijke Schubertweg in Eelde ligt deze verrassend ruime en goed onderhouden hoekwoning met garage, twee parkeerplaatsen op eigen terrein, een separate fietsenberging én een recent compleet vernieuwde, voor- én achtertuin. De woning ligt in het groen op een royaal perceel van 478 m² en beschikt over maar liefst 9 zonnepanelen – klaar voor de toekomst dus!
De ligging is ideaal: op loopafstand van het centrum van Eelde, scholen, winkels, sportvoorzieningen en nabij uitvalswegen richting Groningen en Assen. Via de doorfietsroute is Groningen bovendien goed bereikbaar met de fiets. Deze fijne gezinswoning is van alle gemakken voorzien en biedt volop privacy, ruimte en comfort.
INDELING
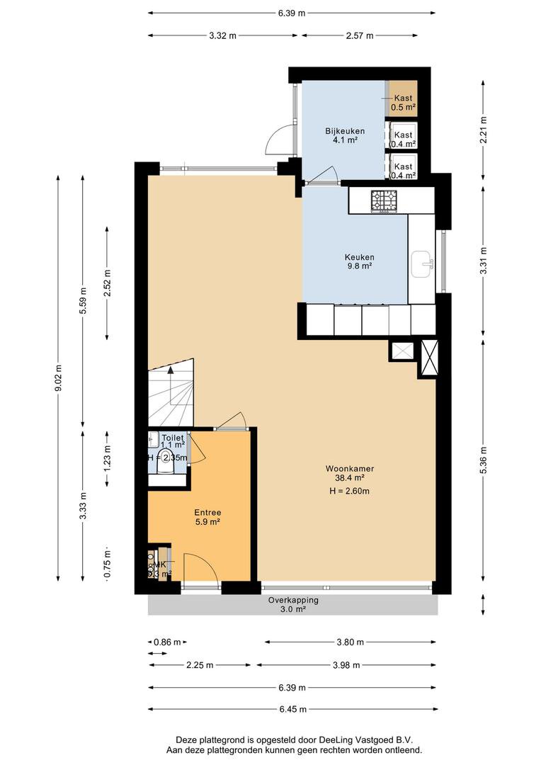
Begane grond:
Ruime entree/hal met garderobenis en modern toilet met fonteintje. De royale, sfeervolle Z-vormige woonkamer van ca. 40 m² is voorzien van een open haard en een prettige lichtinval dankzij de grote raampartijen. De woonkamer en de eetkamer bieden mooi zicht op de tuin en het groen biedt veel privacy.
De halfopen keuken is uitgevoerd met luxe Siemens-inbouwapparatuur, waaronder een vaatwasser, koffiezetapparaat, combi-oven, koelkast, vriezer, 5-pits gaskookplaat en afzuigkap. Aansluitend de ruime bijkeuken met praktische kastenwand en plaats voor wasmachine en droger.
Via de bijkeuken is er directe toegang tot de prachtig vernieuwde tuin met een grote diversiteit aan bloemen en planten en gunstig gelegen ten opzichte van de zon. Vanuit de tuin heb je ook direct toegang tot de aangrenzende garage.
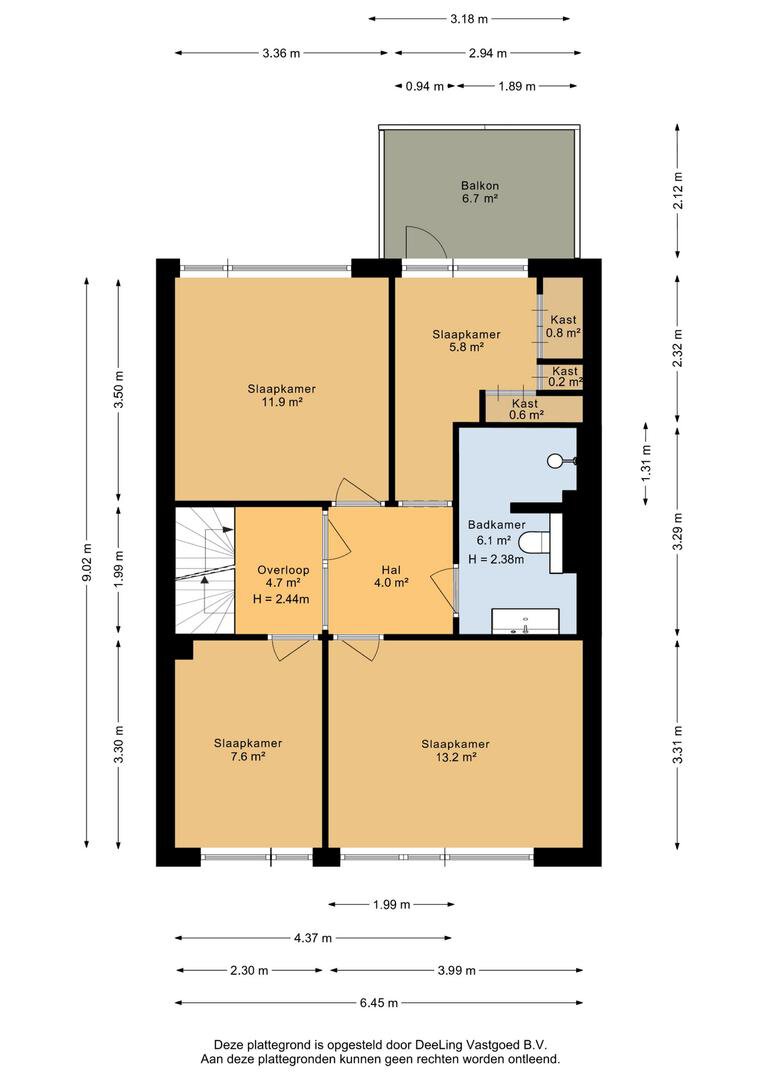
Eerste verdieping:
Overloop met tochtportaal: hal, 4 ruime slaapkamers, waarvan één met toegang tot het balkon. De inpandige badkamer is modern afgewerkt en voorzien van een inloopdouche, een fraai wastafelmeubel met dubbele wasbak en een wandcloset.
Tweede verdieping:
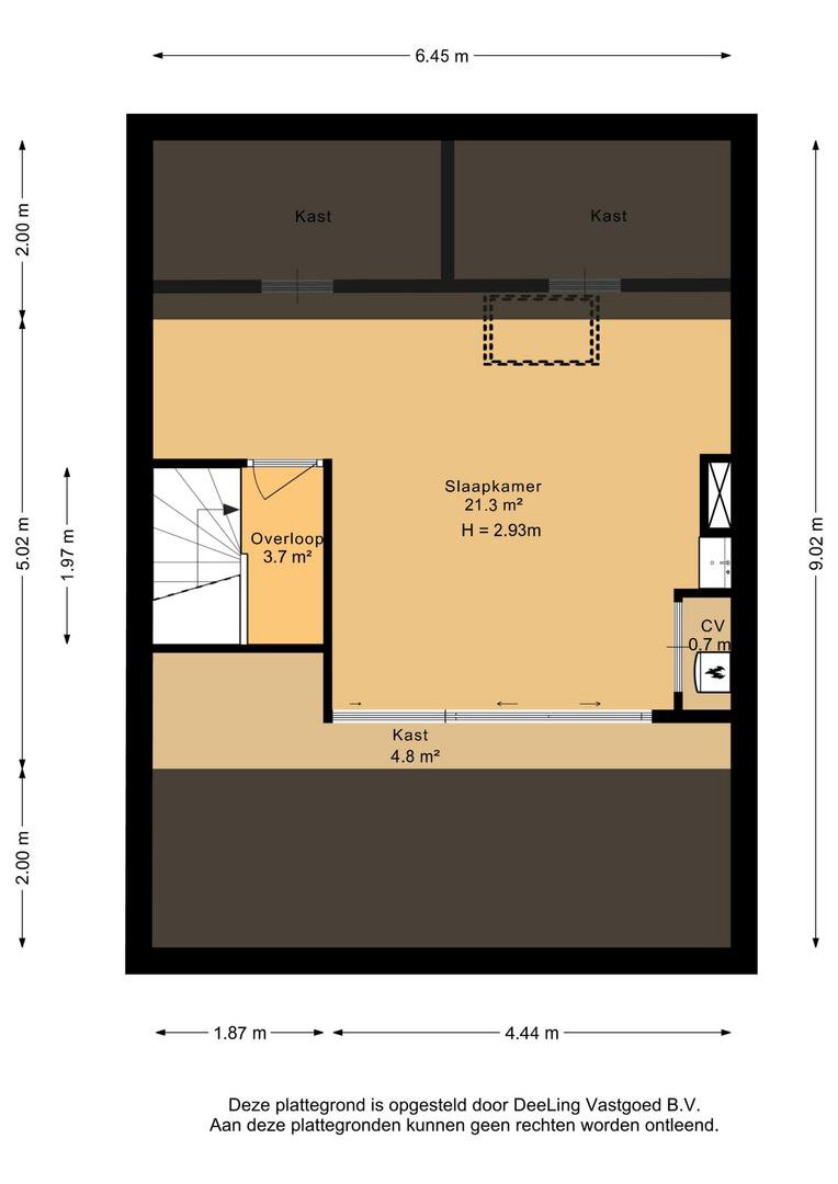
Overloop met toegang tot bergruimte en een vijfde kamer van ca. 18 m², ideaal als slaap-, werk- of hobbyruimte. Deze kamer is voorzien van een wastafel, bergruimte achter de knieschotten en tevens is hier de cv-ketel te vinden.
Goed om te weten:
- Gelegen aan een rustige, groene straat in een geliefde woonwijk
- Perceel van 478 m² met veel privacy en een zonnige en recent aangelegde voor- en achtertuin
- De diepe voortuin geeft privacy en een gevoel van ruimte
- Garage met toegang vanuit de tuin
- 9 zonnepanelen (2023)
- Volledig geïsoleerd en goed onderhouden
- Verwarming via CV-ketel (2009)
- Woonoppervlak ca. 153 m²
- Rustig en comfortabel wonen!
Tip: bekijk ook de video van deze woning!
Ben je op zoek naar een ruime, instapklare woning met veel buitenruimte, privacy én duurzaamheid op een mooie locatie in Eelde? Dan is dit je kans! Neem contact met ons op voor een bezichtiging!
Aan de groene, rustige en lommerrijke Schubertweg in Eelde ligt deze verrassend ruime en goed onderhouden hoekwoning met garage, twee parkeerplaatsen op eigen terrein, een separate fietsenberging én een recent compleet vernieuwde, voor- én achtertuin. De woning ligt in het groen op een royaal perceel van 478 m² en beschikt over maar liefst 9 zonnepanelen – klaar voor de toekomst dus!
De ligging is ideaal: op loopafstand van het centrum van Eelde, scholen, winkels, sportvoorzieningen en nabij uitvalswegen richting Groningen en Assen. Via de doorfietsroute is Groningen bovendien goed bereikbaar met de fiets. Deze fijne gezinswoning is van alle gemakken voorzien en biedt volop privacy, ruimte en comfort.
INDELING
Begane grond:
Ruime entree/hal met garderobenis en modern toilet met fonteintje. De royale, sfeervolle Z-vormige woonkamer van ca. 40 m² is voorzien van een open haard en een prettige lichtinval dankzij de grote raampartijen. De woonkamer en de eetkamer bieden mooi zicht op de tuin en het groen biedt veel privacy.
De halfopen keuken is uitgevoerd met luxe Siemens-inbouwapparatuur, waaronder een vaatwasser, koffiezetapparaat, combi-oven, koelkast, vriezer, 5-pits gaskookplaat en afzuigkap. Aansluitend de ruime bijkeuken met praktische kastenwand en plaats voor wasmachine en droger.
Via de bijkeuken is er directe toegang tot de prachtig vernieuwde tuin met een grote diversiteit aan bloemen en planten en gunstig gelegen ten opzichte van de zon. Vanuit de tuin heb je ook direct toegang tot de aangrenzende garage.
Eerste verdieping:
Overloop met tochtportaal: hal, 4 ruime slaapkamers, waarvan één met toegang tot het balkon. De inpandige badkamer is modern afgewerkt en voorzien van een inloopdouche, een fraai wastafelmeubel met dubbele wasbak en een wandcloset.
Tweede verdieping:
Overloop met toegang tot bergruimte en een vijfde kamer van ca. 18 m², ideaal als slaap-, werk- of hobbyruimte. Deze kamer is voorzien van een wastafel, bergruimte achter de knieschotten en tevens is hier de cv-ketel te vinden.
Goed om te weten:
- Gelegen aan een rustige, groene straat in een geliefde woonwijk
- Perceel van 478 m² met veel privacy en een zonnige en recent aangelegde voor- en achtertuin
- De diepe voortuin geeft privacy en een gevoel van ruimte
- Garage met toegang vanuit de tuin
- 9 zonnepanelen (2023)
- Volledig geïsoleerd en goed onderhouden
- Verwarming via CV-ketel (2009)
- Woonoppervlak ca. 153 m²
- Rustig en comfortabel wonen!
Tip: bekijk ook de video van deze woning!
Ben je op zoek naar een ruime, instapklare woning met veel buitenruimte, privacy én duurzaamheid op een mooie locatie in Eelde? Dan is dit je kans! Neem contact met ons op voor een bezichtiging!
Over dit object
Overdracht
| Status | verkocht |
|---|---|
| Prijs | € 525.000 k.k. |
Bouw
| Bouwjaar | 1973 |
|---|---|
| Bouwvorm | bestaande bouw |
| Type Object | Woonhuis |
| Hoofdfunctie | Woonruimte |
Indeling
| Woonoppervlakte | 153 m² |
|---|---|
| Perceeloppervlakte | 478 m² |
| Woning Inhoud | 533 m³ |
| Kamers | 6 (5 slaapkamers) |
Energie
| Energielabel | B |
|---|



















































































