
Heidehoek 53
Zevenhuizen
contact met
Bruining en De Reus
| 0594 55 43 55 | |
| leek@bruiningdereus.nl | |
| 06 8281 0106 | |
| Boveneind 20, 9351 AP Leek | |
| bruiningdereus.nl |
Ruime, goed onderhouden, vrijstaande woning met tuin en garage met zolder.
Deze goed onderhouden vrijstaande woning uit 1984 ligt in het rustige dorp Zevenhuizen, op korte afstand van Drachten en Groningen, en met een goede verbinding naar de A7. De woning biedt veel ruimte en comfort, zowel binnen als buiten.
Indeling:
Begane grond:
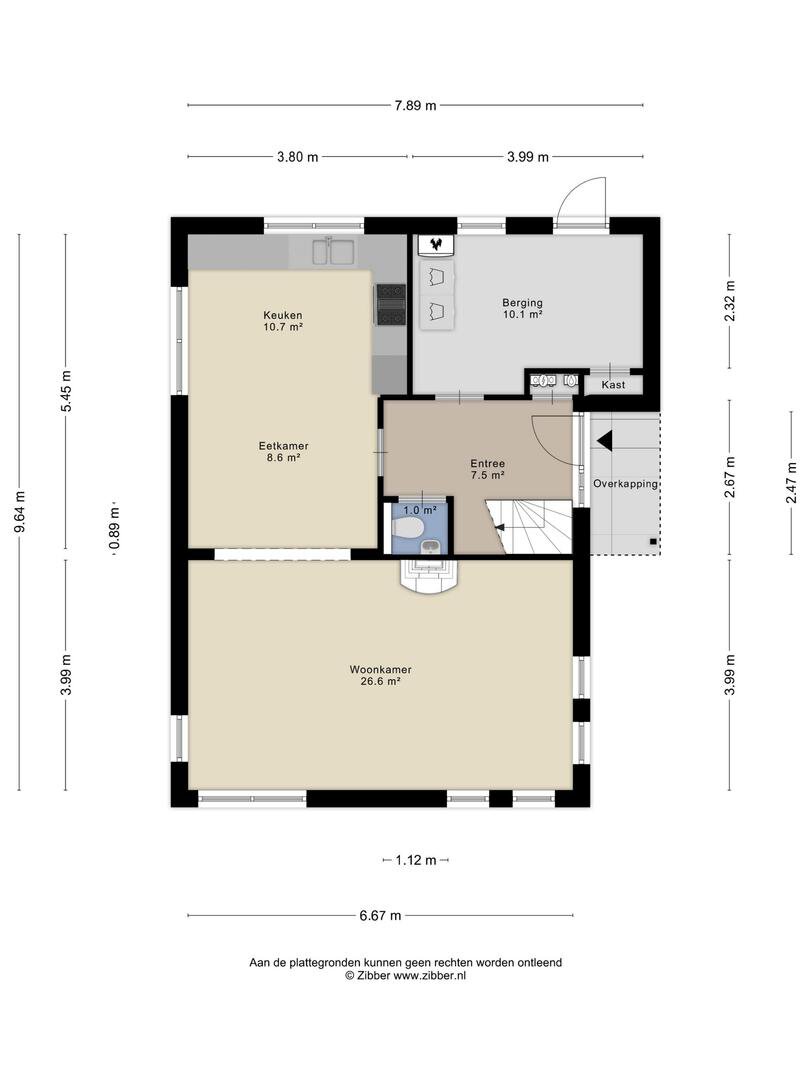
Bij binnenkomst kom je in een ruime hal met meterkast en een toilet met fonteintje. De hal geeft toegang tot de ruime woonkamer met veel daglicht. De woonkamer heeft een prettige, open indeling en biedt voldoende ruimte voor een zithoek en een eettafel. Aansluitend bevindt zich de keuken voorzien van diverse inbouwapparatuur en toegang tot de ruime bijkeuken.
Eerste verdieping:
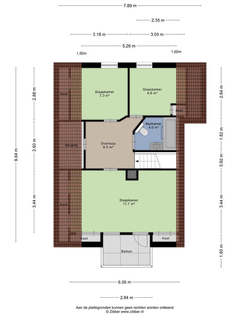
Op de eerste verdieping bevindt zich aan de voorzijde een ruime slaapkamer met toegang tot een balkon dat uitzicht biedt op de rustige omgeving. Verder zijn er nog twee slaapkamers aan de achterzijde. De badkamer is praktisch ingericht met een douche, ligbad, toilet en wastafel.
Tuin en bijgebouwen:
De woning beschikt over een ruime tuin met een vijver, een ideale plek om van het buitenleven te genieten. Er is tevens een vrijstaande ruime garage met zolder, welke geschikt is voor het parkeren van een auto of voor extra opslag.
Bijzonderheden:
- goed onderhouden woonhuis;
- oprit voor meerdere auto's;
- woonoppervlakte ca. 116 m²;
- perceeloppervlakte ca. 431 m²;
- 6 eigen zonnepanelen;
- goed geïsoleerde woning, energielabel B;
- centrale verwarming middels eigen CV-ketel (2018 HRe);
Aanvaarding: in overleg (kan snel)
Deze woning biedt een uitstekende combinatie van rust, ruimte en bereikbaarheid. Ben je op zoek naar een goed onderhouden woning in een rustige omgeving? Maak dan een afspraak met Bruining en De Reus Makelaars om deze woning te bezichtigen!
Deze goed onderhouden vrijstaande woning uit 1984 ligt in het rustige dorp Zevenhuizen, op korte afstand van Drachten en Groningen, en met een goede verbinding naar de A7. De woning biedt veel ruimte en comfort, zowel binnen als buiten.
Indeling:
Begane grond:
Bij binnenkomst kom je in een ruime hal met meterkast en een toilet met fonteintje. De hal geeft toegang tot de ruime woonkamer met veel daglicht. De woonkamer heeft een prettige, open indeling en biedt voldoende ruimte voor een zithoek en een eettafel. Aansluitend bevindt zich de keuken voorzien van diverse inbouwapparatuur en toegang tot de ruime bijkeuken.
Eerste verdieping:
Op de eerste verdieping bevindt zich aan de voorzijde een ruime slaapkamer met toegang tot een balkon dat uitzicht biedt op de rustige omgeving. Verder zijn er nog twee slaapkamers aan de achterzijde. De badkamer is praktisch ingericht met een douche, ligbad, toilet en wastafel.
Tuin en bijgebouwen:
De woning beschikt over een ruime tuin met een vijver, een ideale plek om van het buitenleven te genieten. Er is tevens een vrijstaande ruime garage met zolder, welke geschikt is voor het parkeren van een auto of voor extra opslag.
Bijzonderheden:
- goed onderhouden woonhuis;
- oprit voor meerdere auto's;
- woonoppervlakte ca. 116 m²;
- perceeloppervlakte ca. 431 m²;
- 6 eigen zonnepanelen;
- goed geïsoleerde woning, energielabel B;
- centrale verwarming middels eigen CV-ketel (2018 HRe);
Aanvaarding: in overleg (kan snel)
Deze woning biedt een uitstekende combinatie van rust, ruimte en bereikbaarheid. Ben je op zoek naar een goed onderhouden woning in een rustige omgeving? Maak dan een afspraak met Bruining en De Reus Makelaars om deze woning te bezichtigen!
Over dit object
Overdracht
| Status | verkocht |
|---|---|
| Prijs | € 425.000 k.k. |
Bouw
| Bouwjaar | 1984 |
|---|---|
| Bouwvorm | bestaande bouw |
| Type Object | Woonhuis |
| Hoofdfunctie | Woonruimte |
Indeling
| Woonoppervlakte | 116 m² |
|---|---|
| Perceeloppervlakte | 463 m² |
| Woning Inhoud | 431 m³ |
| Kamers | 4 (3 slaapkamers) |
Energie
| Energielabel | B |
|---|



































































