
Grunostraat 51
Groningen
contact met
Riant Makelaars Groningen
| 050 850 33 56 | |
| info@riantmakelaars.nl | |
| 050 850 33 56 | |
| Hereweg 29, 9725 AA Groningen |
Luxe, ruime woning (maisonnette) op de begane grond en eerste verdieping, met een heerlijke tuin op het zuiden. Deze moderne woning is gebouwd in 2011 met het oog op duurzaamheid wat je terugziet in de maandelijkse lasten. Het is gelegen in een geliefde buurt met voldoende parkeergelegenheid en op loopafstand van het stadscentrum en het stadspark.
DUURZAAM
De woningen in "Complex Statie" zijn op duurzame wijze gebouwd. Zo zijn er aluminium kozijnen en wordt er middels aardwarmte verwarmd. Er is vloerverwarming door de gehele woning. In de woning wordt geen gas verbruikt en dankzij dit systeem worden de ruimtes in de zomer gekoeld en in de winter verwarmd.
INDELING
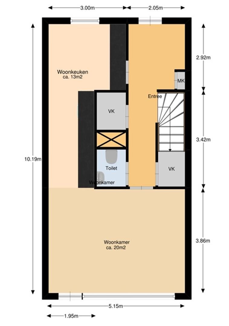
Begane grond: entree/hal met keurig toilet inclusief fonteintje en twee bergruimtes. De lichte woonkamer is aan de achterzijde voorzien van glazen tuindeuren en ramen vanaf de vloer. De moderne luxe keuken is voorzien van hoogwaardige kwaliteitsapparatuur van Bosch zoals de inductiekookplaat met warmhoudplaat, afzuigkap, vaatwasser, koel-/vriescombinatie, oven én combi oven. De begane grond is voorzien van een nieuwe laminaatvloer.
Eerste verdieping: via de trapopgang bereik je de overloop met vaste kast en toegang tot drie slaapkamers en de badkamer. De slaapkamers zijn ca. 14, 12 en 6 m². De wasruimte van bijna 5 m² op de overloop heeft een aansluiting voor wasmachine e.d. en is eventueel geschikt als walk-in-closet. De raampartijen van de slaapkamers hebben een draai-/kiepsysteem. De moderne, volledig betegelde badkamer van is voorzien van een inloopdouche, tweede toilet en badkamermeubel met wastafel.
De gehele woning is voorzien van een mooie laminaatvloer met vloerverwarming.
TUIN
Vanuit de woonkamer bereik je via openslaande tuindeuren de fraai aangelegde tuin op het zonnige zuiden met achterom en berging. Dankzij de ligging, kun je heerlijk genieten van de zon.
PARKEERPLAATS
Voor de deur is voldoende parkeergelegenheid (bezoekersvergunning) en eventueel kan een parkeerplaats worden gehuurd in de onderliggende parkeergarage in het gebouw tegenover. De weergegeven huurprijs is exclusief de kosten voor een eventuele parkeerplaats.
COMPLEX STATIE
Het complex beschikt over 2 liften die je bijvoorbeeld naar het dakterras brengen.
HUURVOORWAARDEN
- woning is van binnen geverfd in 2025;
- nieuwe laminaatvloer op de begane grond;
- De huurprijs bedraagt € 1.695,- per maand, exclusief kosten verwarming (WarmteStad), elektriciteit, water, CAI, internet en gemeentelijke belastingen;
- Borg € 1.695,-
- Deze woning is per direct beschikbaar;
- Minimale huurperiode 1 jaar;
- Geen bemiddelingskosten;
- Verhuur aan maximaal 2 personen of gezin met kind(eren), geen studenten;
- Inkomensvoorwaarden zijn van toepassing.
MOCHT JE IN AANMERKING WILLEN KOMEN voor deze woning, ontvangen wij graag een ingevuld INSCHRIJFFORMULIER (zit in de brochure) met daarin een korte motivatie en een bewijs van je inkomen; overige aanvragen worden NIET in behandeling genomen.
DUURZAAM
De woningen in "Complex Statie" zijn op duurzame wijze gebouwd. Zo zijn er aluminium kozijnen en wordt er middels aardwarmte verwarmd. Er is vloerverwarming door de gehele woning. In de woning wordt geen gas verbruikt en dankzij dit systeem worden de ruimtes in de zomer gekoeld en in de winter verwarmd.
INDELING
Begane grond: entree/hal met keurig toilet inclusief fonteintje en twee bergruimtes. De lichte woonkamer is aan de achterzijde voorzien van glazen tuindeuren en ramen vanaf de vloer. De moderne luxe keuken is voorzien van hoogwaardige kwaliteitsapparatuur van Bosch zoals de inductiekookplaat met warmhoudplaat, afzuigkap, vaatwasser, koel-/vriescombinatie, oven én combi oven. De begane grond is voorzien van een nieuwe laminaatvloer.
Eerste verdieping: via de trapopgang bereik je de overloop met vaste kast en toegang tot drie slaapkamers en de badkamer. De slaapkamers zijn ca. 14, 12 en 6 m². De wasruimte van bijna 5 m² op de overloop heeft een aansluiting voor wasmachine e.d. en is eventueel geschikt als walk-in-closet. De raampartijen van de slaapkamers hebben een draai-/kiepsysteem. De moderne, volledig betegelde badkamer van is voorzien van een inloopdouche, tweede toilet en badkamermeubel met wastafel.
De gehele woning is voorzien van een mooie laminaatvloer met vloerverwarming.
TUIN
Vanuit de woonkamer bereik je via openslaande tuindeuren de fraai aangelegde tuin op het zonnige zuiden met achterom en berging. Dankzij de ligging, kun je heerlijk genieten van de zon.
PARKEERPLAATS
Voor de deur is voldoende parkeergelegenheid (bezoekersvergunning) en eventueel kan een parkeerplaats worden gehuurd in de onderliggende parkeergarage in het gebouw tegenover. De weergegeven huurprijs is exclusief de kosten voor een eventuele parkeerplaats.
COMPLEX STATIE
Het complex beschikt over 2 liften die je bijvoorbeeld naar het dakterras brengen.
HUURVOORWAARDEN
- woning is van binnen geverfd in 2025;
- nieuwe laminaatvloer op de begane grond;
- De huurprijs bedraagt € 1.695,- per maand, exclusief kosten verwarming (WarmteStad), elektriciteit, water, CAI, internet en gemeentelijke belastingen;
- Borg € 1.695,-
- Deze woning is per direct beschikbaar;
- Minimale huurperiode 1 jaar;
- Geen bemiddelingskosten;
- Verhuur aan maximaal 2 personen of gezin met kind(eren), geen studenten;
- Inkomensvoorwaarden zijn van toepassing.
MOCHT JE IN AANMERKING WILLEN KOMEN voor deze woning, ontvangen wij graag een ingevuld INSCHRIJFFORMULIER (zit in de brochure) met daarin een korte motivatie en een bewijs van je inkomen; overige aanvragen worden NIET in behandeling genomen.
Over dit object
Overdracht
| Status | verhuurd |
|---|---|
| Prijs | € 1.695,00 p.m |
Bouw
| Bouwjaar | 2011 |
|---|---|
| Bouwvorm | bestaande bouw |
| Type Object | Appartement |
| Hoofdfunctie | Woonruimte |
Indeling
| Woonoppervlakte | 105 m² |
|---|---|
| Woning Inhoud | 306 m³ |
| Kamers | 4 (3 slaapkamers) |
Energie
| Energielabel | A |
|---|















































