
Granpré Molièreweg 32
Groningen
contact met
Riant Makelaars Groningen
| 050 850 33 56 | |
| info@riantmakelaars.nl | |
| 050 850 33 56 | |
| Hereweg 29, 9725 AA Groningen |
Zeer nette woning met drie riante slaapkamers; ideaal voor gezinnen! Deze tussenwoning heeft maar liefst ca. 14 m² extra leefruimte op de begane grond dankzij de mooie uitbouw met lichtstraat aan de achterzijde van de woning. Daarnaast is op de tweede verdieping eveneens uitgebouwd middels een dakopbouw, waardoor de woning een ruime slaapkamer heeft en de mogelijkheid om een vierde slaapkamer te realiseren. Hierdoor onderscheid deze woning zich van de andere woningen in de straat. Het dakterras op het oosten biedt extra buitenruimte met de ochtendzon. De achtertuin is gelegen op het zonnige westen. Heerlijk om na een lange werkdag nog te genieten van de zon!
De Hunze is een jonge, kindvriendelijke woonwijk met verschillende speelveldjes en het sportcentrum Kardinge praktisch om de hoek. Het centrum van Groningen bereik je met ca. 10 minuten fietsen, maar mocht je liever de bus pakken is dit ook mogelijk; er bevinden zich diverse bushaltes in de wijk. Daarnaast zit je binnen enkele minuten op de ringweg van Groningen.
INDELING
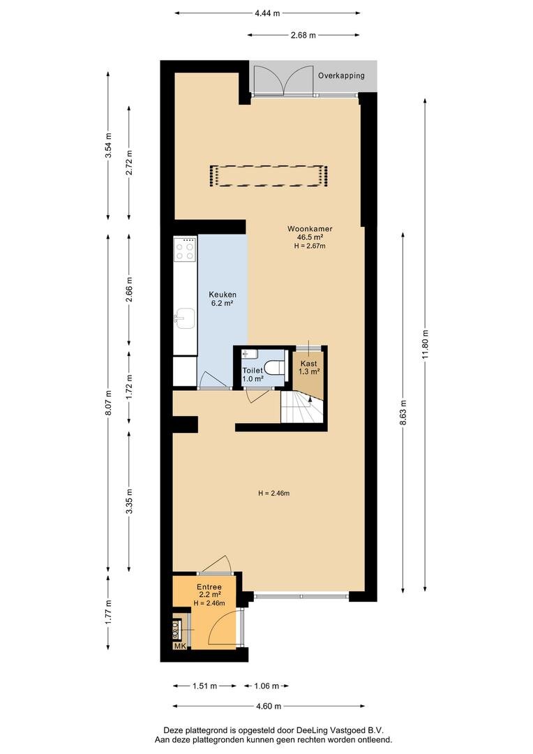
Begane grond: entree/hal, zeer ruime woonkamer van ca. 47 m², verdeeld over de voor- en achterzijde van de woning. Aan de achterzijde heeft de woning een mooie uitbouw met extra licht dankzij de lichtstraat en openslaande deuren naar de achtertuin. De open keuken is in 2022 vernieuwd en beschikt over een moderne keukenopstelling met inductiekookplaat, afzuigkap, combi-oven, koelkast, vriezer en vaatwasser. Een extra hal geeft toegang tot de toiletruimte en trapopgang.
Eerste verdieping: overloop, twee slaapkamers van 18 en 12 m², nette badkamer met douche, wastafelmeubel en tweede toilet.
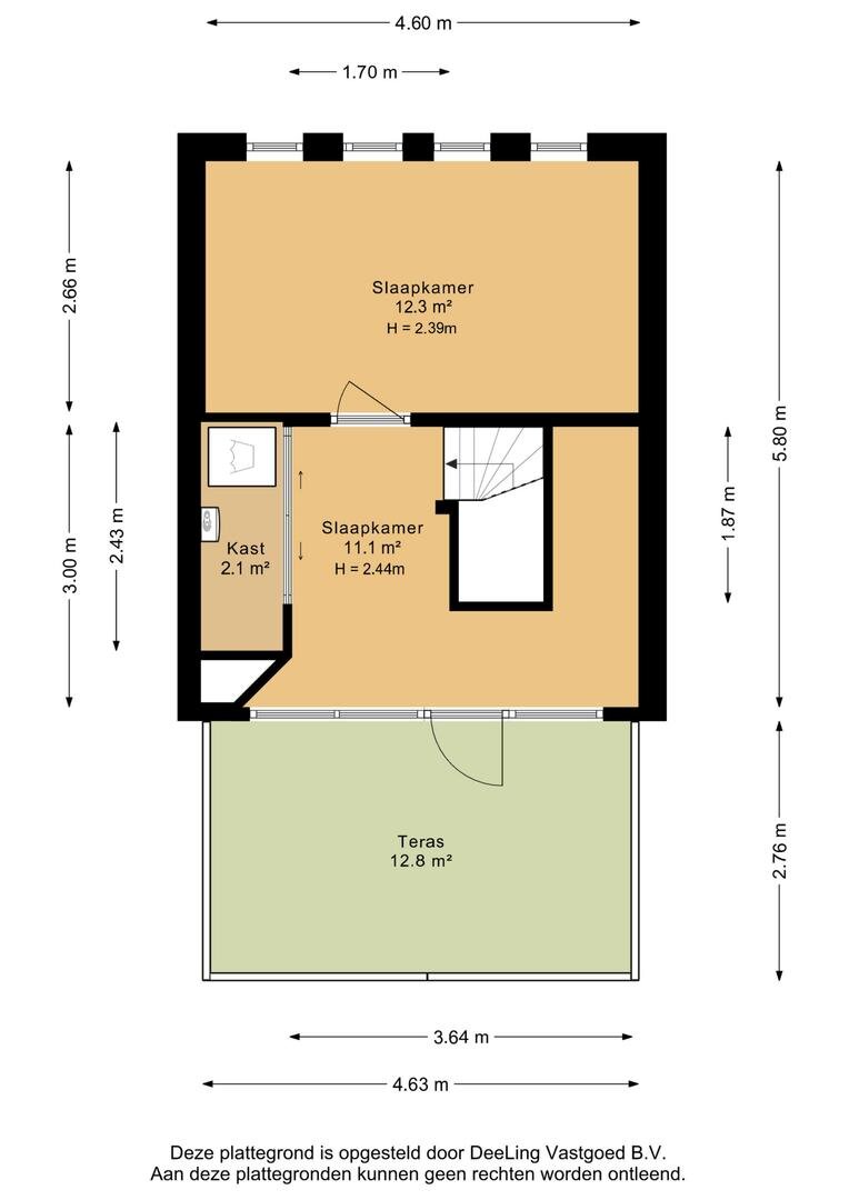
Tweede verdieping: (slaap)kamer van ca. 11 m² met vaste kast voorzien van witgoedaansluiting en cv-opstelling. Vanaf hier bereik je het ruime dakterras op het oosten. De slaapkamer aan de achterzijde is ca. 12 m².
BUITENRUIMTE
De achtertuin op het westen biedt de mogelijkheid om van de middag- en avondzon te genieten. Het dakterras aan de voorzijde is gelegen op het oosten en dat betekent dat hier de ochtendzon op schijnt. Oftewel: altijd een mogelijkheid om in de zon te zitten! De achtertuin is onderhoudsvrij aangelegd en heeft een ruime berging van ca. 9 m² met toegang tot de brandgang.
GOED OM TE WETEN
- ruime, goed onderhouden tussenwoning;
- mogelijkheid tot een vierde slaapkamer;
- uitbouw aan de achterzijde (2015);
- veel buitenruimte dankzij de tuin én dakterras;
- keuken vernieuwd in 2022;
- voorzien van 7 zonnepanelen;
- dubbelglas en deels HR++ glas;
- volledig geïsoleerd en een energielabel A;
- cv-ketel Remeha 2014 (eigendom);
- mechanische ventilatie (2020);
- waterontharder aanwezig;
- plat dak onder dakterras in 2021 vervangen en geïsoleerd;
- aanvaarding in overleg.
De Hunze is een jonge, kindvriendelijke woonwijk met verschillende speelveldjes en het sportcentrum Kardinge praktisch om de hoek. Het centrum van Groningen bereik je met ca. 10 minuten fietsen, maar mocht je liever de bus pakken is dit ook mogelijk; er bevinden zich diverse bushaltes in de wijk. Daarnaast zit je binnen enkele minuten op de ringweg van Groningen.
INDELING
Begane grond: entree/hal, zeer ruime woonkamer van ca. 47 m², verdeeld over de voor- en achterzijde van de woning. Aan de achterzijde heeft de woning een mooie uitbouw met extra licht dankzij de lichtstraat en openslaande deuren naar de achtertuin. De open keuken is in 2022 vernieuwd en beschikt over een moderne keukenopstelling met inductiekookplaat, afzuigkap, combi-oven, koelkast, vriezer en vaatwasser. Een extra hal geeft toegang tot de toiletruimte en trapopgang.
Eerste verdieping: overloop, twee slaapkamers van 18 en 12 m², nette badkamer met douche, wastafelmeubel en tweede toilet.
Tweede verdieping: (slaap)kamer van ca. 11 m² met vaste kast voorzien van witgoedaansluiting en cv-opstelling. Vanaf hier bereik je het ruime dakterras op het oosten. De slaapkamer aan de achterzijde is ca. 12 m².
BUITENRUIMTE
De achtertuin op het westen biedt de mogelijkheid om van de middag- en avondzon te genieten. Het dakterras aan de voorzijde is gelegen op het oosten en dat betekent dat hier de ochtendzon op schijnt. Oftewel: altijd een mogelijkheid om in de zon te zitten! De achtertuin is onderhoudsvrij aangelegd en heeft een ruime berging van ca. 9 m² met toegang tot de brandgang.
GOED OM TE WETEN
- ruime, goed onderhouden tussenwoning;
- mogelijkheid tot een vierde slaapkamer;
- uitbouw aan de achterzijde (2015);
- veel buitenruimte dankzij de tuin én dakterras;
- keuken vernieuwd in 2022;
- voorzien van 7 zonnepanelen;
- dubbelglas en deels HR++ glas;
- volledig geïsoleerd en een energielabel A;
- cv-ketel Remeha 2014 (eigendom);
- mechanische ventilatie (2020);
- waterontharder aanwezig;
- plat dak onder dakterras in 2021 vervangen en geïsoleerd;
- aanvaarding in overleg.
Over dit object
Overdracht
| Status | verkocht |
|---|---|
| Prijs | € 399.000 k.k. |
Bouw
| Bouwjaar | 1991 |
|---|---|
| Bouwvorm | bestaande bouw |
| Type Object | Woonhuis |
| Hoofdfunctie | Woonruimte |
Indeling
| Woonoppervlakte | 123 m² |
|---|---|
| Perceeloppervlakte | 115 m² |
| Woning Inhoud | 418 m³ |
| Kamers | 5 (3 slaapkamers) |
Energie
| Energielabel | A |
|---|

































































































