
Eilardaheerd 28 c
Groningen
contact met
Riant Makelaars Groningen
| 050 850 33 56 | |
| groningen@riantmakelaars.nl | |
| 050 850 33 56 | |
| Hereweg 29, 9725 AA Groningen |
Goed onderhouden eengezinswoning met vier slaapkamers en een heerlijke achtertuin op het westen. Hier laat de middagzon zich zien tot in de late uurtjes en dankzij de luxe overkapping kun je hier ook met minder weer genieten van de tuin. De badkamer is in 2022 nog vernieuwd en daarnaast is de woning goed geïsoleerd en met 6 zonnepanelen energiezuinig te noemen.
De woning is gelegen in een rustige straat in Beijum met groen rondom de woning. Voorzieningen zoals een overdekt winkelcentrum, openbaar vervoer, scholen en sportfaciliteiten vind je in de omgeving en binnen enkele minuten rijden ben je op de ringweg van Groningen. Het centrum van Groningen ligt op een kwartier fietsen en het sportcentrum Kardinge bereik je al binnen 10 minuten.
INDELING
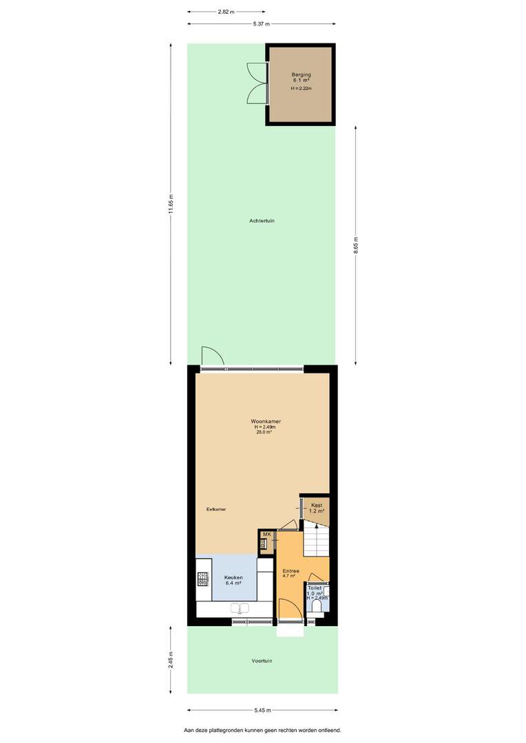
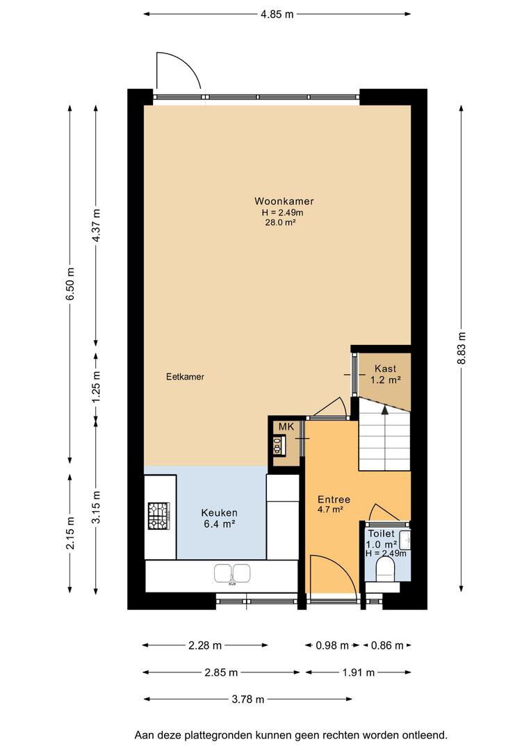
Begane grond: entree/hal, moderne toiletruimte, lichte en tuingerichte woonkamer van ca. 28 m² met deur naar de achtertuin. De open keuken is ca. 6 m² en de keukenopstelling is voorzien van o.a. een 4-pits gaskookplaat, oven, koelkast, vriezer en vaatwasser.
Eerste verdieping: overloop, drie slaapkamers van ca. 12, 9 en 5 m², moderne badkamer (2022) met douche, wastafelmeubel, tweede toilet en designradiator.
Tweede verdieping: overloop met bergruimte, wasmachineaansluiting en cv-opstelling. De slaapkamer is ca. 10 m².
BUITENRUIMTE
De fraai aangelegde achtertuin is gelegen op het westen, waardoor er tot laat op de dag zon is. Heerlijk om na het werk in het zonnetje te zitten of om te barbecueën. De overkapping aan de achterzijde van het huis geeft de mogelijkheid om met minder weer ook lekker buiten te zijn. Achterin de tuin bevindt zich een vrijstaande berging en een achterom.
GOED OM TE WETEN
- goed onderhouden woonhuis;
- zonnige achtertuin met overkapping;
- ideaal voor starters en gezinnen;
- alle voorzieningen binnen handbereik;
- badkamer vernieuwd in 2022;
- voorzien van 6 zonnepanelen;
- energielabel A;
- cv-ketel Remeha 2019 (eigendom);
- mechanische ventilatie in de woning;
- aanvaarding in overleg.
De woning is gelegen in een rustige straat in Beijum met groen rondom de woning. Voorzieningen zoals een overdekt winkelcentrum, openbaar vervoer, scholen en sportfaciliteiten vind je in de omgeving en binnen enkele minuten rijden ben je op de ringweg van Groningen. Het centrum van Groningen ligt op een kwartier fietsen en het sportcentrum Kardinge bereik je al binnen 10 minuten.
INDELING
Begane grond: entree/hal, moderne toiletruimte, lichte en tuingerichte woonkamer van ca. 28 m² met deur naar de achtertuin. De open keuken is ca. 6 m² en de keukenopstelling is voorzien van o.a. een 4-pits gaskookplaat, oven, koelkast, vriezer en vaatwasser.
Eerste verdieping: overloop, drie slaapkamers van ca. 12, 9 en 5 m², moderne badkamer (2022) met douche, wastafelmeubel, tweede toilet en designradiator.
Tweede verdieping: overloop met bergruimte, wasmachineaansluiting en cv-opstelling. De slaapkamer is ca. 10 m².
BUITENRUIMTE
De fraai aangelegde achtertuin is gelegen op het westen, waardoor er tot laat op de dag zon is. Heerlijk om na het werk in het zonnetje te zitten of om te barbecueën. De overkapping aan de achterzijde van het huis geeft de mogelijkheid om met minder weer ook lekker buiten te zijn. Achterin de tuin bevindt zich een vrijstaande berging en een achterom.
GOED OM TE WETEN
- goed onderhouden woonhuis;
- zonnige achtertuin met overkapping;
- ideaal voor starters en gezinnen;
- alle voorzieningen binnen handbereik;
- badkamer vernieuwd in 2022;
- voorzien van 6 zonnepanelen;
- energielabel A;
- cv-ketel Remeha 2019 (eigendom);
- mechanische ventilatie in de woning;
- aanvaarding in overleg.
Over dit object
Overdracht
| Status | verkocht |
|---|---|
| Prijs | € 289.000 k.k. |
Bouw
| Bouwjaar | 1983 |
|---|---|
| Bouwvorm | bestaande bouw |
| Type Object | Woonhuis |
| Hoofdfunctie | Woonruimte |
Indeling
| Woonoppervlakte | 96 m² |
|---|---|
| Perceeloppervlakte | 113 m² |
| Woning Inhoud | 337 m³ |
| Kamers | 5 (4 slaapkamers) |
Energie
| Energielabel | A |
|---|











































































