
Ceresakker 11
Bedum
contact met
Riant Makelaars Bedum
| 050 301 3775 | |
| bedum@riantmakelaars.nl | |
| 050 8503356 | |
| Molenweg 22, 9781 GM Bedum |
In een kindvriendelijke buurt staat deze nette en uitgebouwde eengezinswoning met, dankzij de dakopbouw, maar liefst vijf slaapkamers. Deze ruime woning biedt plek voor het hele gezin! De onderhoudsvrije achtertuin met berging en achterom is gelegen op het noorden, wat de mogelijkheid geeft om zowel in de zon als de schaduw te zitten. De woning is goed geïsoleerd en beschikt over een energielabel A.
De woning is gelegen in het gezellige dorp Bedum, met het Geert Reinderspark en het Bedumer bos om de hoek. Alle voorzieningen zoals winkels, scholen, eetgelegenheden en sportfaciliteiten vind je in het dorp. De stad Groningen is gelegen op ca. 15 minuten rijden en daarnaast beschikt het dorp over diverse bushaltes en het treinstation met de treinverbinding naar de stad. Mocht je de fiets pakken, ben je met ca. 30 minuten fietsen in Groningen.
INDELING
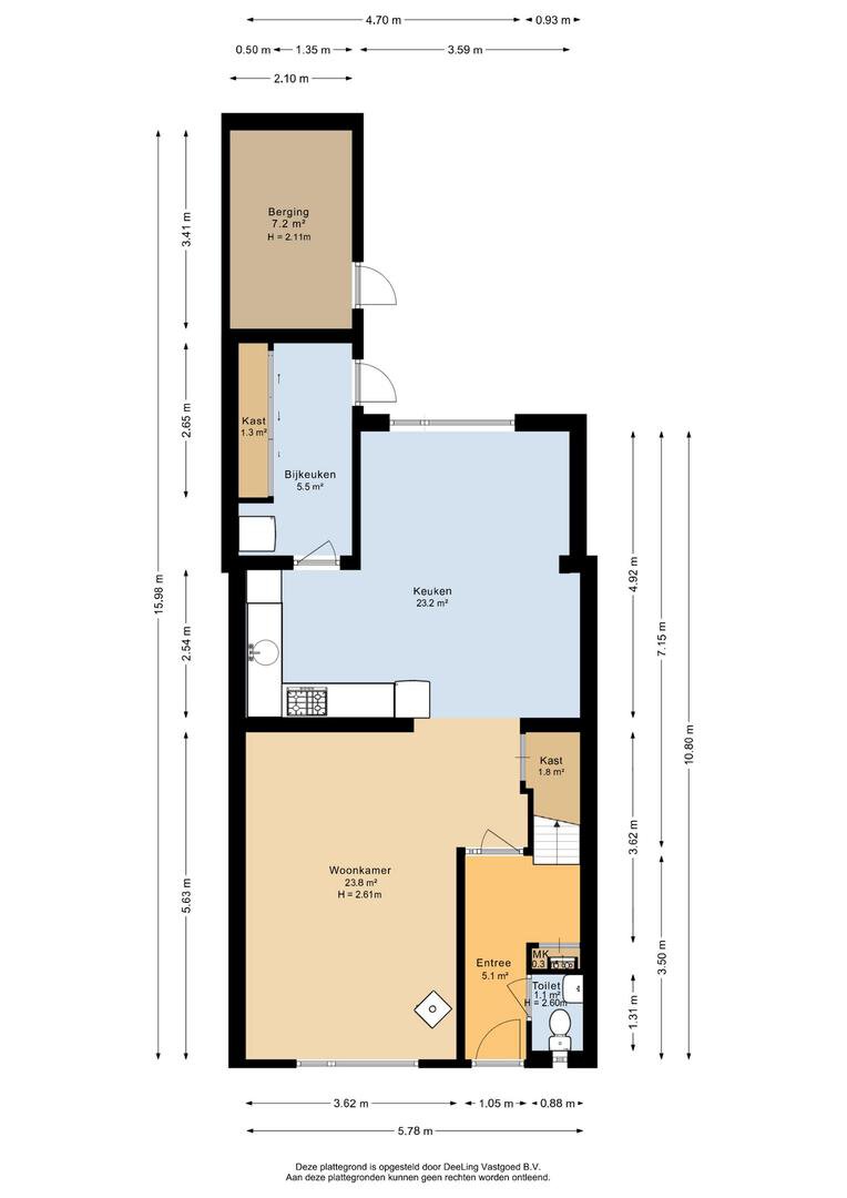
Begane grond: entree/hal, toiletruimte, lichte woonkamer van ca. 24 m² met een pelletkachel en aansluitend de ruime open woonkeuken van ca. 23 m² voorzien van een keukenopstelling met inbouwapparatuur uit 2019 (5-pits gaskookplaat, afzuigkap, oven en vaatwasser). Vanuit hier bereik je de bijkeuken met vaste kastenwand, toegang naar de bergzolder en een deur naar de achtertuin.
Eerste verdieping: overloop met was-/cv-ruimte, drie slaapkamers van ca. 13, 12 en 7 m², badkamer met ligbad/douche, wastafelmeubel, tweede toilet en wasmachineaansluiting.
Tweede verdieping: overloop met toegang tot de twee slaapkamers van ca. 11 en 3 m².
BUITENRUIMTE
De woning heeft een verzorgde voortuin. De onderhoudsvrije achtertuin heeft een houten berging en achterom. Dankzij de zonligging heb je gedurende dag ook de mogelijkheid om een plekje in de schaduw op te zoeken.
GOED OM TE WETEN
- de ideale gezinswoning met maar liefst vijf slaapkamers;
- uitgebouwd aan de achterzijde waardoor er een ruime woonkeuken is ontstaan;
- meer ruimte en slaapkamers door de dakopbouw (2024);
- voorzien van kunststof kozijnen met HR++ beglazing;
- buitenzijde voorzien van kunststof gevelbekleding (Keralit);
- goed geïsoleerd en voorzien van energielabel A;
- cv-ketel Intergas 2018 (huur);
- pelletkachel in de woonkamer blijft achter;
- aanvaarding in overleg.
De woning is gelegen in het gezellige dorp Bedum, met het Geert Reinderspark en het Bedumer bos om de hoek. Alle voorzieningen zoals winkels, scholen, eetgelegenheden en sportfaciliteiten vind je in het dorp. De stad Groningen is gelegen op ca. 15 minuten rijden en daarnaast beschikt het dorp over diverse bushaltes en het treinstation met de treinverbinding naar de stad. Mocht je de fiets pakken, ben je met ca. 30 minuten fietsen in Groningen.
INDELING
Begane grond: entree/hal, toiletruimte, lichte woonkamer van ca. 24 m² met een pelletkachel en aansluitend de ruime open woonkeuken van ca. 23 m² voorzien van een keukenopstelling met inbouwapparatuur uit 2019 (5-pits gaskookplaat, afzuigkap, oven en vaatwasser). Vanuit hier bereik je de bijkeuken met vaste kastenwand, toegang naar de bergzolder en een deur naar de achtertuin.
Eerste verdieping: overloop met was-/cv-ruimte, drie slaapkamers van ca. 13, 12 en 7 m², badkamer met ligbad/douche, wastafelmeubel, tweede toilet en wasmachineaansluiting.
Tweede verdieping: overloop met toegang tot de twee slaapkamers van ca. 11 en 3 m².
BUITENRUIMTE
De woning heeft een verzorgde voortuin. De onderhoudsvrije achtertuin heeft een houten berging en achterom. Dankzij de zonligging heb je gedurende dag ook de mogelijkheid om een plekje in de schaduw op te zoeken.
GOED OM TE WETEN
- de ideale gezinswoning met maar liefst vijf slaapkamers;
- uitgebouwd aan de achterzijde waardoor er een ruime woonkeuken is ontstaan;
- meer ruimte en slaapkamers door de dakopbouw (2024);
- voorzien van kunststof kozijnen met HR++ beglazing;
- buitenzijde voorzien van kunststof gevelbekleding (Keralit);
- goed geïsoleerd en voorzien van energielabel A;
- cv-ketel Intergas 2018 (huur);
- pelletkachel in de woonkamer blijft achter;
- aanvaarding in overleg.
Over dit object
Overdracht
| Status | verkocht |
|---|---|
| Prijs | € 295.000 k.k. |
Bouw
| Bouwjaar | 1977 |
|---|---|
| Bouwvorm | bestaande bouw |
| Type Object | Woonhuis |
| Hoofdfunctie | Woonruimte |
Indeling
| Woonoppervlakte | 129 m² |
|---|---|
| Perceeloppervlakte | 152 m² |
| Woning Inhoud | 453 m³ |
| Kamers | 6 (5 slaapkamers) |
Energie
| Energielabel | A |
|---|
























































































