
Botanicuslaan 43
Haren gn
contact met
Riant Makelaars Groningen
| 050 850 33 56 | |
| groningen@riantmakelaars.nl | |
| 050 850 33 56 | |
| Hereweg 29, 9725 AA Groningen |
Op bijzonder fraaie woonlocatie aan een van de meest in het oogspringende groene lanen die Haren bezit staat deze klassieke uitgebouwde rietgedekte jaren '30 villa. Naast het huis is een garage – berging gelegen en de diepe achtertuin op het zuid – westen.
De gezellige Botanicuslaan is gelegen op loopafstand van de dorpskern van Haren, een rustige en zeer kindvriendelijke woonomgeving waarbij uitvalswegen en station op geringe afstand aanwezig zijn.
INDELING:
Begane grond: entree/tochtportaal, hal, toiletruimte, uitgebouwde woonkamer (ca. 53 m2) met openslaande deuren naar de diepe en zonnige achtertuin, gesloten keuken met nette keukenopstelling, kelder, bijkeuken;
eerste verdieping:
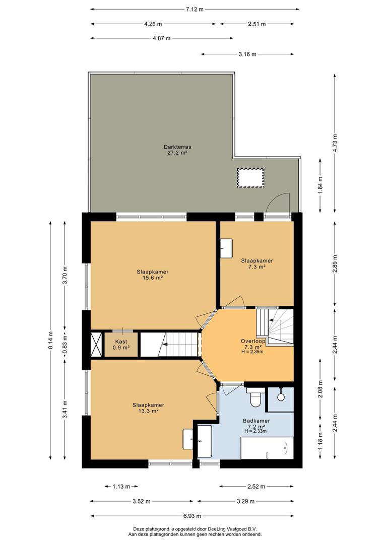
Overloop, drie slaapkamers, badkamer voorzien van douche, toilet, ligbad en vaste wastafel, voldoende bergruimte en een riant dakterras;
tweede verdieping:
Overloop, twee slaapkamers, tweede badkamer voorzien van douche en vaste wastafel, bergruimte.
TUIN en OMGEVING
De besloten, groene achtertuin is gelegen op het zuid-westen hier heb je altijd wel een plekje om van de zon te genieten. Door de beschutte achtertuin kun je ook in alle privacy lekker relaxen. In de tuin staat een garage/schuur met bergzolder.
De woning ligt in een rustige, kindvriendelijke buurt met diverse voorzieningen op loop- en fietsafstand. Scholen, winkels en het openbaar vervoer zijn gemakkelijk bereikbaar.
GOED OM TE WETEN
- sfeervol wonen in deze leuke, karakteristieke woning;
- heerlijk zonnige achtertuin;
- tuin met veel zorg aangelegd en onderhouden
- gelegen in een prachtige straat in Haren;
- mooie authentieke elementen zijn nog terug te vinden;
- perceeloppervlakte: 607 m2
- woonoppervlakte: 183 m2
- verwarming middels centrale verwarming (er zijn twee ketels);
- rustige en groene woonomgeving.
- aanvaarding in overleg (kan snel)
Ben je op zoek naar een karaktervolle woning in een groene omgeving met alle voorzieningen binnen handbereik? Dan is Botanicuslaan 43 in Haren zeker een bezichtiging waard. Neem contact op met Riant Makelaars Groningen voor meer informatie of een afspraak.
De gezellige Botanicuslaan is gelegen op loopafstand van de dorpskern van Haren, een rustige en zeer kindvriendelijke woonomgeving waarbij uitvalswegen en station op geringe afstand aanwezig zijn.
INDELING:
Begane grond: entree/tochtportaal, hal, toiletruimte, uitgebouwde woonkamer (ca. 53 m2) met openslaande deuren naar de diepe en zonnige achtertuin, gesloten keuken met nette keukenopstelling, kelder, bijkeuken;
eerste verdieping:
Overloop, drie slaapkamers, badkamer voorzien van douche, toilet, ligbad en vaste wastafel, voldoende bergruimte en een riant dakterras;
tweede verdieping:
Overloop, twee slaapkamers, tweede badkamer voorzien van douche en vaste wastafel, bergruimte.
TUIN en OMGEVING
De besloten, groene achtertuin is gelegen op het zuid-westen hier heb je altijd wel een plekje om van de zon te genieten. Door de beschutte achtertuin kun je ook in alle privacy lekker relaxen. In de tuin staat een garage/schuur met bergzolder.
De woning ligt in een rustige, kindvriendelijke buurt met diverse voorzieningen op loop- en fietsafstand. Scholen, winkels en het openbaar vervoer zijn gemakkelijk bereikbaar.
GOED OM TE WETEN
- sfeervol wonen in deze leuke, karakteristieke woning;
- heerlijk zonnige achtertuin;
- tuin met veel zorg aangelegd en onderhouden
- gelegen in een prachtige straat in Haren;
- mooie authentieke elementen zijn nog terug te vinden;
- perceeloppervlakte: 607 m2
- woonoppervlakte: 183 m2
- verwarming middels centrale verwarming (er zijn twee ketels);
- rustige en groene woonomgeving.
- aanvaarding in overleg (kan snel)
Ben je op zoek naar een karaktervolle woning in een groene omgeving met alle voorzieningen binnen handbereik? Dan is Botanicuslaan 43 in Haren zeker een bezichtiging waard. Neem contact op met Riant Makelaars Groningen voor meer informatie of een afspraak.
Over dit object
Overdracht
| Status | verkocht |
|---|---|
| Prijs | € 775.000 k.k. |
Bouw
| Bouwjaar | 1935 |
|---|---|
| Bouwvorm | bestaande bouw |
| Type Object | Woonhuis |
| Hoofdfunctie | Woonruimte |
Indeling
| Woonoppervlakte | 183 m² |
|---|---|
| Perceeloppervlakte | 607 m² |
| Woning Inhoud | 683 m³ |
| Kamers | 6 (5 slaapkamers) |
Energie
| Energielabel | D |
|---|


















































































