
Annastraat 24
Groningen
contact met
Riant Makelaars Groningen
| 050 850 33 56 | |
| groningen@riantmakelaars.nl | |
| Hereweg 29, 9725 AA Groningen |
Een unieke kans! Deze netjes onderhouden bovenwoning met twee zelfstandige wooneenheden is zeer geschikt voor dubbele bewoning (mantelzorg, LAT) of voor ouders met studerende kinderen. Daarnaast is er eenvoudig een doorgang te maken van de beneden- naar de bovenwoning, waardoor het tot één prachtige en ruime woning gemaakt kan worden.
Deze bijzondere woning is gelegen in een leuke straat in de bruisende Oosterpoortwijk met het stadscentrum en alle voorzieningen op loopafstand. Mocht je met de auto op pad willen, bereik je binnen enkele minuten de ringweg van Groningen. Als je liever met het openbaar vervoer gaat, kun je zowel lopend naar het centraal station als station Europapark. Daarnaast loop je zo naar het nieuwe Zuiderplantsoen.
INDELING BENEDENWONING
Begane grond: entree/hal, royale woonkamer van 34 m² met een fraaie houten vloer. Aansluitend een open keuken met een eenvoudige keukenopstelling met inbouwapparatuur, de cv-opstelling en een schuifpui naar een knusse stadstuin van 14 m². In het verlengde van de keuken bevindt zich de badkamer voorzien van ligbad/douche, wastafel en toilet; tevens zit hier een aansluiting voor de wasmachine. In de hal is bergruimte gecreëerd.
INDELING BOVENWONING
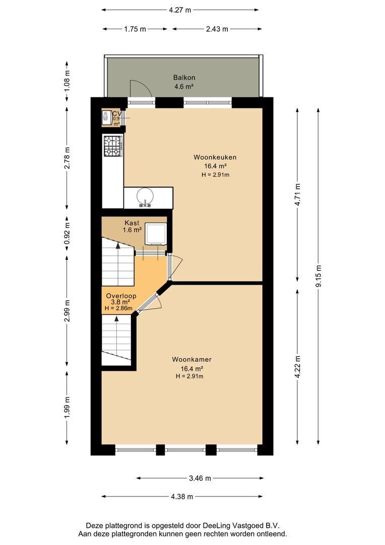
Eerste verdieping: overloop met een vaste kast voorzien van een wasmachine aansluiting en toegang tot de lichte woonkamer van ca. 16 m² aan de voorzijde, welke eveneens als slaapkamer in te richten is. De woonkeuken van ca. 17 m² beschikt over een open keuken voorzien van een keukenopstelling met inbouwapparatuur en deur naar het balkon. Hier kun je genieten van de laatste zonnestralen van de dag.
Tweede verdieping: overloop met vaste kast, slaapkamer van ca. 9 m² en een badkamer met douche, wastafel en toilet. Daarnaast is er bergruimte op de overloop.
GOED OM TE WETE
- mogelijkheid tot dubbele bewoning;
- optie om één prachtig woonhuis te creëren;
- eerste verdieping kan ingedeeld worden met twee ruime slaapkamers;
- sfeervol en karakteristiek wonen;
- dubbele beglazing;
- beide wooneenheden beschikken over een eigen cv-ketel;
- pand is niet gesplitst;
- niet-zelfbewoningsclausule is van toepassing;
- aanvaarding in overleg.
Deze bijzondere woning is gelegen in een leuke straat in de bruisende Oosterpoortwijk met het stadscentrum en alle voorzieningen op loopafstand. Mocht je met de auto op pad willen, bereik je binnen enkele minuten de ringweg van Groningen. Als je liever met het openbaar vervoer gaat, kun je zowel lopend naar het centraal station als station Europapark. Daarnaast loop je zo naar het nieuwe Zuiderplantsoen.
INDELING BENEDENWONING
Begane grond: entree/hal, royale woonkamer van 34 m² met een fraaie houten vloer. Aansluitend een open keuken met een eenvoudige keukenopstelling met inbouwapparatuur, de cv-opstelling en een schuifpui naar een knusse stadstuin van 14 m². In het verlengde van de keuken bevindt zich de badkamer voorzien van ligbad/douche, wastafel en toilet; tevens zit hier een aansluiting voor de wasmachine. In de hal is bergruimte gecreëerd.
INDELING BOVENWONING
Eerste verdieping: overloop met een vaste kast voorzien van een wasmachine aansluiting en toegang tot de lichte woonkamer van ca. 16 m² aan de voorzijde, welke eveneens als slaapkamer in te richten is. De woonkeuken van ca. 17 m² beschikt over een open keuken voorzien van een keukenopstelling met inbouwapparatuur en deur naar het balkon. Hier kun je genieten van de laatste zonnestralen van de dag.
Tweede verdieping: overloop met vaste kast, slaapkamer van ca. 9 m² en een badkamer met douche, wastafel en toilet. Daarnaast is er bergruimte op de overloop.
GOED OM TE WETE
- mogelijkheid tot dubbele bewoning;
- optie om één prachtig woonhuis te creëren;
- eerste verdieping kan ingedeeld worden met twee ruime slaapkamers;
- sfeervol en karakteristiek wonen;
- dubbele beglazing;
- beide wooneenheden beschikken over een eigen cv-ketel;
- pand is niet gesplitst;
- niet-zelfbewoningsclausule is van toepassing;
- aanvaarding in overleg.
Over dit object
Overdracht
| Status | beschikbaar |
|---|---|
| Prijs | € 395.000 k.k. |
Bouw
| Bouwjaar | 1898 |
|---|---|
| Bouwvorm | bestaande bouw |
| Type Object | Woonhuis |
| Hoofdfunctie | Woonruimte |
Indeling
| Woonoppervlakte | 105 m² |
|---|---|
| Perceeloppervlakte | 76 m² |
| Woning Inhoud | 401 m³ |
| Kamers | 4 (1 slaapkamers) |
Energie
| Energielabel | F |
|---|


























































































