
Anna Blamanstraat 24
Groningen
contact met
Riant Makelaars Groningen
| 050 850 33 56 | |
| groningen@riantmakelaars.nl | |
| 050 850 33 56 | |
| Hereweg 29, 9725 AA Groningen |
Als je op zoek bent naar een ruime woning met daarbij een zonnige, riante achtertuin gelegen op het zuidwesten en aan het water dan zit je hier goed! Deze 2-onder-1-kapwoning is maar liefst ca. 152 m² en biedt met vier slaapkamers veel ruimte. Ideaal voor een gezin! Daarnaast is de woning volledig geïsoleerd, voorzien van nieuwe kunststof kozijnen met HR++ glas en beschikt het over een energielabel A. Kortom: ruim en energiezuinig wonen! Deze woning kun je ook nog eens naar smaak inrichten, zodat je het helemaal je eigen kunt maken. Achter op het perceel staat nog een dubbele berging met een carport.
De woning is gelegen in de rustige en kindvriendelijke woonwijk De Held, op steenworp afstand van de natuur van Het Roege Bos. Heerlijk om te wandelen! Alle voorzieningen vind je in de nabijgelegen wijken, waaronder winkels, scholen, sportfaciliteiten en eetgelegenheden. Het stadscentrum van Groningen is goed per auto of openbaar vervoer te bereiken. Mocht je liever de fiets pakken, ben je met 15 minuten in de binnenstad.
INDELING
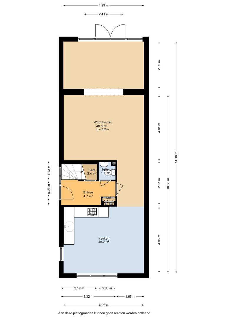
Begane grond: entree/hal met trapkast, toiletruimte, ruime en uitgebouwde woonkamer van ca. 40 m² met openslaande deuren naar de zonnige achtertuin. De woonkeuken aan de voorzijde is ca. 20 m² en beschikt over een keukenopstelling met gaskookplaat, afzuigkap, koelkast, vriezer en vaatwasser.
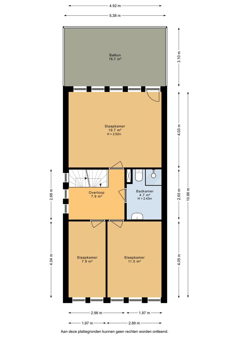
Eerste verdieping: overloop, slaapkamer van ca. 20 m² met toegang tot het ruime balkon van ca. 17 m² op het zuidwesten, slaapkamer van ca. 12 m² en een slaapkamer van ca. 8 m². De badkamer van 5 m² heeft een douche, wastafel en tweede toilet.
Tweede verdieping: overloop met bergruimte en cv-opstelling, slaapkamer van ca. 12 m² met bergruimte.
BUITENRUIMTE
De woning heeft een ruime achtertuin op het zuidwesten, waardoor je tot laat op de dag nog in de zon kunt zitten. Achtertuin de tuin bevindt zich een berging van ca. 7 m² en een berging van ca. 4 m² met aansluitend een carport. Hierdoor kun je de auto altijd overdekt neerzetten.
GOED OM TE WETEN
- ruime eengezinswoning met zonnige tuin;
- wonen aan het water;
- nog naar smaak in te richten;
- ruim dakterras op het westen;
- twee bergingen en een carport in de achtertuin;
- oprit met plek voor twee auto's;
- begane grond voorzien van kunststof kozijnen in 2020 met HR++ glas;
- eerste verdieping voorzien van kunststof kozijnen in 2022 met HR++ glas;
- mechanische ventilatie;
- cv-ketel Nefit (bouwjaar 2009);
- aktepassering dient plaats te vinden via Bosscher Janssens notarissen Groningen;
- niet zelfbewoningsclausule en ouderdomsclausule zijn van toepassing;
- aanvaarding in overleg, kan snel.
De woning is gelegen in de rustige en kindvriendelijke woonwijk De Held, op steenworp afstand van de natuur van Het Roege Bos. Heerlijk om te wandelen! Alle voorzieningen vind je in de nabijgelegen wijken, waaronder winkels, scholen, sportfaciliteiten en eetgelegenheden. Het stadscentrum van Groningen is goed per auto of openbaar vervoer te bereiken. Mocht je liever de fiets pakken, ben je met 15 minuten in de binnenstad.
INDELING
Begane grond: entree/hal met trapkast, toiletruimte, ruime en uitgebouwde woonkamer van ca. 40 m² met openslaande deuren naar de zonnige achtertuin. De woonkeuken aan de voorzijde is ca. 20 m² en beschikt over een keukenopstelling met gaskookplaat, afzuigkap, koelkast, vriezer en vaatwasser.
Eerste verdieping: overloop, slaapkamer van ca. 20 m² met toegang tot het ruime balkon van ca. 17 m² op het zuidwesten, slaapkamer van ca. 12 m² en een slaapkamer van ca. 8 m². De badkamer van 5 m² heeft een douche, wastafel en tweede toilet.
Tweede verdieping: overloop met bergruimte en cv-opstelling, slaapkamer van ca. 12 m² met bergruimte.
BUITENRUIMTE
De woning heeft een ruime achtertuin op het zuidwesten, waardoor je tot laat op de dag nog in de zon kunt zitten. Achtertuin de tuin bevindt zich een berging van ca. 7 m² en een berging van ca. 4 m² met aansluitend een carport. Hierdoor kun je de auto altijd overdekt neerzetten.
GOED OM TE WETEN
- ruime eengezinswoning met zonnige tuin;
- wonen aan het water;
- nog naar smaak in te richten;
- ruim dakterras op het westen;
- twee bergingen en een carport in de achtertuin;
- oprit met plek voor twee auto's;
- begane grond voorzien van kunststof kozijnen in 2020 met HR++ glas;
- eerste verdieping voorzien van kunststof kozijnen in 2022 met HR++ glas;
- mechanische ventilatie;
- cv-ketel Nefit (bouwjaar 2009);
- aktepassering dient plaats te vinden via Bosscher Janssens notarissen Groningen;
- niet zelfbewoningsclausule en ouderdomsclausule zijn van toepassing;
- aanvaarding in overleg, kan snel.
Over dit object
Overdracht
| Status | verkocht |
|---|---|
| Prijs | € 495.000 k.k. |
Bouw
| Bouwjaar | 1996 |
|---|---|
| Bouwvorm | bestaande bouw |
| Type Object | Woonhuis |
| Hoofdfunctie | Woonruimte |
Indeling
| Woonoppervlakte | 152 m² |
|---|---|
| Perceeloppervlakte | 247 m² |
| Woning Inhoud | 539 m³ |
| Kamers | 5 (4 slaapkamers) |
Energie
| Energielabel | A |
|---|










































































