
Zwaluw 4
Bedum
contact met
Riant Makelaars Bedum
| 050 301 3775 | |
| bedum@riantmakelaars.nl | |
| 050 8503356 | |
| Molenweg 22, 9781 GM Bedum |
Ruime en moderne 2-onder-1-kapwoning met drie slaapkamers, een ruime zolder met mogelijkheid voor een vierde slaapkamer en een vrijstaande stenen garage. De achtertuin is zeer netjes aangelegd en hier kun je met een vakantiegevoel de dag doorbrengen. De ligging op het zuidwesten is optimaal, waardoor je tot laat op de dag in de zon kunt zitten. Heerlijk om buiten te dineren of de barbecue aan te steken. De woning is volledig geïsoleerd en er is een mogelijkheid om nog verder te verduurzamen.
De woning is gelegen in de jonge en populaire woonwijk Ter Laan in het gezellige dorp Bedum. Alle voorzieningen zoals winkels, scholen, eetgelegenheden en sportfaciliteiten vind je in het dorp. De stad Groningen is gelegen op ca. 15 minuten rijden en daarnaast vind je om de hoek een bushalte en het treinstation met de treinverbinding naar de stad. Mocht je de fiets pakken, ben je met ca. 30 minuten fietsen in Groningen.
INDELING
Begane grond: entree/hal, toiletruimte, lichte woonkamer met aansluitend een eetkamer (ca. 31 m²), open keuken van ca. 6 m² met een nette keukenopstelling met 5-pits gaskookplaat, afzuigkap, combimagnetron, koelkast en vaatwasser. Vanuit de eetkamer loop je door middel van openslaande deuren zo de zonnige tuin in met overkapping.
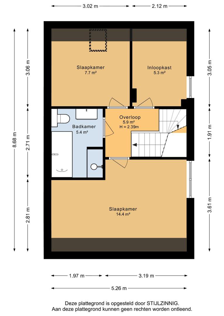
Eerste verdieping: overloop, drie slaapkamers van ca. 14, 8 en 5 m², moderne badkamer van ca. 5 m² met ligbad/whirlpool, inloopdouche, wastafelmeubel en tweede toilet.
Tweede verdieping: ruime zolder van ca. 19 m² met dakraam, witgoedaansluiting en cv-opstelling. Hier is eenvoudig een vierde slaapkamer te maken.
BUITENRUIMTE
De achtertuin is maar liefst ca. 128 m² en is gelegen op het zonnige zuidwesten. Aan de woning is een overkapping gerealiseerd, waardoor je met alle weersomstandigheden toch lekker in de tuin kunt zitten. De garage van ca. 16 m² is bereikbaar vanuit de tuin en tevens heeft de tuin een achterom. De wijk is ruim opgezet, waardoor je veel privacy hebt in de tuin.
GOED OM TE WETEN
- de ideale gezinswoning met fraaie tuin;
- vrijstaande en geïsoleerde stenen garage (gedeeltelijk geïsoleerd);
- zolderkamer kan als slaapkamer worden ingericht;
- badkamer is vernieuwd in 2021;
- energielabel B, woning kan nog verder verduurzaamd worden;
- voorzien van houten kozijnen en HR+ beglazing;
- aanvaarding in overleg.
De woning is gelegen in de jonge en populaire woonwijk Ter Laan in het gezellige dorp Bedum. Alle voorzieningen zoals winkels, scholen, eetgelegenheden en sportfaciliteiten vind je in het dorp. De stad Groningen is gelegen op ca. 15 minuten rijden en daarnaast vind je om de hoek een bushalte en het treinstation met de treinverbinding naar de stad. Mocht je de fiets pakken, ben je met ca. 30 minuten fietsen in Groningen.
INDELING
Begane grond: entree/hal, toiletruimte, lichte woonkamer met aansluitend een eetkamer (ca. 31 m²), open keuken van ca. 6 m² met een nette keukenopstelling met 5-pits gaskookplaat, afzuigkap, combimagnetron, koelkast en vaatwasser. Vanuit de eetkamer loop je door middel van openslaande deuren zo de zonnige tuin in met overkapping.
Eerste verdieping: overloop, drie slaapkamers van ca. 14, 8 en 5 m², moderne badkamer van ca. 5 m² met ligbad/whirlpool, inloopdouche, wastafelmeubel en tweede toilet.
Tweede verdieping: ruime zolder van ca. 19 m² met dakraam, witgoedaansluiting en cv-opstelling. Hier is eenvoudig een vierde slaapkamer te maken.
BUITENRUIMTE
De achtertuin is maar liefst ca. 128 m² en is gelegen op het zonnige zuidwesten. Aan de woning is een overkapping gerealiseerd, waardoor je met alle weersomstandigheden toch lekker in de tuin kunt zitten. De garage van ca. 16 m² is bereikbaar vanuit de tuin en tevens heeft de tuin een achterom. De wijk is ruim opgezet, waardoor je veel privacy hebt in de tuin.
GOED OM TE WETEN
- de ideale gezinswoning met fraaie tuin;
- vrijstaande en geïsoleerde stenen garage (gedeeltelijk geïsoleerd);
- zolderkamer kan als slaapkamer worden ingericht;
- badkamer is vernieuwd in 2021;
- energielabel B, woning kan nog verder verduurzaamd worden;
- voorzien van houten kozijnen en HR+ beglazing;
- aanvaarding in overleg.
Over dit object
Overdracht
| Status | verkocht |
|---|---|
| Prijs | € 369.000 k.k. |
Bouw
| Bouwjaar | 1993 |
|---|---|
| Bouwvorm | bestaande bouw |
| Type Object | Woonhuis |
| Hoofdfunctie | Woonruimte |
Indeling
| Woonoppervlakte | 105 m² |
|---|---|
| Perceeloppervlakte | 244 m² |
| Woning Inhoud | 372 m³ |
| Kamers | 5 (3 slaapkamers) |
Energie
| Energielabel | B |
|---|
































































































