
Vijf Akkers 26
Tolbert
contact met
Bruining en De Reus
| 0594 55 43 55 | |
| leek@bruiningdereus.nl | |
| 06 8281 0106 | |
| Boveneind 20, 9351 AP Leek | |
| bruiningdereus.nl |
Uitstekend onderhouden woonhuis!
Goed onderhouden gezinswoning | 4 slaapkamers | ca. 122 m² woonoppervlakte | garage
Aan rustige straat gelegen, goed onderhouden hoekwoning met onder andere een ruime woonkamer, vernieuwede keuken en badkamer, garage en 4 ruime slaapkamers. De woning is gelegen in een kindvriendelijke woonwijk.
De ligging van de woning is uitstekend, op fietsafstand van het centrum van Leek en Tolbert en nabij landgoed "Nienoord". Zowel de stad Groningen als Drachten zijn binnen 15 autominuten bereikbaar. Daarnaast bieden Tolbert en Leek vele voorzieningen.
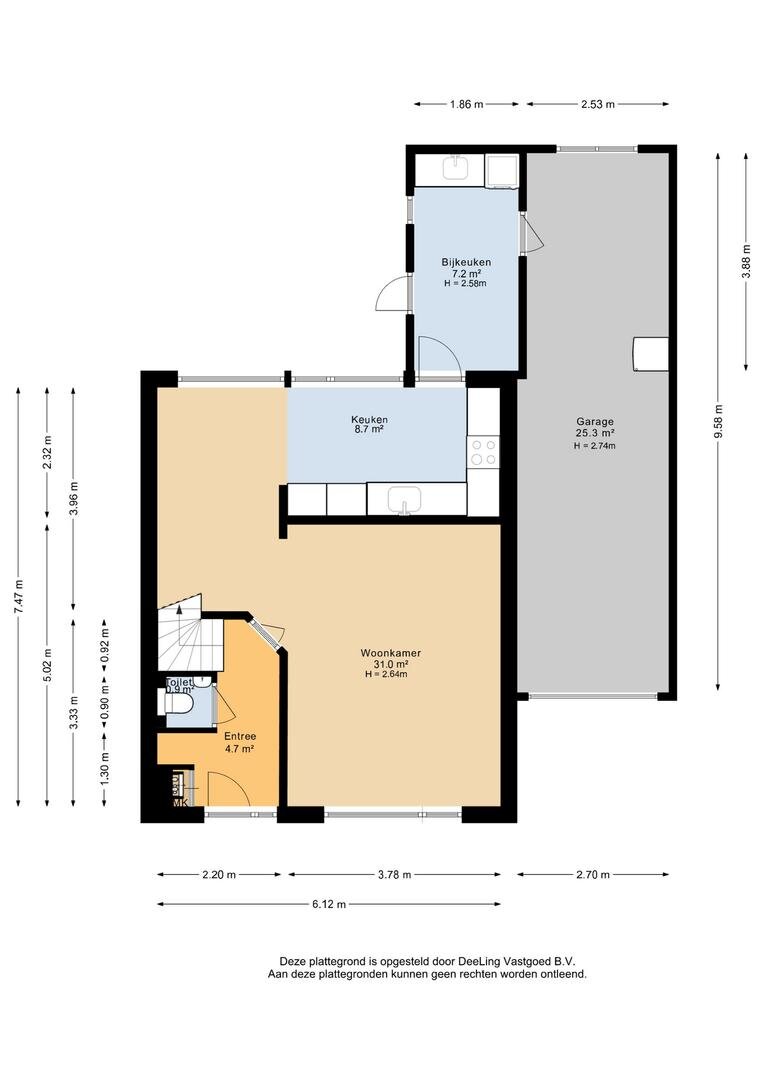
Indeling begane grond: entree/hal, toiletruimte, meterkast, sfeervolle woonkamer voorzien met een half-open woonkeuken (2014) voorzien van diverse inbouwapparatuur (de woonkamer en keuken zijn samen ca. 39 m²!), handige bijkeuken/tweede hal met toegang tot de garage en de tuin;
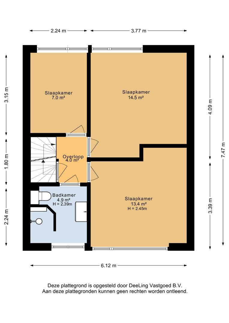
1e verdieping: overloop, 3 slaapkamers (ca. 15 m², 13 m² en 7 m²), moderne badkamer voorzien van douche, toilet en vaste wastafel;
2e verdieping: overloop met bergruimte, ruime 4e slaapkamer.
Bijgebouwen:
- aangebouwde garage;
- berging/schuur.
Bijzonderheden:
- woonoppervlakte ca. 122 m²;
- perceeloppervlakte ca. 224 m²;
- deze woning is geheel voorzien van kunststof kozijnen;
- verwarming middels cv, deels middels vloerverwarming;
- gelegen in een kindvriendelijke buurt nabij speeltuin en verschillende scholen;
- de woning is voorzien van dak-, muur- en vloerisolatie.
- gelegen in een kindvriendelijke buurt nabij verschillende scholen;
- 4 ruime slaapkamers, dus uitermate geschikt voor een gezin of starters;
Kortom een woning waar je zo in kunt!
Aanvaarding: in overleg
Tip: bekijk ook de video van deze woning!
Interesse in deze woning? Neem geheel vrijblijvend contact op met Bruining en De Reus Makelaars om deze woning te bezichtigen!
Goed onderhouden gezinswoning | 4 slaapkamers | ca. 122 m² woonoppervlakte | garage
Aan rustige straat gelegen, goed onderhouden hoekwoning met onder andere een ruime woonkamer, vernieuwede keuken en badkamer, garage en 4 ruime slaapkamers. De woning is gelegen in een kindvriendelijke woonwijk.
De ligging van de woning is uitstekend, op fietsafstand van het centrum van Leek en Tolbert en nabij landgoed "Nienoord". Zowel de stad Groningen als Drachten zijn binnen 15 autominuten bereikbaar. Daarnaast bieden Tolbert en Leek vele voorzieningen.
Indeling begane grond: entree/hal, toiletruimte, meterkast, sfeervolle woonkamer voorzien met een half-open woonkeuken (2014) voorzien van diverse inbouwapparatuur (de woonkamer en keuken zijn samen ca. 39 m²!), handige bijkeuken/tweede hal met toegang tot de garage en de tuin;
1e verdieping: overloop, 3 slaapkamers (ca. 15 m², 13 m² en 7 m²), moderne badkamer voorzien van douche, toilet en vaste wastafel;
2e verdieping: overloop met bergruimte, ruime 4e slaapkamer.
Bijgebouwen:
- aangebouwde garage;
- berging/schuur.
Bijzonderheden:
- woonoppervlakte ca. 122 m²;
- perceeloppervlakte ca. 224 m²;
- deze woning is geheel voorzien van kunststof kozijnen;
- verwarming middels cv, deels middels vloerverwarming;
- gelegen in een kindvriendelijke buurt nabij speeltuin en verschillende scholen;
- de woning is voorzien van dak-, muur- en vloerisolatie.
- gelegen in een kindvriendelijke buurt nabij verschillende scholen;
- 4 ruime slaapkamers, dus uitermate geschikt voor een gezin of starters;
Kortom een woning waar je zo in kunt!
Aanvaarding: in overleg
Tip: bekijk ook de video van deze woning!
Interesse in deze woning? Neem geheel vrijblijvend contact op met Bruining en De Reus Makelaars om deze woning te bezichtigen!
Over dit object
Overdracht
| Status | verkocht |
|---|---|
| Prijs | € 345.000 k.k. |
Bouw
| Bouwjaar | 1975 |
|---|---|
| Bouwvorm | bestaande bouw |
| Type Object | Woonhuis |
| Hoofdfunctie | Woonruimte |
Indeling
| Woonoppervlakte | 122 m² |
|---|---|
| Perceeloppervlakte | 224 m² |
| Woning Inhoud | 518 m³ |
| Kamers | 5 (4 slaapkamers) |
Energie
| Energielabel | C |
|---|
























































































