
Turkooisstraat 21
Groningen
contact met
Riant Makelaars Groningen
| 050 850 33 56 | |
| groningen@riantmakelaars.nl | |
| Hereweg 29, 9725 AA Groningen |
Ruime woning met vier slaapkamers, een inpandige garage en een diepe achtertuin waar je zowel in de zon als schaduw kunt zitten. De woning is netjes onderhouden en het dak is in 2022 vernieuwd. Daarnaast is de woning met een energielabel B goed geïsoleerd en zijn er 12 zonnepanelen geplaatst in 2022.
De woning is gelegen in een rustige straat in Vinkhuizen Noord, met alle voorzieningen in de buurt en de ringweg op enkele minuten autorijden. Met ca. 15 minuten fietsen bereik je de binnenstad van Groningen en om de hoek is een bushalte aanwezig met een goede busverbinding richting het centrum.
INDELING
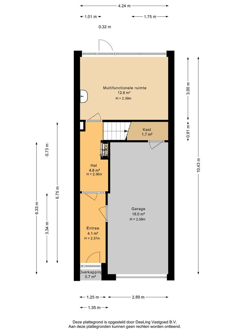
Begane grond: entree/hal met toegang tot de ruime garage van ca. 18 m², hal met trapopgang, (slaap)kamer van ca. 13 m² met wastafel en deur naar de achtertuin. Deze ruimte is bijvoorbeeld als werkplek, kantoor of salon in te richten.
Eerste verdieping: overloop, toiletruimte, lichte woonkamer van ca. 22 m². De woonkeuken is ca. 13 m² en heeft een eenvoudige keukenopstelling met 4-pits gasfornuis, afzuigkap, koelkast en eveneens een wasmachineaansluiting.
Tweede verdieping: overloop met kast voorzien van cv-opstelling, drie slaapkamers van ca. 13, 9 en 7 m², badkamer met ligbad, wastafel en tweede toilet.
BUITENRUIMTE
De achtertuin is gelegen op het noordoosten en dankzij de diepte van de tuin, kun je gedurende de dag zowel in de zon als schaduw zitten. Het is mogelijk om vroeg op de dag al te genieten van de zon. Vanuit de tuin is zicht op groen en dit biedt eveneens extra privacy. Er is een achterom en het is mogelijk om de tuin nog verder in te richten.
GOED OM TE WETEN
- nette tussenwoning om verder naar eigen smaakt te maken;
- ruime inpandige garage;
- achtertuin met achterom en privacy;
- mogelijkheid om een kantoor aan huis te hebben;
- voorzien van 12 zonnepanelen (2022);
- meterkast vernieuwd;
- energielabel B;
- cv-ketel Intergas 2021 (eigendom);
- er is geen vragenlijst en lijst van zaken aanwezig;
- aanvaarding in overleg, kan snel.
De woning is gelegen in een rustige straat in Vinkhuizen Noord, met alle voorzieningen in de buurt en de ringweg op enkele minuten autorijden. Met ca. 15 minuten fietsen bereik je de binnenstad van Groningen en om de hoek is een bushalte aanwezig met een goede busverbinding richting het centrum.
INDELING
Begane grond: entree/hal met toegang tot de ruime garage van ca. 18 m², hal met trapopgang, (slaap)kamer van ca. 13 m² met wastafel en deur naar de achtertuin. Deze ruimte is bijvoorbeeld als werkplek, kantoor of salon in te richten.
Eerste verdieping: overloop, toiletruimte, lichte woonkamer van ca. 22 m². De woonkeuken is ca. 13 m² en heeft een eenvoudige keukenopstelling met 4-pits gasfornuis, afzuigkap, koelkast en eveneens een wasmachineaansluiting.
Tweede verdieping: overloop met kast voorzien van cv-opstelling, drie slaapkamers van ca. 13, 9 en 7 m², badkamer met ligbad, wastafel en tweede toilet.
BUITENRUIMTE
De achtertuin is gelegen op het noordoosten en dankzij de diepte van de tuin, kun je gedurende de dag zowel in de zon als schaduw zitten. Het is mogelijk om vroeg op de dag al te genieten van de zon. Vanuit de tuin is zicht op groen en dit biedt eveneens extra privacy. Er is een achterom en het is mogelijk om de tuin nog verder in te richten.
GOED OM TE WETEN
- nette tussenwoning om verder naar eigen smaakt te maken;
- ruime inpandige garage;
- achtertuin met achterom en privacy;
- mogelijkheid om een kantoor aan huis te hebben;
- voorzien van 12 zonnepanelen (2022);
- meterkast vernieuwd;
- energielabel B;
- cv-ketel Intergas 2021 (eigendom);
- er is geen vragenlijst en lijst van zaken aanwezig;
- aanvaarding in overleg, kan snel.
Over dit object
Overdracht
| Status | verkocht |
|---|---|
| Prijs | € 299.000 k.k. |
Bouw
| Bouwjaar | 1970 |
|---|---|
| Bouwvorm | bestaande bouw |
| Type Object | Woonhuis |
| Hoofdfunctie | Woonruimte |
Indeling
| Woonoppervlakte | 114 m² |
|---|---|
| Perceeloppervlakte | 90 m² |
| Woning Inhoud | 434 m³ |
| Kamers | 5 (4 slaapkamers) |
Energie
| Energielabel | B |
|---|








































































