
Tuikwerd 65
Groningen
contact met
Riant Makelaars Groningen
| 050 850 33 56 | |
| info@riantmakelaars.nl | |
| 050 850 33 56 | |
| Hereweg 29, 9725 AA Groningen |
Op zoek naar een riant vrijwel nieuwbouw huis?
Deze geweldige twee-onder-een-kapwoning uit 2020 is uitstekend onderhouden en biedt de mogelijkheid om luxe en energiezuinig te wonen. De woning beschikt over maar liefst vijf ruime slaapkamers en twee badkamers (waarvan een slaapkamer en badkamer op de begane grond). Daarbij hoort nog een heerlijke achtertuin op het zuidoosten, waar je tot laat op de dag kunt genieten van de zon.
Met maar liefst 35 zonnepanelen, een warmtepomp, kunststof kozijnen met HR++ beglazing en volledige isolatie kun je hier volledig energiezuinig én gasloos wonen.
Deze moderne woning is gelegen in de rustige en groene wijk Reitdiep. Hier vind je o.a. diverse winkels, een grote supermarkt, school, kinderopvang en dit alles op loopafstand en gelegen aan de fraaie stadsjachthaven. Het centrum van Groningen bereik je met een kwartiertje fietsen en binnen enkele minuten autorijden ben je op de ringweg van Groningen. Mocht je liever met het openbaar vervoer gaan, kun je gemakkelijk opstappen bij P+R Reitdiep.
INDELING
Begane grond: entree/hal met vaste kast, toiletruimte, ruime woonkamer van ca. 27 m² met aansluitend de open keuken van ca. 19 m². De keuken heeft een luxe keukenopstelling met kookeiland, inductiekookplaat, combimagnetron, stoomoven, koel-vriescombinatie, quooker en vaatwasser. Vanuit de keuken kun je naar de slaapkamer op de begane grond (ca 14 m2), met toegang naar de eigen badkamer, voorzien van inloopdouche, vaste wastafel, en handdoekenverwarming. De gehele begane grond is voorzien van vloerverwarming.
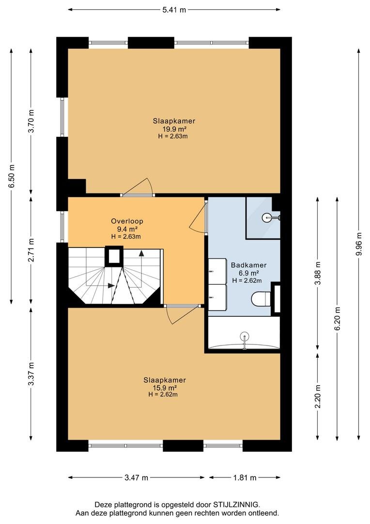
Eerste verdieping: overloop, twee bijzonder ruime slaapkamers (mogelijk om deze te splitsen) van 20 en 16 m², moderne badkamer met inloopdouche, ligbad, dubbele wastafelmeubel en tweede toilet.
Tweede verdieping: overloop, technische ruimte met open werkkamer ca 35 m² (eenvoudig op te splitsen naar slaapkamer) daarnaast is op deze etage nog een slaapkamer van 14 m².
BUITENRUIMTE
Zowel aan de voor- als achterzijde heb je een geweldige tuin. In de achtertuin kun je in de middag en avond nog lekker in de zon zitten.
De achtertuin beschikt over een vrijstaande houten berging en overkapping.
DUURZAAM EN ENERGIEZUINIG
De woning is gasloos, voorzien van een warmtepomp en is voorzien van 35 zonnepanelen.
GOED OM TE WETEN
- moderne en energiezuinige woning uit 2020;
- geheel instapklaar;
- met vijf slaapkamers de ideale gezinswoning;
- parkeerplaatsen op eigen terrein;
- warmptepomp en boiler van 200 liter;
- voorzien van 35 zonnepanelen;
- volledig geïsoleerd met HR++ beglazing;
- volledig voorzien van kunststof kozijnen;
- aanvaarding in overleg (kan snel).
Deze geweldige twee-onder-een-kapwoning uit 2020 is uitstekend onderhouden en biedt de mogelijkheid om luxe en energiezuinig te wonen. De woning beschikt over maar liefst vijf ruime slaapkamers en twee badkamers (waarvan een slaapkamer en badkamer op de begane grond). Daarbij hoort nog een heerlijke achtertuin op het zuidoosten, waar je tot laat op de dag kunt genieten van de zon.
Met maar liefst 35 zonnepanelen, een warmtepomp, kunststof kozijnen met HR++ beglazing en volledige isolatie kun je hier volledig energiezuinig én gasloos wonen.
Deze moderne woning is gelegen in de rustige en groene wijk Reitdiep. Hier vind je o.a. diverse winkels, een grote supermarkt, school, kinderopvang en dit alles op loopafstand en gelegen aan de fraaie stadsjachthaven. Het centrum van Groningen bereik je met een kwartiertje fietsen en binnen enkele minuten autorijden ben je op de ringweg van Groningen. Mocht je liever met het openbaar vervoer gaan, kun je gemakkelijk opstappen bij P+R Reitdiep.
INDELING
Begane grond: entree/hal met vaste kast, toiletruimte, ruime woonkamer van ca. 27 m² met aansluitend de open keuken van ca. 19 m². De keuken heeft een luxe keukenopstelling met kookeiland, inductiekookplaat, combimagnetron, stoomoven, koel-vriescombinatie, quooker en vaatwasser. Vanuit de keuken kun je naar de slaapkamer op de begane grond (ca 14 m2), met toegang naar de eigen badkamer, voorzien van inloopdouche, vaste wastafel, en handdoekenverwarming. De gehele begane grond is voorzien van vloerverwarming.
Eerste verdieping: overloop, twee bijzonder ruime slaapkamers (mogelijk om deze te splitsen) van 20 en 16 m², moderne badkamer met inloopdouche, ligbad, dubbele wastafelmeubel en tweede toilet.
Tweede verdieping: overloop, technische ruimte met open werkkamer ca 35 m² (eenvoudig op te splitsen naar slaapkamer) daarnaast is op deze etage nog een slaapkamer van 14 m².
BUITENRUIMTE
Zowel aan de voor- als achterzijde heb je een geweldige tuin. In de achtertuin kun je in de middag en avond nog lekker in de zon zitten.
De achtertuin beschikt over een vrijstaande houten berging en overkapping.
DUURZAAM EN ENERGIEZUINIG
De woning is gasloos, voorzien van een warmtepomp en is voorzien van 35 zonnepanelen.
GOED OM TE WETEN
- moderne en energiezuinige woning uit 2020;
- geheel instapklaar;
- met vijf slaapkamers de ideale gezinswoning;
- parkeerplaatsen op eigen terrein;
- warmptepomp en boiler van 200 liter;
- voorzien van 35 zonnepanelen;
- volledig geïsoleerd met HR++ beglazing;
- volledig voorzien van kunststof kozijnen;
- aanvaarding in overleg (kan snel).
Over dit object
Overdracht
| Status | verkocht |
|---|---|
| Prijs | € 715.000 k.k. |
Bouw
| Bouwjaar | 2020 |
|---|---|
| Bouwvorm | bestaande bouw |
| Type Object | Woonhuis |
| Hoofdfunctie | Woonruimte |
Indeling
| Woonoppervlakte | 187 m² |
|---|---|
| Perceeloppervlakte | 314 m² |
| Woning Inhoud | 649 m³ |
| Kamers | 6 (5 slaapkamers) |
Energie
| Energielabel | A |
|---|



















































































