
Spaanse Aakstraat 83
Groningen
contact met
Riant Makelaars Groningen
| 050 850 33 56 | |
| info@riantmakelaars.nl | |
| 050 850 33 56 | |
| Hereweg 29, 9725 AA Groningen |
Heerlijk licht 4-kamer appartement, gelegen op de bovenste verdieping én een hoek. Hierdoor heeft het appartement meer privacy en een hele goede lichtinval. Het balkon aan de voorzijde is gelegen op het zuidwesten, waardoor je nog lekker kunt genieten van de late middag en avondzon. Het is mogelijk om de slaapkamer aan de achterzijde bij de woonkamer te betrekken, zodat je een doorzonkamer creëert.
Het appartement is gelegen in een rustige straat in de woonwijk Selwerd en is recent helemaal opgeknapt (Project Sunny Selwerd). Hierdoor is de omgeving groen, rustig en kindvriendelijk, en is er voldoende parkeergelegenheid. Het Noorderstation bevindt zich op steenworp afstand en diverse winkels zijn gemakkelijk te voet bereikbaar. De locatie is ideaal ten opzichte van het Noorderplantsoen, het centrum en het Zernikecomplex – alles is binnen tien minuten te bereiken met de fiets. Neem je de auto, dan ben je binnen één minuut op de ringweg van Groningen. De ligging is heerlijk rustig en biedt een prettige combinatie van comfort en bereikbaarheid.
INDELING
Begane grond: entree met trapopgang en toegang tot de bergingen.
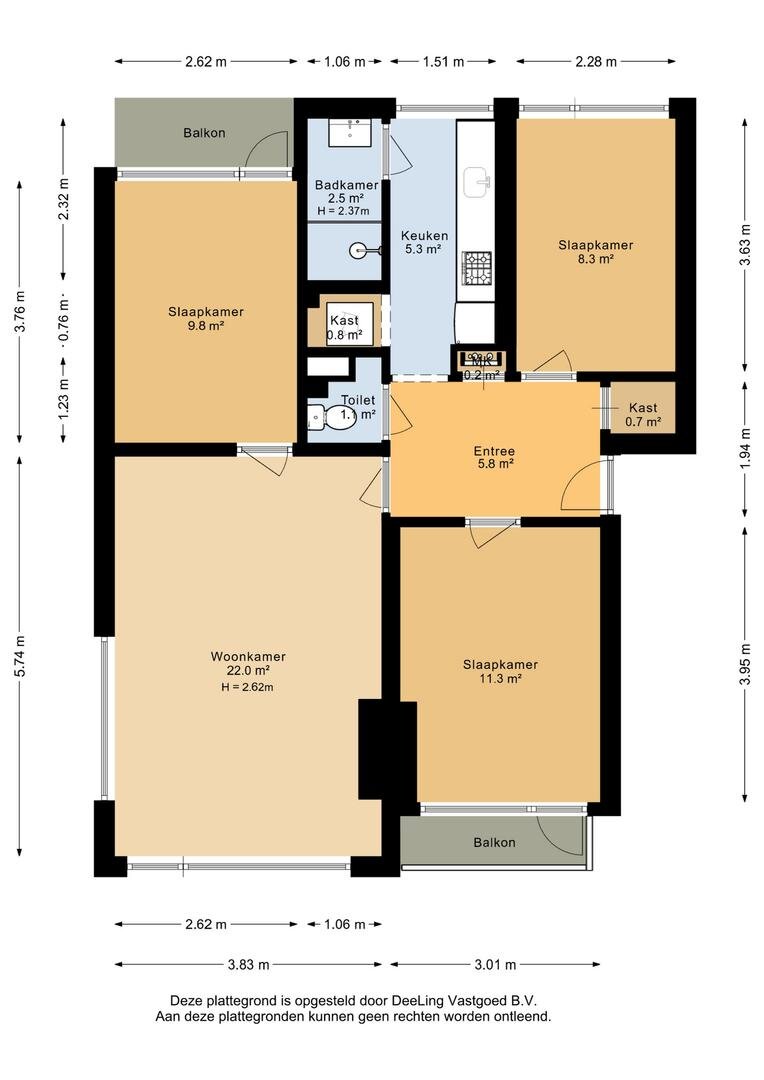
Derde verdieping: entree/hal met vaste kast, toiletruimte, woonkamer van ca. 22 m² met een fantastische lichtinval, mede door het zijraam. Aansluitend is er een slaapkamer van ca. 10 m² met toegang tot het balkon met de ochtendzon. De gesloten keuken heeft een nette keukenopstelling (2019) met 4-pits gaskookplaat, afzuigkap, combi-oven, koel-vriescombinatie en vaatwasser. De keuken heeft ook een vaste kast met wasmachineaansluiting. Vanuit de keuken heb je toegang tot de badkamer en heeft een douche en wastafel. De andere twee slaapkamers zijn ca. 11 en 8 m².
GOED OM TE WETEN
- leuk appartement, ideaal voor starters;
- privacy door de ligging op de hoek en bovenste etage van het complex;
- balkons op het oosten en zuidwesten met vrij zicht;
- nabij uitvalswegen en het Noorderstation;
- kunststof kozijnen met dubbelglas;
- meterkast is vernieuwd;
- cv-ketel Nefit 2018 (eigendom);
- fietsenberging aanwezig;
- actieve VvE met een maandelijks bijdrage van € 135,-;
- er is nog geen melding gedaan van aardbevingsschade;
- niet-zelfbewoningsclausule en ouderdomsclausule zijn van toepassing;
- aanvaarding in overleg.
Het appartement is gelegen in een rustige straat in de woonwijk Selwerd en is recent helemaal opgeknapt (Project Sunny Selwerd). Hierdoor is de omgeving groen, rustig en kindvriendelijk, en is er voldoende parkeergelegenheid. Het Noorderstation bevindt zich op steenworp afstand en diverse winkels zijn gemakkelijk te voet bereikbaar. De locatie is ideaal ten opzichte van het Noorderplantsoen, het centrum en het Zernikecomplex – alles is binnen tien minuten te bereiken met de fiets. Neem je de auto, dan ben je binnen één minuut op de ringweg van Groningen. De ligging is heerlijk rustig en biedt een prettige combinatie van comfort en bereikbaarheid.
INDELING
Begane grond: entree met trapopgang en toegang tot de bergingen.
Derde verdieping: entree/hal met vaste kast, toiletruimte, woonkamer van ca. 22 m² met een fantastische lichtinval, mede door het zijraam. Aansluitend is er een slaapkamer van ca. 10 m² met toegang tot het balkon met de ochtendzon. De gesloten keuken heeft een nette keukenopstelling (2019) met 4-pits gaskookplaat, afzuigkap, combi-oven, koel-vriescombinatie en vaatwasser. De keuken heeft ook een vaste kast met wasmachineaansluiting. Vanuit de keuken heb je toegang tot de badkamer en heeft een douche en wastafel. De andere twee slaapkamers zijn ca. 11 en 8 m².
GOED OM TE WETEN
- leuk appartement, ideaal voor starters;
- privacy door de ligging op de hoek en bovenste etage van het complex;
- balkons op het oosten en zuidwesten met vrij zicht;
- nabij uitvalswegen en het Noorderstation;
- kunststof kozijnen met dubbelglas;
- meterkast is vernieuwd;
- cv-ketel Nefit 2018 (eigendom);
- fietsenberging aanwezig;
- actieve VvE met een maandelijks bijdrage van € 135,-;
- er is nog geen melding gedaan van aardbevingsschade;
- niet-zelfbewoningsclausule en ouderdomsclausule zijn van toepassing;
- aanvaarding in overleg.
Over dit object
Overdracht
| Status | verkocht onder voorbehoud |
|---|---|
| Prijs | € 225.000 k.k. |
Bouw
| Bouwjaar | 1965 |
|---|---|
| Bouwvorm | bestaande bouw |
| Type Object | Appartement |
| Hoofdfunctie | Woonruimte |
Indeling
| Woonoppervlakte | 74 m² |
|---|---|
| Woning Inhoud | 242 m³ |
| Kamers | 4 (3 slaapkamers) |
Energie
| Energielabel | E |
|---|






















































































