
Schoolstraat 4
Oldehove
contact met
Bruining en De Reus
| 0594 55 43 55 | |
| leek@bruiningdereus.nl | |
| 06 8281 0106 | |
| Boveneind 20, 9351 AP Leek | |
| bruiningdereus.nl |
Karakteristieke jaren '30 woning met verrassend veel ruimte, moderne voorzieningen en een sfeervolle indeling
Deze bijzondere, vrijstaande woning – voorheen twee huizen – is gelegen in het pittoreske dorp Oldehove, op slechts 20 autominuten van het centrum van Groningen. De woning heeft een speelse indeling en biedt verrassend veel ruimte, waardoor het een perfecte keuze is voor wie op zoek is naar comfort en karakter. Met vijf slaapkamers, een ruime woonkamer en een zonnige achtertuin met optimale privacy én uitzicht op de historische Liudgerkerk, is dit een plek waar je comfortabel en stijlvol kunt wonen.
De woning is levensloopbestendig, met twee slaapkamers en een ruime badkamer op de begane grond. Daarnaast beschikt de woning over een warmtepomp, 22 zonnepanelen, en is geheel energiezuinig, wat bijdraagt aan een lagere energierekening en een beter milieu. De ligging in het rustige dorp biedt de ideale balans tussen landelijk wonen en de nabijheid van de stad.
INDELING
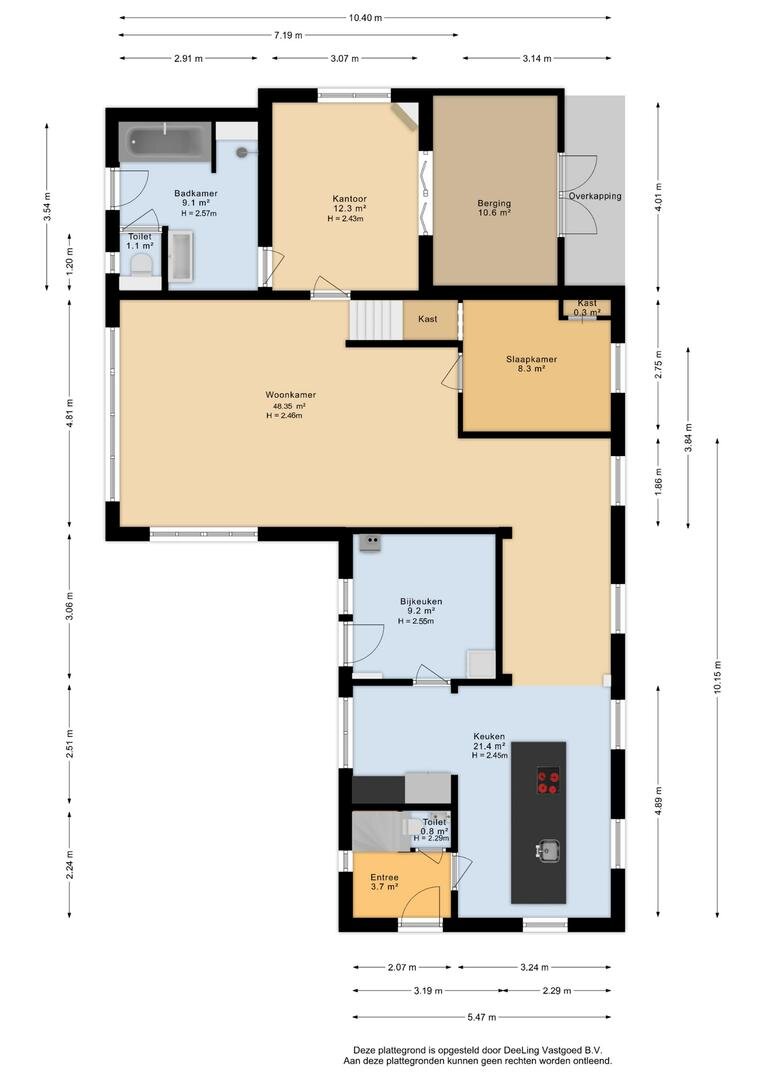
Begane grond: via de zij-entree betreed je de woning en kom je in de hal met een toilet en trapopgang naar de bovenverdieping. De royale woonkeuken van ca. 22 m² is het hart van het huis, uitgerust met een kookeiland, Bora inductiekookplaat met ingebouwd afzuigsysteem, oven, spoelbak en koelkast. Tuingericht is er een gezellige koffiecorner, voorzien van een tweede koelkast en veel bergruimte. De keuken grenst aan de bijkeuken met de cv-opstelling, warmtepompboiler, witgoedaansluiting en een authentieke boerendeur die uitkomt op de achtertuin.
De ruime woonkamer van ca. 48 m² heeft grote raampartijen die zorgen voor veel lichtinval en prachtig uitzicht op de tuin en de Liudgerkerk. Vanuit de woonkamer bereik je een lichte slaapkamer van ca. 8 m² met kastruimte en een sfeervolle studeerkamer van ca. 12 m² met een gezellige houtkachel. De ruime en gemoderniseerde badkamer is een echte eyecatcher, met een royaal ligbad, ruime stortdouche, wastafelmeubel en een separaat toilet. De badkamer heeft ook een deur naar de tuin.
Eerste verdieping: op de eerste verdieping bevinden zich 3 slaapkamers van respectievelijk ca. 10 m² en 21 m², waarvan de laatste gesplitst is in twee slaapkamers en beide zijn voorzien van een dakkapel. Via de trap in de hal bereik je een overloop met slaapkamer van (ca. 9 m²), thans in gebruik als kantoor, met een inbouwkast. Dit biedt de mogelijkheid om een werkruimte of logeerkamer te creëren.
BUITENRUIMTE
De achtertuin is recent gerenoveerd en biedt veel privacy. Er zijn verschillende zonnige plekken waar je de hele dag kunt genieten van het buitenleven, met uitzicht op de historische Liudgerkerk die 's avonds sfeervol verlicht is. De tuin is een ideale plek om te ontspannen of te socializen. Aan de voorzijde is er een eigen laadpaal aanwezig en de mogelijkheid te parkeren plus je auto te laden.
GOED OM TE WETEN
- instapklare woning met karakter en moderne voorzieningen;
- levensloopbestendig door slaapkamers en badkamer op de begane grond;
- royale, zonnige achtertuin met veel privacy en uitzicht op de Liudgerkerk;
- gehele woning voorzien van vloerverwarming op de begane grond;
- warmtepompboiler en 22 zonnepanelen voor energiezuinig wonen;
- keuken vernieuwd in 2022, inclusief moderne apparatuur;
- twee toiletten recent vernieuwd;
- eigen laadpaal voor elektrisch vervoer;
- dak- en vloerisolatie voor extra comfort en besparing;
- rustige locatie met goede bereikbaarheid naar Groningen;
- aanvaarding in overleg.
WAAROM DEZE WONING?
De combinatie van rust, ruimte, veel licht en een verrassende indeling maakt deze woning ideaal voor gezinnen, mensen die vanuit huis werken of mensen die op zoek zijn naar een sfeervolle plek om te wonen en ontspannen. Dankzij de moderne voorzieningen, waaronder de warmtepompboiler en zonnepanelen, kun je niet alleen genieten van een comfortabele leefruimte, maar ook van lagere energiekosten. Bovendien biedt de ligging in Oldehove, dicht bij Groningen, het beste van beide werelden: de rust van het dorp en de voordelen van de stad.
Deze bijzondere, vrijstaande woning – voorheen twee huizen – is gelegen in het pittoreske dorp Oldehove, op slechts 20 autominuten van het centrum van Groningen. De woning heeft een speelse indeling en biedt verrassend veel ruimte, waardoor het een perfecte keuze is voor wie op zoek is naar comfort en karakter. Met vijf slaapkamers, een ruime woonkamer en een zonnige achtertuin met optimale privacy én uitzicht op de historische Liudgerkerk, is dit een plek waar je comfortabel en stijlvol kunt wonen.
De woning is levensloopbestendig, met twee slaapkamers en een ruime badkamer op de begane grond. Daarnaast beschikt de woning over een warmtepomp, 22 zonnepanelen, en is geheel energiezuinig, wat bijdraagt aan een lagere energierekening en een beter milieu. De ligging in het rustige dorp biedt de ideale balans tussen landelijk wonen en de nabijheid van de stad.
INDELING
Begane grond: via de zij-entree betreed je de woning en kom je in de hal met een toilet en trapopgang naar de bovenverdieping. De royale woonkeuken van ca. 22 m² is het hart van het huis, uitgerust met een kookeiland, Bora inductiekookplaat met ingebouwd afzuigsysteem, oven, spoelbak en koelkast. Tuingericht is er een gezellige koffiecorner, voorzien van een tweede koelkast en veel bergruimte. De keuken grenst aan de bijkeuken met de cv-opstelling, warmtepompboiler, witgoedaansluiting en een authentieke boerendeur die uitkomt op de achtertuin.
De ruime woonkamer van ca. 48 m² heeft grote raampartijen die zorgen voor veel lichtinval en prachtig uitzicht op de tuin en de Liudgerkerk. Vanuit de woonkamer bereik je een lichte slaapkamer van ca. 8 m² met kastruimte en een sfeervolle studeerkamer van ca. 12 m² met een gezellige houtkachel. De ruime en gemoderniseerde badkamer is een echte eyecatcher, met een royaal ligbad, ruime stortdouche, wastafelmeubel en een separaat toilet. De badkamer heeft ook een deur naar de tuin.
Eerste verdieping: op de eerste verdieping bevinden zich 3 slaapkamers van respectievelijk ca. 10 m² en 21 m², waarvan de laatste gesplitst is in twee slaapkamers en beide zijn voorzien van een dakkapel. Via de trap in de hal bereik je een overloop met slaapkamer van (ca. 9 m²), thans in gebruik als kantoor, met een inbouwkast. Dit biedt de mogelijkheid om een werkruimte of logeerkamer te creëren.
BUITENRUIMTE
De achtertuin is recent gerenoveerd en biedt veel privacy. Er zijn verschillende zonnige plekken waar je de hele dag kunt genieten van het buitenleven, met uitzicht op de historische Liudgerkerk die 's avonds sfeervol verlicht is. De tuin is een ideale plek om te ontspannen of te socializen. Aan de voorzijde is er een eigen laadpaal aanwezig en de mogelijkheid te parkeren plus je auto te laden.
GOED OM TE WETEN
- instapklare woning met karakter en moderne voorzieningen;
- levensloopbestendig door slaapkamers en badkamer op de begane grond;
- royale, zonnige achtertuin met veel privacy en uitzicht op de Liudgerkerk;
- gehele woning voorzien van vloerverwarming op de begane grond;
- warmtepompboiler en 22 zonnepanelen voor energiezuinig wonen;
- keuken vernieuwd in 2022, inclusief moderne apparatuur;
- twee toiletten recent vernieuwd;
- eigen laadpaal voor elektrisch vervoer;
- dak- en vloerisolatie voor extra comfort en besparing;
- rustige locatie met goede bereikbaarheid naar Groningen;
- aanvaarding in overleg.
WAAROM DEZE WONING?
De combinatie van rust, ruimte, veel licht en een verrassende indeling maakt deze woning ideaal voor gezinnen, mensen die vanuit huis werken of mensen die op zoek zijn naar een sfeervolle plek om te wonen en ontspannen. Dankzij de moderne voorzieningen, waaronder de warmtepompboiler en zonnepanelen, kun je niet alleen genieten van een comfortabele leefruimte, maar ook van lagere energiekosten. Bovendien biedt de ligging in Oldehove, dicht bij Groningen, het beste van beide werelden: de rust van het dorp en de voordelen van de stad.
Over dit object
Overdracht
| Status | verkocht |
|---|---|
| Prijs | € 399.000 k.k. |
Bouw
| Bouwjaar | 1930 |
|---|---|
| Bouwvorm | bestaande bouw |
| Type Object | Woonhuis |
| Hoofdfunctie | Woonruimte |
Indeling
| Woonoppervlakte | 167 m² |
|---|---|
| Perceeloppervlakte | 301 m² |
| Woning Inhoud | 631 m³ |
| Kamers | 6 (4 slaapkamers) |
Energie
| Energielabel | C |
|---|










































































































