
Paterswoldseweg 200
Groningen
contact met
Riant Makelaars Groningen
| 050 850 33 56 | |
| info@riantmakelaars.nl | |
| 050 850 33 56 | |
| Hereweg 29, 9725 AA Groningen |
Gemoderniseerd en licht 3-kamerappartement waar je zo in kunt! Op de tweede woonlaag van het complex vind je dit zeer goed onderhouden appartement met twee slaapkamers en zowel een balkon op het oosten als het westen. Hierdoor kun je 's ochtends even lekker met een kopje koffie in de zon zitten of juist einde van de dag de laatste zonnestralen meepikken. Vanuit de woonkamer heb je mooi vrij zicht over groen.
De locatie top, namelijk letterlijk tegenover het Stadspark en met voorzieningen op steenworp afstand. Daarnaast ben je binnen 5 minuten fietsen in de binnenstad van Groningen en het Centraal Station. Mocht je de auto willen pakken, ben je zo op de A7 of A28. Als je houdt van de combinatie tussen rust en reuring, zit je hier goed!
INDELING
Begane grond: entree portiek met toegang tot de ruime berging (ca. 12 m²) in het souterrain.
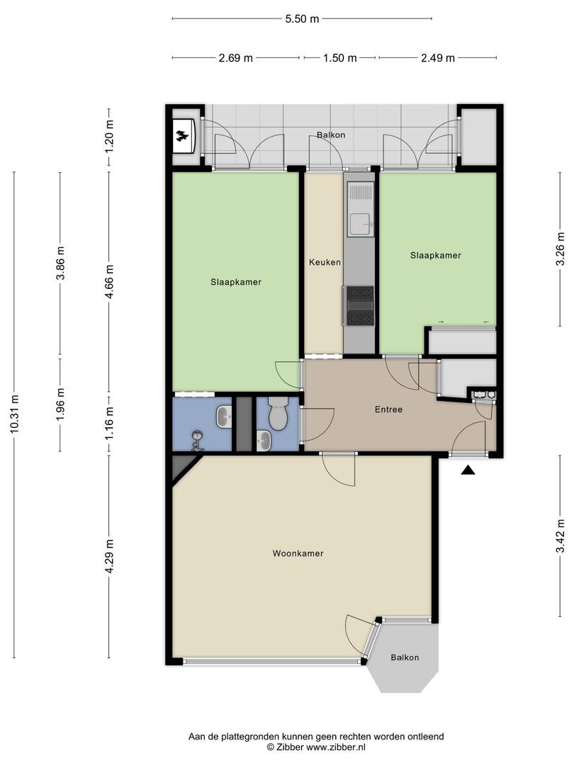
Tweede verdieping: entree appartement, hal, toiletruimte, geweldig lichte woonkamer van ca. 22 m² met toegang tot het balkon op het westen. Hier kun je fijn zitten met uitzicht over groen. De gesloten keuken is voorzien van een moderne keukenopstelling met 4-pits gaskookplaat, combi-oven, afzuigkap en vaatwasser. Vanuit de keuken loop je zo het balkon op, waar de ochtendzon op schijnt. De grote slaapkamer is ca. 13 m² en biedt toegang tot de badkamer met douche en wastafel. De slaapkamer van ca. 8 m² heeft een vaste kast. Beide slaapkamers hebben openslaande deuren naar het balkon met bergruimte en cv-opstelling.
GOED OM TE WETEN
- de woning is aan de voorzijde voorzien van kunststof kozijnen met HR++ glas;
- houten kozijnen aan de achterzijde en geschilderd in 2023;
- in 2017 voorzien van nieuwe keukenopstelling;
- energielabel B, lage energielasten;
- uitzicht op het prachtige en groene Stadspark;
- keurig onderhouden en goed afwerkingsniveau;
- HR combiketel van bouwjaar 2017 (eigendom).
- niet zelfbewoningsclausule en ouderdomsclausule zijn van toepassing;
- geen vragenlijst aanwezig;
- aanvaarding in overleg (per 1 augustus beschikbaar).
De locatie top, namelijk letterlijk tegenover het Stadspark en met voorzieningen op steenworp afstand. Daarnaast ben je binnen 5 minuten fietsen in de binnenstad van Groningen en het Centraal Station. Mocht je de auto willen pakken, ben je zo op de A7 of A28. Als je houdt van de combinatie tussen rust en reuring, zit je hier goed!
INDELING
Begane grond: entree portiek met toegang tot de ruime berging (ca. 12 m²) in het souterrain.
Tweede verdieping: entree appartement, hal, toiletruimte, geweldig lichte woonkamer van ca. 22 m² met toegang tot het balkon op het westen. Hier kun je fijn zitten met uitzicht over groen. De gesloten keuken is voorzien van een moderne keukenopstelling met 4-pits gaskookplaat, combi-oven, afzuigkap en vaatwasser. Vanuit de keuken loop je zo het balkon op, waar de ochtendzon op schijnt. De grote slaapkamer is ca. 13 m² en biedt toegang tot de badkamer met douche en wastafel. De slaapkamer van ca. 8 m² heeft een vaste kast. Beide slaapkamers hebben openslaande deuren naar het balkon met bergruimte en cv-opstelling.
GOED OM TE WETEN
- de woning is aan de voorzijde voorzien van kunststof kozijnen met HR++ glas;
- houten kozijnen aan de achterzijde en geschilderd in 2023;
- in 2017 voorzien van nieuwe keukenopstelling;
- energielabel B, lage energielasten;
- uitzicht op het prachtige en groene Stadspark;
- keurig onderhouden en goed afwerkingsniveau;
- HR combiketel van bouwjaar 2017 (eigendom).
- niet zelfbewoningsclausule en ouderdomsclausule zijn van toepassing;
- geen vragenlijst aanwezig;
- aanvaarding in overleg (per 1 augustus beschikbaar).
Over dit object
Overdracht
| Status | verkocht |
|---|---|
| Prijs | € 249.000 k.k. |
Bouw
| Bouwjaar | 1959 |
|---|---|
| Bouwvorm | bestaande bouw |
| Type Object | Appartement |
| Hoofdfunctie | Woonruimte |
Indeling
| Woonoppervlakte | 63 m² |
|---|---|
| Woning Inhoud | 190 m³ |
| Kamers | 3 (2 slaapkamers) |
Energie
| Energielabel | B |
|---|















































































