
Paradijsvogelstraat 39
Groningen
contact met
Riant Makelaars Groningen
| 050 850 33 56 | |
| info@riantmakelaars.nl | |
| 050 850 33 56 | |
| Hereweg 29, 9725 AA Groningen |
Ruime en uitstekend onderhouden woning met maar liefst 5 slaapkamers, 2 badkamers én 170 m² woonoppervlakte! Kortom: de perfecte woning voor gezinnen. De auto bij huis parkeren kost geen enkele moeite meer, want de woning beschikt over een eigen parkeerplaats in de parkeerkelder. De woning is volledig geïsoleerd, heeft 9 zonnepanelen (2021) en een vrijwel nieuwe cv-ketel. Hierdoor is de woning zeer energiezuinig en kun je hier met alle comfort wonen.
Aangezien zich 2 kamers op de begane grond bevinden is deze woning ook zeer geschikt voor werken en/of een praktijk aan huis. Werk en privé kunnen door deze indeling afzonderlijk van elkaar functioneren, ideaal toch?
De woning is gelegen in een autoluwe straat in de jonge woonwijk Stadswerf, wat staat voor rustig en besloten wonen aan de rand van de Oosterparkbuurt. Een wijk met basisscholen, sportvoorzieningen, een park en een plantsoen binnen handbereik. Het bruisende centrum van Groningen is slechts ca. 5 minuten fietsen en met enkele minuten autorijden bereik je de noordelijke ringweg.
INDELING
Begane grond: entree/hal, berging van ca. 7 m² met witgoedaansluiting, cv-opstelling en deur naar de tuin, toiletruimte, twee ruime slaap-/werkkamers van ca. 14 en 17 m² waarvan de grootste slaapkamer toegang heeft tot een badkamer met douche en wastafel. Vanuit deze kamer kun je ook naar de stadstuin.
Eerste verdieping: overloop, fantastisch lichte woonkamer van in totaal zo'n 50 m² met een luxe open keuken met kook-/schiereiland voorzien van een 5-pitskookplaat, afzuigkap en een keukenblok met combi-oven, koelkast, vriezer, vaatwasser en Quooker. Hier kun je heerlijk koken!
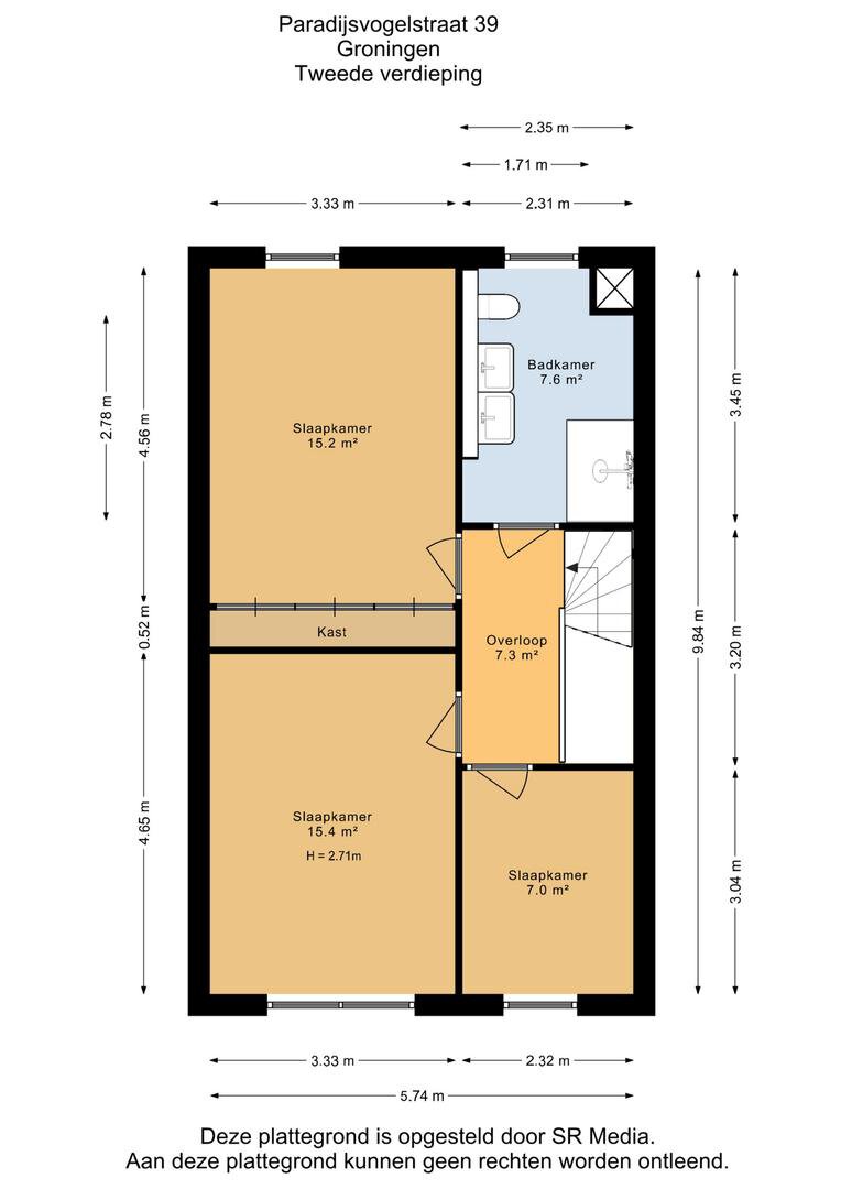
Tweede verdieping: overloop, slaapkamer van ca. 15 m² met een inbouwkast, slaapkamer van ca, 15 m² en een slaapkamer van ca. 7 m². De moderne badkamer heeft een inloopdouche, dubbele wastafelmeubel en tweede toilet.
GOED OM TE WETEN
- de ideale eengezinswoning;
- modern en geheel instapklaar;
- stadstuin met een houten berging;
- Verwarming en warm water via cv-combiketel (Remeha 2023, eigendom);
- voorzien van 9 zonnepanelen;
- energielabel A++;
- als gevolg van de indeling ook ideaal voor de combinatie wonen/werken;
- het betreft een eengezinswoning, die juridisch een appartementsrecht betreft;
- de VvE-bijdrage voor de woning bedraagt € 22,61 p/mnd (voor glas- en opstalverzekering);
- de VvE-bijdrage voor de parkeerplaats/-kelder bedraag € 32,35 p/mnd;
- aanvaarding in overleg.
Aangezien zich 2 kamers op de begane grond bevinden is deze woning ook zeer geschikt voor werken en/of een praktijk aan huis. Werk en privé kunnen door deze indeling afzonderlijk van elkaar functioneren, ideaal toch?
De woning is gelegen in een autoluwe straat in de jonge woonwijk Stadswerf, wat staat voor rustig en besloten wonen aan de rand van de Oosterparkbuurt. Een wijk met basisscholen, sportvoorzieningen, een park en een plantsoen binnen handbereik. Het bruisende centrum van Groningen is slechts ca. 5 minuten fietsen en met enkele minuten autorijden bereik je de noordelijke ringweg.
INDELING
Begane grond: entree/hal, berging van ca. 7 m² met witgoedaansluiting, cv-opstelling en deur naar de tuin, toiletruimte, twee ruime slaap-/werkkamers van ca. 14 en 17 m² waarvan de grootste slaapkamer toegang heeft tot een badkamer met douche en wastafel. Vanuit deze kamer kun je ook naar de stadstuin.
Eerste verdieping: overloop, fantastisch lichte woonkamer van in totaal zo'n 50 m² met een luxe open keuken met kook-/schiereiland voorzien van een 5-pitskookplaat, afzuigkap en een keukenblok met combi-oven, koelkast, vriezer, vaatwasser en Quooker. Hier kun je heerlijk koken!
Tweede verdieping: overloop, slaapkamer van ca. 15 m² met een inbouwkast, slaapkamer van ca, 15 m² en een slaapkamer van ca. 7 m². De moderne badkamer heeft een inloopdouche, dubbele wastafelmeubel en tweede toilet.
GOED OM TE WETEN
- de ideale eengezinswoning;
- modern en geheel instapklaar;
- stadstuin met een houten berging;
- Verwarming en warm water via cv-combiketel (Remeha 2023, eigendom);
- voorzien van 9 zonnepanelen;
- energielabel A++;
- als gevolg van de indeling ook ideaal voor de combinatie wonen/werken;
- het betreft een eengezinswoning, die juridisch een appartementsrecht betreft;
- de VvE-bijdrage voor de woning bedraagt € 22,61 p/mnd (voor glas- en opstalverzekering);
- de VvE-bijdrage voor de parkeerplaats/-kelder bedraag € 32,35 p/mnd;
- aanvaarding in overleg.
Over dit object
Overdracht
| Status | verkocht |
|---|---|
| Prijs | € 500.000 k.k. |
Bouw
| Bouwjaar | 2012 |
|---|---|
| Bouwvorm | bestaande bouw |
| Type Object | Woonhuis |
| Hoofdfunctie | Woonruimte |
Indeling
| Woonoppervlakte | 170 m² |
|---|---|
| Perceeloppervlakte | 100 m² |
| Woning Inhoud | 635 m³ |
| Kamers | 6 (5 slaapkamers) |
Energie
| Energielabel | A++ |
|---|






























































































