
Molenweg 22
Bedum
contact met
Riant Makelaars Bedum
| 050 301 3775 | |
| bedum@riantmakelaars.nl | |
| 050 8503356 | |
| Molenweg 22, 9781 GM Bedum |
Karakteristiek wonen en/of werken in hartje Bedum aan de Molenweg 22 is een unieke kans voor iedereen die zoekt naar ruimte, charme en een toplocatie!
Aan het Boterdiep, naast de markante ‘gele klap’, staat dit prachtige vrijstaande jaren ’30 pand. Met een royaal woonoppervlak van ca. 175 m² en de mogelijkheid voor zowel wonen als werken, biedt dit pand volop kansen voor verschillende woon- en werkcombinaties. De huidige eigenaar gebruikt het pand als kantoor, maar de bestemming maakt het ook mogelijk om hier volledig te wonen. Of misschien droom je van een atelier, praktijkruimte of een plek voor je hobby’s? Dankzij de ruime indeling en de sfeervolle uitstraling kun je dit pand helemaal naar eigen wens inrichten.
Of je nu kiest voor comfortabel wonen met uitzicht op de brug en het water, een inspirerende werkplek in een levendige omgeving of een combinatie van beide: hier kan het allemaal. Daarbij liggen alle voorzieningen op loopafstand en wordt de Molenweg inclusief de kade vernieuwd, wat de omgeving nog aantrekkelijker maakt. Met de auto ben je binnen een kwartier in de stad Groningen en de bushalte richting de stad ligt letterlijk om de hoek.
INDELING
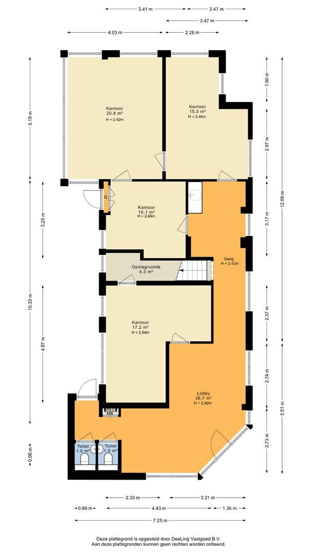
Begane grond: entree/ontvangstruimte met toegang tot twee toiletten, een (kantoor)ruimte van ca. 17 m² met zicht op het Boterdiep. De gang heeft een keukenblok en trapopgang naar de eerste verdieping. De drie andere (kantoor)ruimtes zijn ca. 21, 15 en 10 m², waarvan de laatste ruimte een deur naar buiten heeft.
Eerste verdieping: ruime overloop met toegang tot een bergruimte van ca. 10 m² met cv-opstelling en een bergruimte van ca. 6 m². De gang biedt toegang tot opslagruimte en een (kantoor)kamer van ca. 9 m². De mooie ruime (kantoor)kamer van ca. 22 m² biedt toegang tot het dakterras van ca. 13 m² op het zonnige zuiden en met zicht op het Boterdiep.
BESTEMMING
De Molenweg 22 te Bedum valt onder het tijdelijke deel van het omgevingsplan (voorheen “Bestemmingsplan Bedum Kern”) en heeft de enkelbestemming ‘Dienstverlening’ en de aanduidingen ‘Maximum goothoogte: 4 meter’, ‘Maximum bouwhoogte: 8 meter’ en ‘Geluidzone wegverkeer’.
Gelet op artikel 13.1 van het tijdelijke deel van het omgevingsplan (voorheen “Bestemmingsplan Bedum Kern”) zijn de voor ‘dienstverlening’ aangewezen gronden onder andere bestemd voor:
a) Gebouwen t.b.v. dienstverlening (bijvoorbeeld een kantoorfunctie);
b) Gebouwen t.b.v. handels-, ambachts-, en nijverheidsbedrijven vallend onder bedrijfscategorie 1.;
c) (Dienst/bedrijfs)woningen.
Met de daarbij behorende parkeervoorzieningen, tuinen, erven, terreinen en bouwwerken, geen gebouwen zijnde.
Gelet op artikel 13.2.1 onder b van het tijdelijke deel van het omgevingsplan (voorheen “Bestemmingsplan Bedum Kern”) staat dat ‘het aantal woningen niet meer mag bedragen dan het op het moment van terinzagelegging bestaande aantal’.
Aangezien voor Molenweg 22 er één adres (met huisnummer) op het perceel staat en gelet op de toegestane bovenstaande regels is het gebruik van het pand als één woning toegestaan.
GOED OM TE WETEN
- subsidiemogelijkheden: hethogeland.nl/subsidies-en-leningen/subsidie-voor-centrumplannen;
- vrijstaande woning, nu in gebruik als kantoor;
- mogelijkheid om wonen en werken te combineren;
- gelegen op een geweldige centrale locatie in Bedum;
- werken en/of wonen met zicht op het Boterdiep;
- het pand dient verduurzaamd en gemoderniseerd te worden;
- ouderdomsclausule is van toepassing;
- aanvaarding in overleg.
Aan het Boterdiep, naast de markante ‘gele klap’, staat dit prachtige vrijstaande jaren ’30 pand. Met een royaal woonoppervlak van ca. 175 m² en de mogelijkheid voor zowel wonen als werken, biedt dit pand volop kansen voor verschillende woon- en werkcombinaties. De huidige eigenaar gebruikt het pand als kantoor, maar de bestemming maakt het ook mogelijk om hier volledig te wonen. Of misschien droom je van een atelier, praktijkruimte of een plek voor je hobby’s? Dankzij de ruime indeling en de sfeervolle uitstraling kun je dit pand helemaal naar eigen wens inrichten.
Of je nu kiest voor comfortabel wonen met uitzicht op de brug en het water, een inspirerende werkplek in een levendige omgeving of een combinatie van beide: hier kan het allemaal. Daarbij liggen alle voorzieningen op loopafstand en wordt de Molenweg inclusief de kade vernieuwd, wat de omgeving nog aantrekkelijker maakt. Met de auto ben je binnen een kwartier in de stad Groningen en de bushalte richting de stad ligt letterlijk om de hoek.
INDELING
Begane grond: entree/ontvangstruimte met toegang tot twee toiletten, een (kantoor)ruimte van ca. 17 m² met zicht op het Boterdiep. De gang heeft een keukenblok en trapopgang naar de eerste verdieping. De drie andere (kantoor)ruimtes zijn ca. 21, 15 en 10 m², waarvan de laatste ruimte een deur naar buiten heeft.
Eerste verdieping: ruime overloop met toegang tot een bergruimte van ca. 10 m² met cv-opstelling en een bergruimte van ca. 6 m². De gang biedt toegang tot opslagruimte en een (kantoor)kamer van ca. 9 m². De mooie ruime (kantoor)kamer van ca. 22 m² biedt toegang tot het dakterras van ca. 13 m² op het zonnige zuiden en met zicht op het Boterdiep.
BESTEMMING
De Molenweg 22 te Bedum valt onder het tijdelijke deel van het omgevingsplan (voorheen “Bestemmingsplan Bedum Kern”) en heeft de enkelbestemming ‘Dienstverlening’ en de aanduidingen ‘Maximum goothoogte: 4 meter’, ‘Maximum bouwhoogte: 8 meter’ en ‘Geluidzone wegverkeer’.
Gelet op artikel 13.1 van het tijdelijke deel van het omgevingsplan (voorheen “Bestemmingsplan Bedum Kern”) zijn de voor ‘dienstverlening’ aangewezen gronden onder andere bestemd voor:
a) Gebouwen t.b.v. dienstverlening (bijvoorbeeld een kantoorfunctie);
b) Gebouwen t.b.v. handels-, ambachts-, en nijverheidsbedrijven vallend onder bedrijfscategorie 1.;
c) (Dienst/bedrijfs)woningen.
Met de daarbij behorende parkeervoorzieningen, tuinen, erven, terreinen en bouwwerken, geen gebouwen zijnde.
Gelet op artikel 13.2.1 onder b van het tijdelijke deel van het omgevingsplan (voorheen “Bestemmingsplan Bedum Kern”) staat dat ‘het aantal woningen niet meer mag bedragen dan het op het moment van terinzagelegging bestaande aantal’.
Aangezien voor Molenweg 22 er één adres (met huisnummer) op het perceel staat en gelet op de toegestane bovenstaande regels is het gebruik van het pand als één woning toegestaan.
GOED OM TE WETEN
- subsidiemogelijkheden: hethogeland.nl/subsidies-en-leningen/subsidie-voor-centrumplannen;
- vrijstaande woning, nu in gebruik als kantoor;
- mogelijkheid om wonen en werken te combineren;
- gelegen op een geweldige centrale locatie in Bedum;
- werken en/of wonen met zicht op het Boterdiep;
- het pand dient verduurzaamd en gemoderniseerd te worden;
- ouderdomsclausule is van toepassing;
- aanvaarding in overleg.
Over dit object
Overdracht
| Status | verkocht onder voorbehoud |
|---|---|
| Prijs | € 275.000 k.k. |
Bouw
| Bouwjaar | 1930 |
|---|---|
| Bouwvorm | bestaande bouw |
| Type Object | Woonhuis |
| Hoofdfunctie | Woonruimte |
Indeling
| Woonoppervlakte | 175 m² |
|---|---|
| Perceeloppervlakte | 182 m² |
| Woning Inhoud | 631 m³ |
| Kamers | 8 (2 slaapkamers) |
Energie
| Energielabel | G |
|---|





















































































