
Lagestraat 10
Loppersum
contact met
Riant Makelaars Bedum
| 050 301 3775 | |
| bedum@riantmakelaars.nl | |
| 050 8503356 | |
| Molenweg 22, 9781 GM Bedum |
Vrijstaande, gasloze nieuwbouwwoning met karakter, moderne afwerking en diepe tuin in het hart van Loppersum!
Aan de Lagestraat 10, in het sfeervolle centrum van Loppersum, staat deze in 2025 opgeleverde nieuwbouwwoning. De woning combineert het karakter van het historische dorpsgezicht met eigentijds wooncomfort. Op een royaal perceel van 508 m² en met een woonoppervlakte van 133 m² geniet je hier van ruimte, licht en duurzaamheid — volledig gasloos, met zonnepanelen, warmtepomp en vloerverwarming.
Ligging
De woning ligt op historische grond in het beschermde dorpsgezicht van Loppersum, met aan de voorzijde uitzicht op Villa Zuidven en het grachtje van de Schipsloot. Vanuit de straat kijk je naar de markante 11e-eeuwse Lopster toren. Alle voorzieningen zijn op loopafstand: winkels, supermarkt, basisschool, kinderopvang, huisarts, tandarts en het gemeentehuis. Ook het zoutwaterbad KP Zijl ligt dichtbij. Vanuit Loppersum zijn Groningen en omliggende dorpen goed bereikbaar per trein, bus of auto.
Architectuur en afwerking
Het ontwerp sluit fraai aan op het dorpskarakter, met een klassieke gevel in rode baksteen en een zwart pannendak. De moderne achterzijde is bekleed met Douglas-hout, wat de woning een eigentijdse uitstraling geeft. De binnenzijde is licht en strak afgewerkt met scanbehang (RAL 9002), witte binnendeuren met paneelverdeling en een wit geschilderde trap.
Indeling
Begane grond
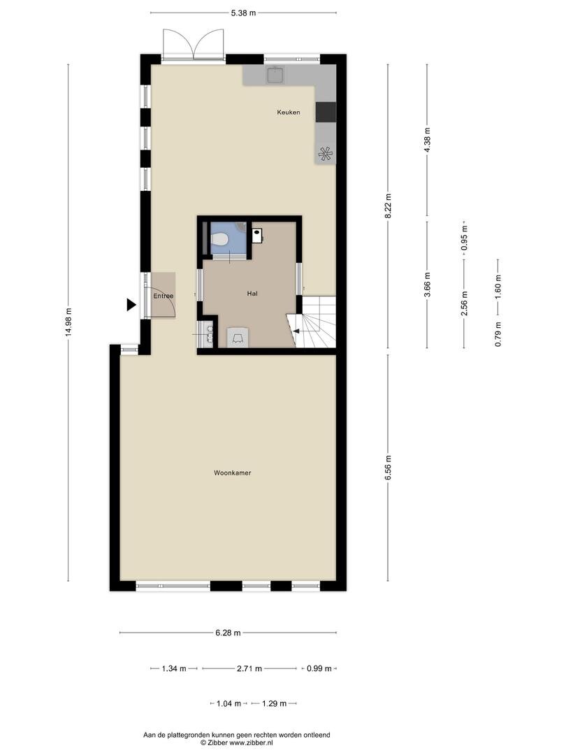
Via de entree aan de zijkant van de woning kom je binnen in de hal met een open verbinding naar zowel de woonkamer als de woonkeuken. De centraal gesitueerde tussenhal/bijkeuken is praktisch ingericht en voorzien van een separaat toilet, ruimte voor wasmachine/droger en de technische installatie en is afsluitbaar middels schuifdeuren.
De tuingerichte woonkeuken ligt in het achterdeel van de woning en is een echte blikvanger: met een vide van bijna 6 meter hoog, dakramen en openslaande deuren naar de tuin. De moderne keuken van IKEA is uitgevoerd in groen met een zwart composieten werkblad en is voorzien van inbouwapparatuur zoals een inductiekookplaat, combi-oven, koel-vriescombinatie en vaatwasser.
De ruime straatgerichte woonkamer (ca. 42 m²) heeft grote raampartijen die zorgen voor veel lichtinval en als gevolg van de open structuur is er ook vanuit de woonkamer zicht op de achtertuin.
Eerste verdieping
De open structuur wordt ook voortgezet op de verdieping, vanaf de overloop is er weer connectie met de hal/gang in de woning. De badkamer die gesitueerd is in de centrale kolom van het huis is stijlvol ingericht in tinten van zand, wit en mintgroen en uitgerust met een ruime inloopdouche, ligbad, wastafelmeubel en toilet. Een bijzonder detail is het raam met doorkijk naar de vide, dat zorgt voor extra licht en ruimtelijkheid.
De twee slaapkamers (ca. 14 en 16 m²) bevinden zich aan de voorzijde en hebben hoge plafonds en dakramen aan de voorkant.
Buitenruimte
Achter de woning ligt een ruime, zonnige tuin op het noorden, gescheiden van het achterdeel door een mandelig pad. De totale diepte is ca. 50 meter! Als gevolg van het feit dat de tuin nog dient te worden aangelegd zijn er nog volop mogelijkheden voor inrichting; groen of stenen, veranda of vijver, gazon of siertuin, aan jou de keuze! Er is tevens voldoende mogelijkheid voor parkeergelegenheid op eigen terrein. Het achterste deel van de tuin grenst aan een groenstrook met bomen en weilanden en biedt uitzicht op de molen van Loppersum – een uniek en rustgevend uitzicht. In het voorste gedeelte van de tuin is een berkenboom bewaard gebleven welke direct dienst kan doen als natuurlijke parasol. De tuin is een fraaie plek om te ontspannen of te spelen.
Bijzonderheden
• Bouwjaar 2024/2025 (bouwbedrijf Dijkstra Draisma)
• Woonoppervlakte ca. 133 m²
• Perceeloppervlakte 508 m²
• Gasloos, energielabel A+++
• Vloerverwarming op de begane grond, warmtepomp en zonnepanelen
• Moderne keuken met composieten werkblad en complete inbouwapparatuur
• Luxe badkamer met ligbad, toilet, wastafelmeubel en inloopdouche
• Parkeergelegenheid op eigen terrein
• Gelegen in beschermd dorpsgezicht met fraaie historische omgeving
• Sfeerimpressies in de presentatie geven een beeld van de mogelijk afwerking
Een unieke kans om nieuwbouw te combineren met karakter en historie in het hart van Loppersum. Maak kennis met deze moderne, duurzame woning met verrassend veel licht en ruimte — een plek waar oud en nieuw in perfecte harmonie samenkomen.
Wil je de sfeer zelf ervaren? Riant Makelaars laat je deze bijzondere woning graag zien.
Aan de Lagestraat 10, in het sfeervolle centrum van Loppersum, staat deze in 2025 opgeleverde nieuwbouwwoning. De woning combineert het karakter van het historische dorpsgezicht met eigentijds wooncomfort. Op een royaal perceel van 508 m² en met een woonoppervlakte van 133 m² geniet je hier van ruimte, licht en duurzaamheid — volledig gasloos, met zonnepanelen, warmtepomp en vloerverwarming.
Ligging
De woning ligt op historische grond in het beschermde dorpsgezicht van Loppersum, met aan de voorzijde uitzicht op Villa Zuidven en het grachtje van de Schipsloot. Vanuit de straat kijk je naar de markante 11e-eeuwse Lopster toren. Alle voorzieningen zijn op loopafstand: winkels, supermarkt, basisschool, kinderopvang, huisarts, tandarts en het gemeentehuis. Ook het zoutwaterbad KP Zijl ligt dichtbij. Vanuit Loppersum zijn Groningen en omliggende dorpen goed bereikbaar per trein, bus of auto.
Architectuur en afwerking
Het ontwerp sluit fraai aan op het dorpskarakter, met een klassieke gevel in rode baksteen en een zwart pannendak. De moderne achterzijde is bekleed met Douglas-hout, wat de woning een eigentijdse uitstraling geeft. De binnenzijde is licht en strak afgewerkt met scanbehang (RAL 9002), witte binnendeuren met paneelverdeling en een wit geschilderde trap.
Indeling
Begane grond
Via de entree aan de zijkant van de woning kom je binnen in de hal met een open verbinding naar zowel de woonkamer als de woonkeuken. De centraal gesitueerde tussenhal/bijkeuken is praktisch ingericht en voorzien van een separaat toilet, ruimte voor wasmachine/droger en de technische installatie en is afsluitbaar middels schuifdeuren.
De tuingerichte woonkeuken ligt in het achterdeel van de woning en is een echte blikvanger: met een vide van bijna 6 meter hoog, dakramen en openslaande deuren naar de tuin. De moderne keuken van IKEA is uitgevoerd in groen met een zwart composieten werkblad en is voorzien van inbouwapparatuur zoals een inductiekookplaat, combi-oven, koel-vriescombinatie en vaatwasser.
De ruime straatgerichte woonkamer (ca. 42 m²) heeft grote raampartijen die zorgen voor veel lichtinval en als gevolg van de open structuur is er ook vanuit de woonkamer zicht op de achtertuin.
Eerste verdieping
De open structuur wordt ook voortgezet op de verdieping, vanaf de overloop is er weer connectie met de hal/gang in de woning. De badkamer die gesitueerd is in de centrale kolom van het huis is stijlvol ingericht in tinten van zand, wit en mintgroen en uitgerust met een ruime inloopdouche, ligbad, wastafelmeubel en toilet. Een bijzonder detail is het raam met doorkijk naar de vide, dat zorgt voor extra licht en ruimtelijkheid.
De twee slaapkamers (ca. 14 en 16 m²) bevinden zich aan de voorzijde en hebben hoge plafonds en dakramen aan de voorkant.
Buitenruimte
Achter de woning ligt een ruime, zonnige tuin op het noorden, gescheiden van het achterdeel door een mandelig pad. De totale diepte is ca. 50 meter! Als gevolg van het feit dat de tuin nog dient te worden aangelegd zijn er nog volop mogelijkheden voor inrichting; groen of stenen, veranda of vijver, gazon of siertuin, aan jou de keuze! Er is tevens voldoende mogelijkheid voor parkeergelegenheid op eigen terrein. Het achterste deel van de tuin grenst aan een groenstrook met bomen en weilanden en biedt uitzicht op de molen van Loppersum – een uniek en rustgevend uitzicht. In het voorste gedeelte van de tuin is een berkenboom bewaard gebleven welke direct dienst kan doen als natuurlijke parasol. De tuin is een fraaie plek om te ontspannen of te spelen.
Bijzonderheden
• Bouwjaar 2024/2025 (bouwbedrijf Dijkstra Draisma)
• Woonoppervlakte ca. 133 m²
• Perceeloppervlakte 508 m²
• Gasloos, energielabel A+++
• Vloerverwarming op de begane grond, warmtepomp en zonnepanelen
• Moderne keuken met composieten werkblad en complete inbouwapparatuur
• Luxe badkamer met ligbad, toilet, wastafelmeubel en inloopdouche
• Parkeergelegenheid op eigen terrein
• Gelegen in beschermd dorpsgezicht met fraaie historische omgeving
• Sfeerimpressies in de presentatie geven een beeld van de mogelijk afwerking
Een unieke kans om nieuwbouw te combineren met karakter en historie in het hart van Loppersum. Maak kennis met deze moderne, duurzame woning met verrassend veel licht en ruimte — een plek waar oud en nieuw in perfecte harmonie samenkomen.
Wil je de sfeer zelf ervaren? Riant Makelaars laat je deze bijzondere woning graag zien.
Over dit object
Overdracht
| Status | beschikbaar |
|---|---|
| Prijs | € 435.000 k.k. |
Bouw
| Bouwjaar | 2024 |
|---|---|
| Bouwvorm | bestaande bouw |
| Type Object | Woonhuis |
| Hoofdfunctie | Woonruimte |
Indeling
| Woonoppervlakte | 133 m² |
|---|---|
| Perceeloppervlakte | 518 m² |
| Woning Inhoud | 492 m³ |
| Kamers | 4 (2 slaapkamers) |
Energie
| Energielabel | A+++ |
|---|





























































































