
Noorderkroon 7
Roden
contact met
Bruining en De Reus
| 0594 55 43 55 | |
| leek@bruiningdereus.nl | |
| 06 8281 0106 | |
| Boveneind 20, 9351 AP Leek | |
| bruiningdereus.nl |
Rustig en gelijkvloers wonen met verrassend veel buitenruimte!
In een rustige woonomgeving in Roden staat deze functioneel ingedeelde bungalow met een gezellige woonkamer en open keuken, twee slaapkamers, van binnenuit bereikbare garage, carport en meerdere praktische bijgebouwen waaronder een extra berging en tuinkas. Daarnaast beschikt de woning over verschillende overkappingen, waardoor er altijd een beschutte plek rondom de woning te vinden is. De woning verkeerd in keurige staat van onderhoud en is rondom voorzien van kunststof kozijnen met HR++ beglazing.
Indeling
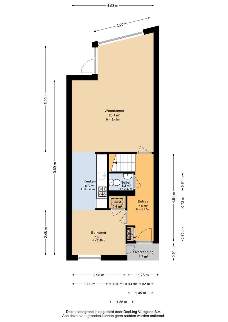
Via de entree komt u in de centrale hal van de woning. Vanuit hier zijn onder andere de badkamer, bijkeuken en de living bereikbaar.
De living van circa 40 m² is een prettige leefruimte met voldoende plaats voor een comfortabele zithoek en een eethoek. De ruimte vormt het hart van de woning en staat in open verbinding met de keuken. De keurige keuken heeft een natuurstenen werkblad, biedt voldoende werk- en kastruimte en is voorzien van 5-pits gaskookplaat, afzuigkap, oven en koelkast. Vanuit de keuken geeft de schuifpui direct toegang tot de tuin.
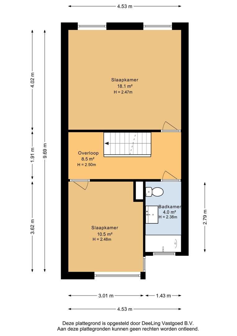
De woning beschikt over twee goed bemeten kamers van circa 12 en 15 m². De tweede kamer is naast slaapkamer ook uitstekend geschikt als werk-, hobby- of logeerkamer.
De bijkeuken (ca. 8 m²) biedt ruimte voor witgoed en extra bergruimte, ook is er vanuit hier toegang tot de badkamer (ca. 3,3 m²) welke compact maar functioneel ingericht.
Vanuit de bijkeuken is er toegang tot enerzijds de tuin en anderzijds de garage van circa 13 m².
Buitenruimte
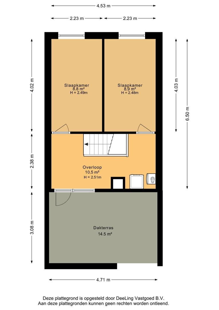
De woning staat op een ruim perceel van 606 m² en beschikt over een prachtige groene tuin met veel privacy. Dankzij het aanwezige groen en de beschutte ligging is het hier heerlijk rustig genieten van het buitenleven. Daarnaast zijn er meerdere bergingen aanwezig, waaronder een vrijstaande berging van circa 8,6 m². Ideaal voor fietsen, gereedschap of hobbyruimte.
Rondom de woning zijn bovendien meerdere overkappingen aanwezig. Deze bieden beschutting en extra praktische ruimte voor opslag of een fijne zitplek buiten.
Omgeving
De woning ligt in Roden, een levendig brinkdorp met een goed voorzieningenniveau. Winkels, scholen en sportvoorzieningen zijn in de nabijheid aanwezig. Daarnaast ligt de stad Groningen op korte afstand en is goed bereikbaar.
Voor zowel de dagelijkse boodschappen als uitgebreid winkelen kunt u uitstekend terecht in het centrum van Roden. Het gezellige winkelhart biedt een gevarieerd aanbod aan winkels en is compact, goed te belopen en gemakkelijk bereikbaar. Daarnaast ligt de natuur letterlijk om de hoek: bossen, vennen en fraaie landgoederen bevinden zich op korte afstand van het centrum. Via mooie wandel- en fietspaden kunt u volop genieten van de groene en rustige omgeving.
Bijzonderheden:
- Perceel 606 m²
- Rondom kunststof kozijnen
- Volledig geïsoleerd
- Energielabel B
- 7 zonnepanelen (2023)
- Verwarming middels CV-combiketel Remeha (2018)
- Elektra aansluiting t.b.v. inductiekookplaat reeds aanwezig.
- Garage van binnenuit bereikbaar en voorzien van elektrische deur
- Oprit ook geschikt gemaakt voor 'stallen' van een camper
- Bijdrage 'De Noorderkroon" €35,- per maand i.v.m. onderhoud gemeenschappelijke voorzieningen
Wilt u genieten van het gemak van gelijkvloers wonen, maar hecht u nog aan de ruimte en privacy van een eigen woning met tuin? Dan is deze bungalow absoluut het bekijken waard.
Wilt u een bezichtiging?
Neem dan contact op met ons kantoor. Wij laten u deze woning aan de Noorderkroon 7 in Roden graag persoonlijk zien.
In een rustige woonomgeving in Roden staat deze functioneel ingedeelde bungalow met een gezellige woonkamer en open keuken, twee slaapkamers, van binnenuit bereikbare garage, carport en meerdere praktische bijgebouwen waaronder een extra berging en tuinkas. Daarnaast beschikt de woning over verschillende overkappingen, waardoor er altijd een beschutte plek rondom de woning te vinden is. De woning verkeerd in keurige staat van onderhoud en is rondom voorzien van kunststof kozijnen met HR++ beglazing.
Indeling
Via de entree komt u in de centrale hal van de woning. Vanuit hier zijn onder andere de badkamer, bijkeuken en de living bereikbaar.
De living van circa 40 m² is een prettige leefruimte met voldoende plaats voor een comfortabele zithoek en een eethoek. De ruimte vormt het hart van de woning en staat in open verbinding met de keuken. De keurige keuken heeft een natuurstenen werkblad, biedt voldoende werk- en kastruimte en is voorzien van 5-pits gaskookplaat, afzuigkap, oven en koelkast. Vanuit de keuken geeft de schuifpui direct toegang tot de tuin.
De woning beschikt over twee goed bemeten kamers van circa 12 en 15 m². De tweede kamer is naast slaapkamer ook uitstekend geschikt als werk-, hobby- of logeerkamer.
De bijkeuken (ca. 8 m²) biedt ruimte voor witgoed en extra bergruimte, ook is er vanuit hier toegang tot de badkamer (ca. 3,3 m²) welke compact maar functioneel ingericht.
Vanuit de bijkeuken is er toegang tot enerzijds de tuin en anderzijds de garage van circa 13 m².
Buitenruimte
De woning staat op een ruim perceel van 606 m² en beschikt over een prachtige groene tuin met veel privacy. Dankzij het aanwezige groen en de beschutte ligging is het hier heerlijk rustig genieten van het buitenleven. Daarnaast zijn er meerdere bergingen aanwezig, waaronder een vrijstaande berging van circa 8,6 m². Ideaal voor fietsen, gereedschap of hobbyruimte.
Rondom de woning zijn bovendien meerdere overkappingen aanwezig. Deze bieden beschutting en extra praktische ruimte voor opslag of een fijne zitplek buiten.
Omgeving
De woning ligt in Roden, een levendig brinkdorp met een goed voorzieningenniveau. Winkels, scholen en sportvoorzieningen zijn in de nabijheid aanwezig. Daarnaast ligt de stad Groningen op korte afstand en is goed bereikbaar.
Voor zowel de dagelijkse boodschappen als uitgebreid winkelen kunt u uitstekend terecht in het centrum van Roden. Het gezellige winkelhart biedt een gevarieerd aanbod aan winkels en is compact, goed te belopen en gemakkelijk bereikbaar. Daarnaast ligt de natuur letterlijk om de hoek: bossen, vennen en fraaie landgoederen bevinden zich op korte afstand van het centrum. Via mooie wandel- en fietspaden kunt u volop genieten van de groene en rustige omgeving.
Bijzonderheden:
- Perceel 606 m²
- Rondom kunststof kozijnen
- Volledig geïsoleerd
- Energielabel B
- 7 zonnepanelen (2023)
- Verwarming middels CV-combiketel Remeha (2018)
- Elektra aansluiting t.b.v. inductiekookplaat reeds aanwezig.
- Garage van binnenuit bereikbaar en voorzien van elektrische deur
- Oprit ook geschikt gemaakt voor 'stallen' van een camper
- Bijdrage 'De Noorderkroon" €35,- per maand i.v.m. onderhoud gemeenschappelijke voorzieningen
Wilt u genieten van het gemak van gelijkvloers wonen, maar hecht u nog aan de ruimte en privacy van een eigen woning met tuin? Dan is deze bungalow absoluut het bekijken waard.
Wilt u een bezichtiging?
Neem dan contact op met ons kantoor. Wij laten u deze woning aan de Noorderkroon 7 in Roden graag persoonlijk zien.
Over dit object
Overdracht
| Status | beschikbaar |
|---|---|
| Prijs | € 425.000 k.k. |
Bouw
| Bouwjaar | 1969 |
|---|---|
| Bouwvorm | bestaande bouw |
| Type Object | Woonhuis |
| Hoofdfunctie | Woonruimte |
Indeling
| Woonoppervlakte | 91 m² |
|---|---|
| Perceeloppervlakte | 606 m² |
| Woning Inhoud | 418 m³ |
| Kamers | 3 (2 slaapkamers) |
Energie
| Energielabel | B |
|---|


