
Kleine Bergstraat 36
Groningen
contact met
Riant Makelaars Groningen
| 050 850 33 56 | |
| groningen@riantmakelaars.nl | |
| 050 850 33 56 | |
| Hereweg 29, 9725 AA Groningen |
Op een toplocatie staat deze nette en charmante benedenwoning met twee slaapkamers en een leuke stadstuin op het zuidwesten. De woning is gemoderniseerd met behoud van de authentieke elementen zoals de schouw en paneeldeuren. Hierdoor ademt de woning sfeer en het is hier ook heerlijk thuiskomen!
De locatie is geweldig, namelijk met het Noorderplantsoen om de hoek! Voorzieningen als winkels en eetgelegenheden vind je op loopafstand en met ca. 5 minuten fietsen sta je op de Grote Markt. De binnenstad van Groningen is ook lopend goed te bereiken. Daarnaast ben je met ca. 5 minuten autorijden op de ringweg van Groningen.
INDELING
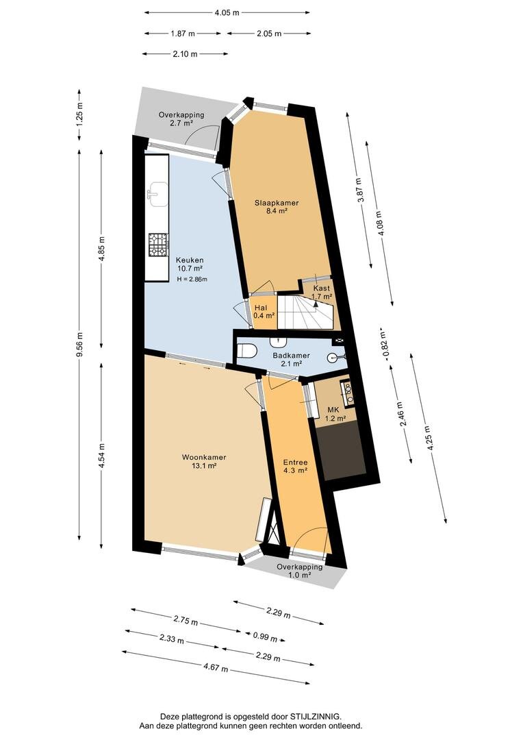
Begane grond: entree/hal, moderne badkamer (2016) met douche, wastafel en toilet, lichte woonkamer (ca. 13 m²) met een schouw. Door de mooie paneeldeuren wordt de woonkamer gescheiden van de keuken (ca. 11 m²) met deur naar de tuin. De nette keukenopstelling (2016) heeft een 4-pits gaskookplaat, afzuigkap, oven en vaatwasser. De slaapkamer beneden is ca. 8 m² en heeft een vaste kast.
Eerste verdieping: slaapkamer van ca. 8 m² met vaste kast.
De achtertuin is gelegen op het zonnige zuidwesten en dankzij de beschutte ligging kun je hier heerlijk zitten. Dineren in de avondzon behoort dan ook tot de mogelijkheden!
GOED OM TE WETEN
- leuke jaren '30 benedenwoning op toplocatie;
- voorzien van een energielabel B;
- badkamer en keuken in 2016 vernieuwd;
- dakbedekking in 2016 vervangen;
- voorzien van HR++ beglazing;
- woning is in 2022 buitenom geschilderd;
- in 2025 is de woning van binnen geschilderd;
- VvE wordt momenteel ingeschreven in de KvK;
- niet zelfbewoningsclausule en ouderdomsclausule zijn van toepassing;
- aanvaarding in overleg - kan snel.
De locatie is geweldig, namelijk met het Noorderplantsoen om de hoek! Voorzieningen als winkels en eetgelegenheden vind je op loopafstand en met ca. 5 minuten fietsen sta je op de Grote Markt. De binnenstad van Groningen is ook lopend goed te bereiken. Daarnaast ben je met ca. 5 minuten autorijden op de ringweg van Groningen.
INDELING
Begane grond: entree/hal, moderne badkamer (2016) met douche, wastafel en toilet, lichte woonkamer (ca. 13 m²) met een schouw. Door de mooie paneeldeuren wordt de woonkamer gescheiden van de keuken (ca. 11 m²) met deur naar de tuin. De nette keukenopstelling (2016) heeft een 4-pits gaskookplaat, afzuigkap, oven en vaatwasser. De slaapkamer beneden is ca. 8 m² en heeft een vaste kast.
Eerste verdieping: slaapkamer van ca. 8 m² met vaste kast.
De achtertuin is gelegen op het zonnige zuidwesten en dankzij de beschutte ligging kun je hier heerlijk zitten. Dineren in de avondzon behoort dan ook tot de mogelijkheden!
GOED OM TE WETEN
- leuke jaren '30 benedenwoning op toplocatie;
- voorzien van een energielabel B;
- badkamer en keuken in 2016 vernieuwd;
- dakbedekking in 2016 vervangen;
- voorzien van HR++ beglazing;
- woning is in 2022 buitenom geschilderd;
- in 2025 is de woning van binnen geschilderd;
- VvE wordt momenteel ingeschreven in de KvK;
- niet zelfbewoningsclausule en ouderdomsclausule zijn van toepassing;
- aanvaarding in overleg - kan snel.
Over dit object
Overdracht
| Status | verkocht |
|---|---|
| Prijs | € 235.000 k.k. |
Bouw
| Bouwjaar | 1936 |
|---|---|
| Bouwvorm | bestaande bouw |
| Type Object | Appartement |
| Hoofdfunctie | Woonruimte |
Indeling
| Woonoppervlakte | 55 m² |
|---|---|
| Woning Inhoud | 225 m³ |
| Kamers | 3 (2 slaapkamers) |
Energie
| Energielabel | B |
|---|






























































































