
J.H. Egenbergerstraat 35
Groningen
contact met
Riant Makelaars Groningen
| 050 850 33 56 | |
| info@riantmakelaars.nl | |
| 050 850 33 56 | |
| Hereweg 29, 9725 AA Groningen |
De ideale gezinswoning met vier slaapkamers, een zonnige achtertuin en een garagebox. Deze ruime woning is goed onderhouden en leuk gemoderniseerd; je kunt er zo in! De uitbouw aan de zijkant heeft ervoor gezorgd dat er een mooie woonkeuken is ontstaan. Hier kun je met het hele gezin heerlijk dineren. De achtertuin is nog opnieuw aangelegd en geeft een oase van rust. Tot laat op de dag is hier zon en mocht het minder weer worden, kun je heerlijk onder de overkapping zitten. Zet de barbecue maar aan!
De woning is gelegen in een kindvriendelijke buurt in het dorp Hoogkerk, met verschillende speeltuintjes op loopafstand. Met alle voorzieningen in de buurt is het hier prettig wonen en mocht je naar de stad willen dan zit ook de bushalte om de hoek. Daarnaast is er een goede verbinding met de A7 en A28. Op loopafstand ligt de Ruskenveense plas, waar je kunt wandelen en zomers lekker kunt zwemmen. Het prachtige natuurgebied de Onlanden is goed met de fiets te bereiken. Hier kun je een fijne fietstocht maken of wandelen in de natuur.
INDELING
Begane grond: entree/hal, sfeervolle straatgerichte woonkamer van ca. 34 m² met een open haard en een tuingerichte eethoek met deur naar de achtertuin en open verbinding naar de gezellige woonkeuken van ca. 13 m² met een prachtige landelijke keuken. De keukenopstelling beschikt over een 5-pits gaskookplaat, afzuigkap, oven, koelkast, vriezer en vaatwasser. Aan de zijkant bevindt zich nog een bijkeuken met wasmachineaansluiting. De tussenhal geeft toegang tot de toiletruimte en trapopgang.
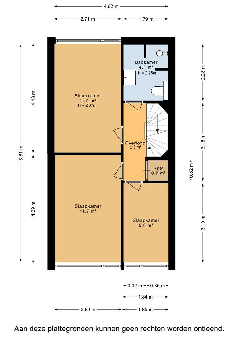
Eerste verdieping: overloop met vaste kast, drie slaapkamers van ca. 6, 11 en 12 m² en een nette badkamer met een inloopdouche, wastafelmeubel en tweede toilet.
Tweede verdieping: overloop met bergruimte en cv-opstelling, slaapkamer van ca. 10 m².
BUITENRUIMTE
De achtertuin is ca. 54 m² en gelegen op het zuidwesten. Hier kun je tot laat op de dag genieten van de zon, bijvoorbeeld na een drukke werkdag. Dankzij de overkapping kun je ook met minder weer lekker in de tuin zitten.
En direct grenzend aan de tuin bevindt zich een garagebox die ook dienst kan doen als tuinberging, aangezien er aan de voorzijde van de woning al plek is voor een auto.
De garagebox is voorzien van stroom.
GOED OM TE WETEN
- instapklaar woonhuis met zonnige tuin;
- eigen garagebox aanwezig;
- parkeren voor de deur op eigen terrein;
- voorzien van 13 zonnepanelen (2022);
- vloeren en dak na-geïsoleerd;
- voorzien van dubbele beglazing;
- energielabel A;
- cv-ketel Intergas 2019 (eigendom);
- aanvaarding in overleg.
De woning is gelegen in een kindvriendelijke buurt in het dorp Hoogkerk, met verschillende speeltuintjes op loopafstand. Met alle voorzieningen in de buurt is het hier prettig wonen en mocht je naar de stad willen dan zit ook de bushalte om de hoek. Daarnaast is er een goede verbinding met de A7 en A28. Op loopafstand ligt de Ruskenveense plas, waar je kunt wandelen en zomers lekker kunt zwemmen. Het prachtige natuurgebied de Onlanden is goed met de fiets te bereiken. Hier kun je een fijne fietstocht maken of wandelen in de natuur.
INDELING
Begane grond: entree/hal, sfeervolle straatgerichte woonkamer van ca. 34 m² met een open haard en een tuingerichte eethoek met deur naar de achtertuin en open verbinding naar de gezellige woonkeuken van ca. 13 m² met een prachtige landelijke keuken. De keukenopstelling beschikt over een 5-pits gaskookplaat, afzuigkap, oven, koelkast, vriezer en vaatwasser. Aan de zijkant bevindt zich nog een bijkeuken met wasmachineaansluiting. De tussenhal geeft toegang tot de toiletruimte en trapopgang.
Eerste verdieping: overloop met vaste kast, drie slaapkamers van ca. 6, 11 en 12 m² en een nette badkamer met een inloopdouche, wastafelmeubel en tweede toilet.
Tweede verdieping: overloop met bergruimte en cv-opstelling, slaapkamer van ca. 10 m².
BUITENRUIMTE
De achtertuin is ca. 54 m² en gelegen op het zuidwesten. Hier kun je tot laat op de dag genieten van de zon, bijvoorbeeld na een drukke werkdag. Dankzij de overkapping kun je ook met minder weer lekker in de tuin zitten.
En direct grenzend aan de tuin bevindt zich een garagebox die ook dienst kan doen als tuinberging, aangezien er aan de voorzijde van de woning al plek is voor een auto.
De garagebox is voorzien van stroom.
GOED OM TE WETEN
- instapklaar woonhuis met zonnige tuin;
- eigen garagebox aanwezig;
- parkeren voor de deur op eigen terrein;
- voorzien van 13 zonnepanelen (2022);
- vloeren en dak na-geïsoleerd;
- voorzien van dubbele beglazing;
- energielabel A;
- cv-ketel Intergas 2019 (eigendom);
- aanvaarding in overleg.
Over dit object
Overdracht
| Status | verkocht |
|---|---|
| Prijs | € 335.000 k.k. |
Bouw
| Bouwjaar | 1970 |
|---|---|
| Bouwvorm | bestaande bouw |
| Type Object | Woonhuis |
| Hoofdfunctie | Woonruimte |
Indeling
| Woonoppervlakte | 119 m² |
|---|---|
| Perceeloppervlakte | 206 m² |
| Woning Inhoud | 433 m³ |
| Kamers | 5 (4 slaapkamers) |
Energie
| Energielabel | A |
|---|
























































































































