
Ifftemalaan 8
Leek
contact met
Bruining en De Reus
| 0594 55 43 55 | |
| leek@bruiningdereus.nl | |
| 06 8281 0106 | |
| Boveneind 20, 9351 AP Leek | |
| bruiningdereus.nl |
Perfecte starterswoning
Gelegen in rustige woonwijk van Leek nabij scholen, winkels en diverse voorzieningen, biedt deze tussenwoning een ideale startmogelijkheid.
De locatie is uitstekend, met het centrum van Leek op loop- en fietsafstand. Bovendien zijn zowel de steden Groningen als Drachten binnen 15 minuten met de auto bereikbaar.
INDELING
Begane grond: entree/hal, meterkast, toiletruimte, woonkamer met half open keuken (ca. 28 m²) voorzien van diverse inbouwapparatuur;
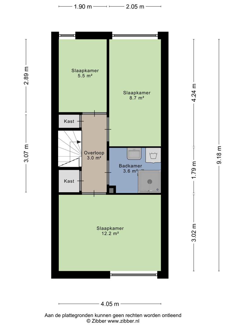
1e verdieping: overloop, 3 slaapkamers (ca. 12 m², 9 m² en 6 m²), badkamer met douche en vaste wastafel;
Bijgebouwen:
Vrijstaande berging/schuur
Bijzonderheden:
- woonoppervlakte ca.73m²;
- perceel ca. 95 m²;
- centrale verwarming aanwezig (lease ketel bouwjaar 2015);
- gelegen in kindvriendelijke buurt aan rustig hofje, nabij voorzieningen;
- grotendeels voorzien van kunststofkozijnen isolerende beglazing;
Aanvaarding: in overleg
Tip: Bekijk ook de video van deze woning!
Heeft u interesse in deze woning? Neem dan vrijblijvend contact op met Bruining en De Reus Makelaars om een bezichtiging te plannen!
Gelegen in rustige woonwijk van Leek nabij scholen, winkels en diverse voorzieningen, biedt deze tussenwoning een ideale startmogelijkheid.
De locatie is uitstekend, met het centrum van Leek op loop- en fietsafstand. Bovendien zijn zowel de steden Groningen als Drachten binnen 15 minuten met de auto bereikbaar.
INDELING
Begane grond: entree/hal, meterkast, toiletruimte, woonkamer met half open keuken (ca. 28 m²) voorzien van diverse inbouwapparatuur;
1e verdieping: overloop, 3 slaapkamers (ca. 12 m², 9 m² en 6 m²), badkamer met douche en vaste wastafel;
Bijgebouwen:
Vrijstaande berging/schuur
Bijzonderheden:
- woonoppervlakte ca.73m²;
- perceel ca. 95 m²;
- centrale verwarming aanwezig (lease ketel bouwjaar 2015);
- gelegen in kindvriendelijke buurt aan rustig hofje, nabij voorzieningen;
- grotendeels voorzien van kunststofkozijnen isolerende beglazing;
Aanvaarding: in overleg
Tip: Bekijk ook de video van deze woning!
Heeft u interesse in deze woning? Neem dan vrijblijvend contact op met Bruining en De Reus Makelaars om een bezichtiging te plannen!
Over dit object
Overdracht
| Status | verkocht |
|---|---|
| Prijs | € 237.500 k.k. |
Bouw
| Bouwjaar | 1977 |
|---|---|
| Bouwvorm | bestaande bouw |
| Type Object | Woonhuis |
| Hoofdfunctie | Woonruimte |
Indeling
| Woonoppervlakte | 73 m² |
|---|---|
| Perceeloppervlakte | 95 m² |
| Woning Inhoud | 250 m³ |
| Kamers | 4 (3 slaapkamers) |
Energie
| Energielabel | B |
|---|



































































