
Het Roege Pad 10
Groningen
contact met 
Riant Makelaars Groningen
| 050 850 33 56 | |
| info@riantmakelaars.nl | |
| 050 850 33 56 | |
| Hereweg 29, 9725 AA Groningen | 
Modern en energiezuinig wonen in deze unieke split-level woning aan Het Roege Bos! Deze goed onderhouden geschakelde woning heeft drie slaapkamers, een inpandige garage en veel buitenruimte dankzij twee dakterrassen en een tuin. De woning is in 2022 gerenoveerd met een luxe badkamer en toilet. De woonkamer heeft fantastische raampartijen waardoor er altijd een fraaie lichtinval is. Met liefst 18 zonnepanelen en een energielabel A kun je hier energiezuinig wonen.
Wonen aan Het Roege Bos! De woning is gelegen in een doodlopende straat met het bos in de achtertuin, waar je heerlijk kunt wandelen. Alle voorzieningen vind je in de nabijgelegen woonwijk Vinkhuizen en het centrum van Groningen bevindt zich op een kwartiertje fietsen. Daarnaast ben je met de auto binnen enkele minuten op de ringweg van Groningen.
INDELING
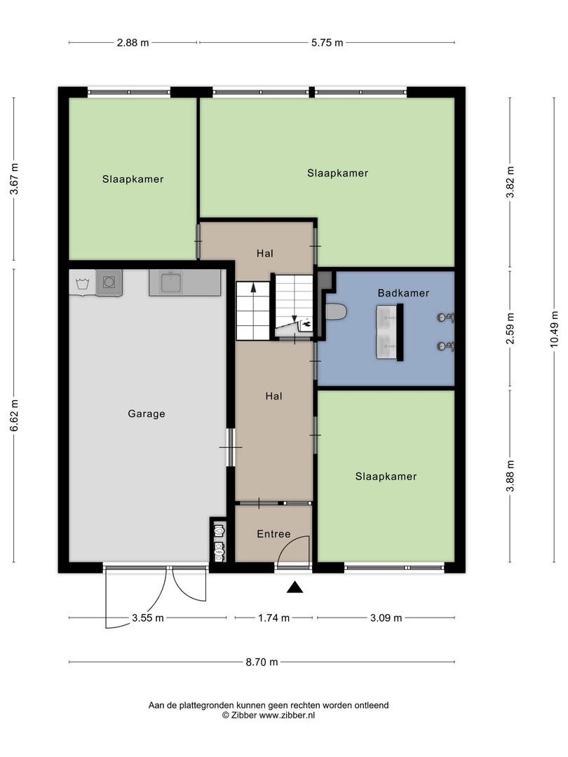
Eerste woonlaag: ruime entree/tochtportaal met meterkast, hal met toegang tot de inpandige garage van ca. 24 m² voorzien van water, elektra, verwarming, keukenblokje met kraan, aansluiting voor wasmachine en droger. Op deze woonlaag bevindt zich eveneens een slaapkamer van ca. 12 m² en de luxe badkamer (2022) met inloopdouche met twee douchekoppen, wastafelmeubel met dubbele wastafel en een toilet.
Tweede woonlaag: overloop, twee slaapkamers van ca. 19 en 12 m², waarbij de grote slaapkamer terug gebracht kan worden naar twee slaapkamers. De grote slaapkamer beschikt over een grote vaste kast met schuifdeuren en beide slaapkamers hebben uitzicht over de tuin en "Het Roege Bos". Tevens zijn de ramen voorzien van rolluiken.
Derde woonlaag: heerlijk lichte en zonnige woonkamer met vloerverwarming van ca. 32 m², met een plafondhoogte van bijna 4 meter! Hierdoor zijn er prachtige raampartijen. De woonkamer heeft een schuifpui naar het riante dakterras van ca. 20 m². Vanuit de woonkamer heb je middels een halletje toegang tot de moderne toiletruimte (2022).
Vierde woonlaag: lichte woonkeuken van ca. 20 m² met uitzicht over de woonkamer en "Het Roege Bos". De keukenopstelling is in 2018 vervangen en voorzien van een inductiekookplaat, afzuigkap, koelkast, vriezer, oven, vaatwasser en heetwaterkraan. Vanuit de keuken heb je toegang tot het andere dakterras. De dakterrassen zijn onderling verbonden door een luie houten trap. Via een buitentrap ga je naar de beschutte, zonnige achtertuin gelegen op het westen. Hier kun je tot laat op de dag genieten van de zon!
GOED OM TE WETEN
- unieke, lichte woning met een speelse indeling;
- ruime inpandige garage, van alle gemakken voorzien;
- ruime oprit met plek voor twee auto's;
- veel buitenruimte door twee dakterrassen en een achtertuin;
- gelegen op toplocatie, aan Het Roege Bos;
- schilderwerk buitenom in 2023 gedaan;
- badkamer en toilet in 2022 vernieuwd;
- keuken in 2018 vernieuwd;
- elektrisch bedienbare zonneschermen bij de woonkamer en de keuken
- mechanische installatie vernieuwd;
- cv-ketel Remeha 2019 (eigendom);
- voorzien van 18 zonnepanelen;
- waterontharder aanwezig;
- dak in 2019 vervangen;
- gebouwd onder GIW-garantie;
- aanvaarding in overleg.
Wonen aan Het Roege Bos! De woning is gelegen in een doodlopende straat met het bos in de achtertuin, waar je heerlijk kunt wandelen. Alle voorzieningen vind je in de nabijgelegen woonwijk Vinkhuizen en het centrum van Groningen bevindt zich op een kwartiertje fietsen. Daarnaast ben je met de auto binnen enkele minuten op de ringweg van Groningen.
INDELING
Eerste woonlaag: ruime entree/tochtportaal met meterkast, hal met toegang tot de inpandige garage van ca. 24 m² voorzien van water, elektra, verwarming, keukenblokje met kraan, aansluiting voor wasmachine en droger. Op deze woonlaag bevindt zich eveneens een slaapkamer van ca. 12 m² en de luxe badkamer (2022) met inloopdouche met twee douchekoppen, wastafelmeubel met dubbele wastafel en een toilet.
Tweede woonlaag: overloop, twee slaapkamers van ca. 19 en 12 m², waarbij de grote slaapkamer terug gebracht kan worden naar twee slaapkamers. De grote slaapkamer beschikt over een grote vaste kast met schuifdeuren en beide slaapkamers hebben uitzicht over de tuin en "Het Roege Bos". Tevens zijn de ramen voorzien van rolluiken.
Derde woonlaag: heerlijk lichte en zonnige woonkamer met vloerverwarming van ca. 32 m², met een plafondhoogte van bijna 4 meter! Hierdoor zijn er prachtige raampartijen. De woonkamer heeft een schuifpui naar het riante dakterras van ca. 20 m². Vanuit de woonkamer heb je middels een halletje toegang tot de moderne toiletruimte (2022).
Vierde woonlaag: lichte woonkeuken van ca. 20 m² met uitzicht over de woonkamer en "Het Roege Bos". De keukenopstelling is in 2018 vervangen en voorzien van een inductiekookplaat, afzuigkap, koelkast, vriezer, oven, vaatwasser en heetwaterkraan. Vanuit de keuken heb je toegang tot het andere dakterras. De dakterrassen zijn onderling verbonden door een luie houten trap. Via een buitentrap ga je naar de beschutte, zonnige achtertuin gelegen op het westen. Hier kun je tot laat op de dag genieten van de zon!
GOED OM TE WETEN
- unieke, lichte woning met een speelse indeling;
- ruime inpandige garage, van alle gemakken voorzien;
- ruime oprit met plek voor twee auto's;
- veel buitenruimte door twee dakterrassen en een achtertuin;
- gelegen op toplocatie, aan Het Roege Bos;
- schilderwerk buitenom in 2023 gedaan;
- badkamer en toilet in 2022 vernieuwd;
- keuken in 2018 vernieuwd;
- elektrisch bedienbare zonneschermen bij de woonkamer en de keuken
- mechanische installatie vernieuwd;
- cv-ketel Remeha 2019 (eigendom);
- voorzien van 18 zonnepanelen;
- waterontharder aanwezig;
- dak in 2019 vervangen;
- gebouwd onder GIW-garantie;
- aanvaarding in overleg.
Over dit object
Overdracht
| Status | verkocht | 
|---|---|
| Prijs | € 549.000 k.k. | 
Bouw
| Bouwjaar | 2001 | 
|---|---|
| Bouwvorm | bestaande bouw | 
| Type Object | Woonhuis | 
| Hoofdfunctie | Woonruimte | 
Indeling
| Woonoppervlakte | 127 m² | 
|---|---|
| Perceeloppervlakte | 206 m² | 
| Woning Inhoud | 600 m³ | 
| Kamers | 5 (3 slaapkamers) | 
Energie
| Energielabel | A | 
|---|






















































































