
Hereweg 92 a
Groningen
contact met 
Riant Makelaars Groningen
| 050 850 33 56 | |
| info@riantmakelaars.nl | |
| 050 850 33 56 | |
| Hereweg 29, 9725 AA Groningen | 
Ideaal woonhuis voor starters en tevens de mogelijkheid voor dubbele bewoning aan de Hereweg 92a & 92b in Groningen.
Sfeervolle en lichte 2-onder-1-kapwoning met een speelse indeling en een buitenplaats/achtertuin. De woning heeft twee huisnummers en beschikt over twee badkamers, twee toiletten en drie slaapkamers, waarvan één met een keukenblok. Hierdoor is het mogelijk om apart van elkaar te leven of juist de ruimte met keukenblok te gebruiken voor werk- en/of hobby.
De ligging is ideaal ten opzichte van winkels, het centraal station en de binnenstad van Groningen. Alles is op loopafstand gelegen. Daarnaast wordt het Zuiderplantsoen aangelegd, waar je kunt relaxen, picknicken, sporten of gewoon lekker wandelen. Mocht je de auto pakken ben je binnen vijf minuten op de ringweg van Groningen.
INDELING
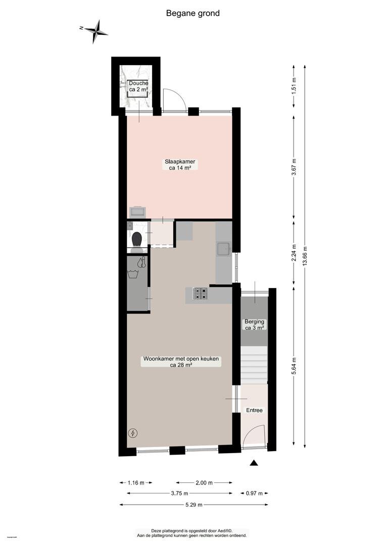
Begane grond: entree/hal met toegang tot de lichte, sfeervolle woonkamer met open keuken (samen ca. 28 m²). De woonkamer heeft mooie authentieke vensterbanken en hoge ramen die zorgen voor een goede lichtinval. De open keuken is voorzien van een eenvoudige keukenopstelling met een kookeiland voorzien van 4-pits gaskookplaat en afzuigkap. Hier bevindt zich ook een vaste kast met witgoedaansluiting. Een (voormalige) tussenhal geeft toegang tot het toilet en de slaapkamer van ca. 14 m² met wastafelmeubel en deur naar de binnenplaats/achtertuin. Vanuit hier bereik je ook de doucheruimte.
Eerste verdieping: overloop, (slaap)kamer aan de voorzijde van ca. 15 m² met keukenblok voorzien van 4-pits gaskookplaat, afzuigkap en vaatwasser aansluiting. Deze kamer is ook ideaal als woonkamer in te richten. De slaapkamer aan de achterzijde is ca. 11 m². Verder heeft deze verdieping nog een aparte toiletruimte en badkamer met douche, wastafel en cv-opstelling.
GOED OM TE WETEN
- de woning heeft twee huisnummers (Hereweg 92a + 92b - Groningen);
- twee cv-ketels (Intergas, installatiejaar 2018) en één aansluiting voor nutsvoorzieningen;
- sfeervolle woning met een speelse indeling;
- geschikt voor diverse mogelijkheden;
- geschikt voor dubbele bewoning;
- ideaal voor ouders met studerende kinderen;
- centraal gelegen, nabij de binnenstad van Groningen;
- kozijnen geverfd in 2023;
- woning voorzien van dubbele beglazing (HR+ glas);
- voorzien van dakisolatie (dit is niet meegenomen in het energielabel);
- niet-zelfbewoningsclausule van toepassing;
- aanvaarding in overleg, kan snel.
Sfeervolle en lichte 2-onder-1-kapwoning met een speelse indeling en een buitenplaats/achtertuin. De woning heeft twee huisnummers en beschikt over twee badkamers, twee toiletten en drie slaapkamers, waarvan één met een keukenblok. Hierdoor is het mogelijk om apart van elkaar te leven of juist de ruimte met keukenblok te gebruiken voor werk- en/of hobby.
De ligging is ideaal ten opzichte van winkels, het centraal station en de binnenstad van Groningen. Alles is op loopafstand gelegen. Daarnaast wordt het Zuiderplantsoen aangelegd, waar je kunt relaxen, picknicken, sporten of gewoon lekker wandelen. Mocht je de auto pakken ben je binnen vijf minuten op de ringweg van Groningen.
INDELING
Begane grond: entree/hal met toegang tot de lichte, sfeervolle woonkamer met open keuken (samen ca. 28 m²). De woonkamer heeft mooie authentieke vensterbanken en hoge ramen die zorgen voor een goede lichtinval. De open keuken is voorzien van een eenvoudige keukenopstelling met een kookeiland voorzien van 4-pits gaskookplaat en afzuigkap. Hier bevindt zich ook een vaste kast met witgoedaansluiting. Een (voormalige) tussenhal geeft toegang tot het toilet en de slaapkamer van ca. 14 m² met wastafelmeubel en deur naar de binnenplaats/achtertuin. Vanuit hier bereik je ook de doucheruimte.
Eerste verdieping: overloop, (slaap)kamer aan de voorzijde van ca. 15 m² met keukenblok voorzien van 4-pits gaskookplaat, afzuigkap en vaatwasser aansluiting. Deze kamer is ook ideaal als woonkamer in te richten. De slaapkamer aan de achterzijde is ca. 11 m². Verder heeft deze verdieping nog een aparte toiletruimte en badkamer met douche, wastafel en cv-opstelling.
GOED OM TE WETEN
- de woning heeft twee huisnummers (Hereweg 92a + 92b - Groningen);
- twee cv-ketels (Intergas, installatiejaar 2018) en één aansluiting voor nutsvoorzieningen;
- sfeervolle woning met een speelse indeling;
- geschikt voor diverse mogelijkheden;
- geschikt voor dubbele bewoning;
- ideaal voor ouders met studerende kinderen;
- centraal gelegen, nabij de binnenstad van Groningen;
- kozijnen geverfd in 2023;
- woning voorzien van dubbele beglazing (HR+ glas);
- voorzien van dakisolatie (dit is niet meegenomen in het energielabel);
- niet-zelfbewoningsclausule van toepassing;
- aanvaarding in overleg, kan snel.
Over dit object
Overdracht
| Status | verkocht | 
|---|---|
| Prijs | € 275.000 k.k. | 
Bouw
| Bouwjaar | 1868 | 
|---|---|
| Bouwvorm | bestaande bouw | 
| Type Object | Woonhuis | 
| Hoofdfunctie | Woonruimte | 
Indeling
| Woonoppervlakte | 88 m² | 
|---|---|
| Perceeloppervlakte | 75 m² | 
| Woning Inhoud | 350 m³ | 
| Kamers | 4 (3 slaapkamers) | 
Energie
| Energielabel | E | 
|---|


















































































