
Hereweg 86 a
Groningen
contact met
Riant Makelaars Groningen
| 050 850 33 56 | |
| info@riantmakelaars.nl | |
| 050 850 33 56 | |
| Hereweg 29, 9725 AA Groningen |
Sfeervolle en zeer goed onderhouden jaren '30 bovenwoning met drie slaapkamers en een heerlijk beschut dakterras. Het pand is ontworpen door de Groningse architect Egbert Reitsma en is lang bewoond door de dichter en godsdiensthistoricus Theo van Baaren. Kortom: dit is een charmante bovenwoning vol historie! Door de jaren heen is de woning gemoderniseerd met behoud van de fraaie authentieke elementen zoals de en-suite deuren, het glas-in-lood, de schouw in beide kamers en de mooie sierlijsten. Al met al is het hier heerlijk thuiskomen.
De ligging is top, want je kunt lopend naar de binnenstad, het Centraal Station en het nieuwe Zuiderplantsoen. Mocht je met de auto op pad willen, ben je met een minuut rijden op de ringweg van Groningen, met vrijwel direct de A7 en de A28. Alles ligt binnen handbereik
INDELING
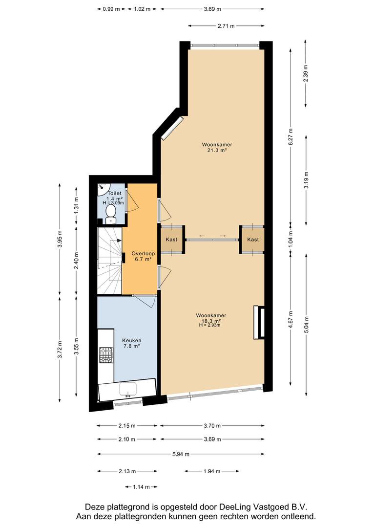
Begane grond: entree met trapopgang.
Eerste verdieping: overloop, toiletruimte, lichte woonkamer van ca. 40 m² met een mooie visgraat parketvloer en in het midden prachtige en-suite deuren met authentieke kasten. De gesloten keuken is ca. 8 m² en heeft een nette landelijke keukenopstelling met 4-pits gaskookplaat, combi-oven en koelkast.
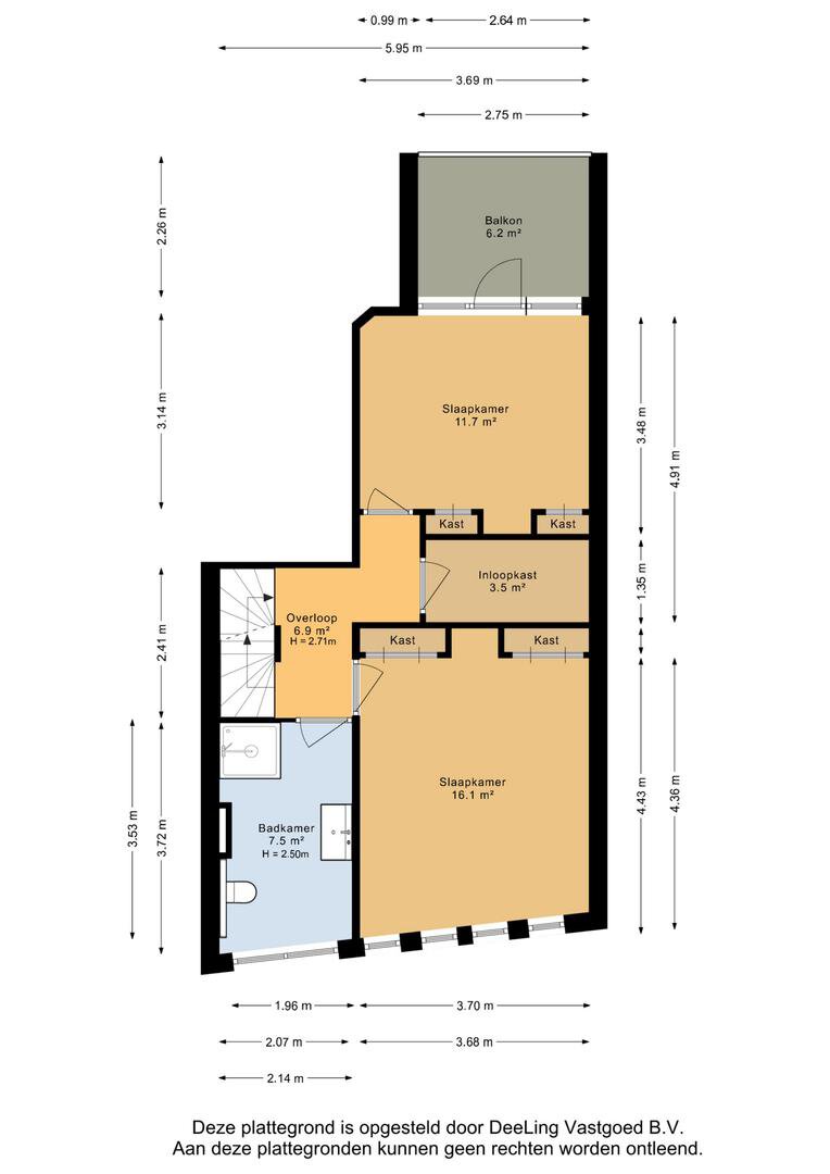
Tweede verdieping: overloop, inloopkast met wasmachineaansluiting, twee ruime slaapkamers van ca. 16 en 12 m², waarbij de slaapkamer aan de achterzijde toegang geeft tot het balkon van ca. 6 m². Hier laat de ochtendzon zich zien. Tevens hebben de slaapkamers vaste kasten. De zeer nette badkamer heeft een inloopdouche, wastafel, tweede toilet en designradiator.
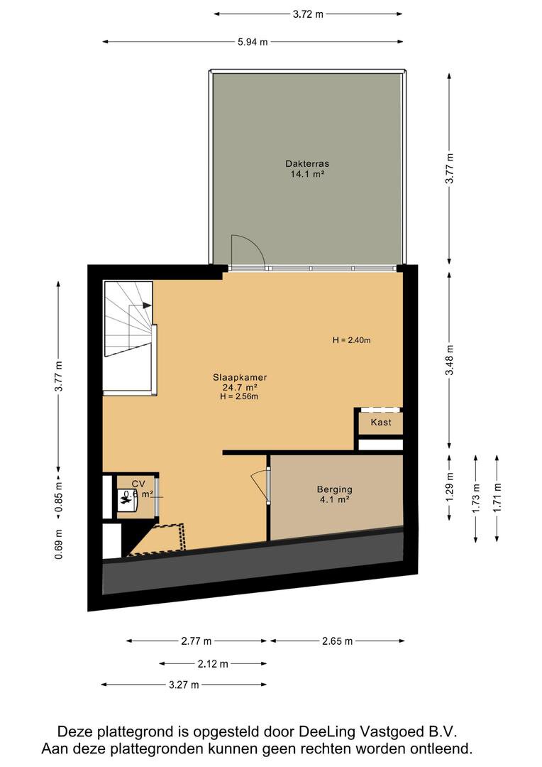
Derde verdieping: riante (slaap)kamer van ca. 25 m² met een kitchenette en toegang tot bergruimte en cv-opstelling. Vanuit hier bereik je het dakterras, waar je heerlijk beschut kan zitten met zicht op groen en het dakterras biedt de mogelijkheid om van 's ochtends tot laat in de middag van de zon te genieten.
GOED OM TE WETEN
- sfeervolle en ruime jaren '30 bovenwoning;
- prachtige Amsterdamse Schoolstijl;
- de mooie authentieke elementen vind je hier terug;
- gelegen op zeer goede locatie nabij binnenstad;
- grotendeels dubbele beglazing, deels voorzetramen;
- cv-ketel Remeha 2024;
- energielabel C;
- VvE is niet actief, wel een KvK inschrijving;
- notariskeuze is Broekema Notaris te Groningen;
- aanvaarding in overleg.
De ligging is top, want je kunt lopend naar de binnenstad, het Centraal Station en het nieuwe Zuiderplantsoen. Mocht je met de auto op pad willen, ben je met een minuut rijden op de ringweg van Groningen, met vrijwel direct de A7 en de A28. Alles ligt binnen handbereik
INDELING
Begane grond: entree met trapopgang.
Eerste verdieping: overloop, toiletruimte, lichte woonkamer van ca. 40 m² met een mooie visgraat parketvloer en in het midden prachtige en-suite deuren met authentieke kasten. De gesloten keuken is ca. 8 m² en heeft een nette landelijke keukenopstelling met 4-pits gaskookplaat, combi-oven en koelkast.
Tweede verdieping: overloop, inloopkast met wasmachineaansluiting, twee ruime slaapkamers van ca. 16 en 12 m², waarbij de slaapkamer aan de achterzijde toegang geeft tot het balkon van ca. 6 m². Hier laat de ochtendzon zich zien. Tevens hebben de slaapkamers vaste kasten. De zeer nette badkamer heeft een inloopdouche, wastafel, tweede toilet en designradiator.
Derde verdieping: riante (slaap)kamer van ca. 25 m² met een kitchenette en toegang tot bergruimte en cv-opstelling. Vanuit hier bereik je het dakterras, waar je heerlijk beschut kan zitten met zicht op groen en het dakterras biedt de mogelijkheid om van 's ochtends tot laat in de middag van de zon te genieten.
GOED OM TE WETEN
- sfeervolle en ruime jaren '30 bovenwoning;
- prachtige Amsterdamse Schoolstijl;
- de mooie authentieke elementen vind je hier terug;
- gelegen op zeer goede locatie nabij binnenstad;
- grotendeels dubbele beglazing, deels voorzetramen;
- cv-ketel Remeha 2024;
- energielabel C;
- VvE is niet actief, wel een KvK inschrijving;
- notariskeuze is Broekema Notaris te Groningen;
- aanvaarding in overleg.
Over dit object
Overdracht
| Status | verkocht |
|---|---|
| Prijs | € 450.000 k.k. |
Bouw
| Bouwjaar | 1933 |
|---|---|
| Bouwvorm | bestaande bouw |
| Type Object | Appartement |
| Hoofdfunctie | Woonruimte |
Indeling
| Woonoppervlakte | 143 m² |
|---|---|
| Woning Inhoud | 526 m³ |
| Kamers | 4 (3 slaapkamers) |
Energie
| Energielabel | C |
|---|
















































































