
H. Ridderstraat 2
Groningen
contact met
Riant Makelaars Groningen
| 050 850 33 56 | |
| info@riantmakelaars.nl | |
| 050 850 33 56 | |
| Hereweg 29, 9725 AA Groningen |
In de woonwijk Oosterhoogebrug staat deze netjes onderhouden hoekwoning met vier slaapkamers, een garage, carport en een tuin op het zonnige zuidwesten. De woning kun je nog geheel naar smaak inrichten en dankzij de uitbouw is er een (slaap)kamer op de begane grond aanwezig.
De woning staat in een groene en kindvriendelijke buurt, waarbij je het dorpse gevoel krijgt. Met vele voorzieningen op loopafstand, zoals een winkelcentrum, basisschool en gezellig eetcafé, kun je hier fijn wonen. Voor stadsavonturen of ontspanning bereik je binnen 10 minuten fietsen het sport- en recreatiegebied Kardinge of het bruisende centrum van Groningen. De perfecte balans tussen rust en wonen met alles binnen handbereik!
INDELING
Begane grond: entree/hal, toiletruimte, woonkamer met aansluitend een open keuken van samen ca. 25 m². De keukenopstelling is voorzien van een 4-pits gasfornuis met oven en een afzuigkap. Vanuit de keuken heb je toegang tot de bijkeuken met witgoedaansluiting en deur naar de tuin. De kamer van ca. 13 m² kun je gebruiken als slaapkamer of een kantoorruimte.
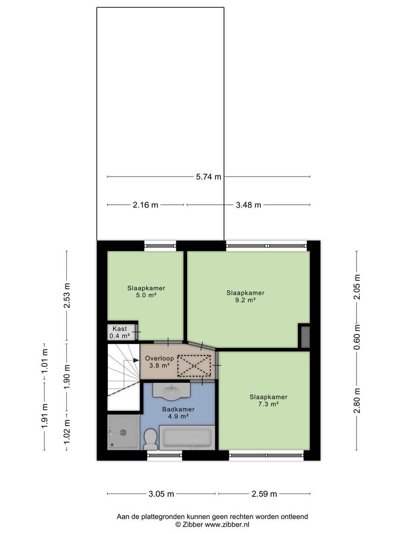
Eerste verdieping: overloop, drie slaapkamers van 9, 7 en 5 m² waarvan de laatste een vaste kast heeft. De badkamer is optimaal ingedeeld met een ligbad, douche, wastafelmeubel en tweede toilet.
Tweede verdieping: door middel van een vlizotrap te bereiken bergvliering.
BUITENRUIMTE
De woning heeft aan de zijkant een nette tuin, waarbij de ligging op het zuidwesten zorgt voor de optimale zonsituatie. De beschutting geeft de mogelijkheid om met privacy in de tuin te zitten. Achterin de tuin staat de garage van ca. 16 m² met aansluitend een carport waardoor er overdekte geparkeerd kan worden op eigen terrein. Tevens is er een tuinberging aanwezig ten behoeve van de opslag van tuingereedschap.
GOED OM TE WETEN
- nette hoekwoning die je naar smaak kunt inrichten;
- slaapkamer op de begane grond;
- stenen garage met carport en oprit;
- cv-ketel Vaillant 2014 (eigendom);
-niet-zelfbewoningsclausule van toepassing;
- aanvaarding in overleg, kan snel.
De woning staat in een groene en kindvriendelijke buurt, waarbij je het dorpse gevoel krijgt. Met vele voorzieningen op loopafstand, zoals een winkelcentrum, basisschool en gezellig eetcafé, kun je hier fijn wonen. Voor stadsavonturen of ontspanning bereik je binnen 10 minuten fietsen het sport- en recreatiegebied Kardinge of het bruisende centrum van Groningen. De perfecte balans tussen rust en wonen met alles binnen handbereik!
INDELING
Begane grond: entree/hal, toiletruimte, woonkamer met aansluitend een open keuken van samen ca. 25 m². De keukenopstelling is voorzien van een 4-pits gasfornuis met oven en een afzuigkap. Vanuit de keuken heb je toegang tot de bijkeuken met witgoedaansluiting en deur naar de tuin. De kamer van ca. 13 m² kun je gebruiken als slaapkamer of een kantoorruimte.
Eerste verdieping: overloop, drie slaapkamers van 9, 7 en 5 m² waarvan de laatste een vaste kast heeft. De badkamer is optimaal ingedeeld met een ligbad, douche, wastafelmeubel en tweede toilet.
Tweede verdieping: door middel van een vlizotrap te bereiken bergvliering.
BUITENRUIMTE
De woning heeft aan de zijkant een nette tuin, waarbij de ligging op het zuidwesten zorgt voor de optimale zonsituatie. De beschutting geeft de mogelijkheid om met privacy in de tuin te zitten. Achterin de tuin staat de garage van ca. 16 m² met aansluitend een carport waardoor er overdekte geparkeerd kan worden op eigen terrein. Tevens is er een tuinberging aanwezig ten behoeve van de opslag van tuingereedschap.
GOED OM TE WETEN
- nette hoekwoning die je naar smaak kunt inrichten;
- slaapkamer op de begane grond;
- stenen garage met carport en oprit;
- cv-ketel Vaillant 2014 (eigendom);
-niet-zelfbewoningsclausule van toepassing;
- aanvaarding in overleg, kan snel.
Over dit object
Overdracht
| Status | verkocht |
|---|---|
| Prijs | € 272.500 k.k. |
Bouw
| Bouwjaar | 1958 |
|---|---|
| Bouwvorm | bestaande bouw |
| Type Object | Woonhuis |
| Hoofdfunctie | Woonruimte |
Indeling
| Woonoppervlakte | 86 m² |
|---|---|
| Perceeloppervlakte | 229 m² |
| Woning Inhoud | 304 m³ |
| Kamers | 5 (4 slaapkamers) |
Energie
| Energielabel | D |
|---|
















































