
Fongersplaats 65
Groningen
contact met
Riant Makelaars Groningen
| 050 850 33 56 | |
| info@riantmakelaars.nl | |
| 050 850 33 56 | |
| Hereweg 29, 9725 AA Groningen |
Heerlijk wonen aan de Fongersplaats – stadsleven met rust en ruimte!
Wonen op een van de fijnste plekjes in Groningen? Dan is deze moderne en energiezuinige maisonnette aan de Fongersplaats 65 precies wat je zoekt! Gelegen in het karakteristieke en sfeervolle complex ‘Fongersstede’, woon je hier in een rustige en groene omgeving, op steenworp afstand van het bruisende stadscentrum en het centraal station. De perfecte balans tussen levendig en ontspannen wonen!
Voor je auto is altijd plek aangezien je beschikt over een eigen parkeerplaats in de parkeergarage, tevens beschik je over een eigen afsluitbare (fietsen-)berging op de begane grond en een externe berging op je woonetage.
Dit goed onderhouden appartement is verdeeld over twee verdiepingen en biedt volop ruimte, comfort én licht – mede dankzij de gunstige ligging van de woonkamer en het balkon op het westen kun je tot in de avond genieten van de zon.
Indeling
Via het trappenhuis bereik je de maisonnette. Ook is er een lift aanwezig.
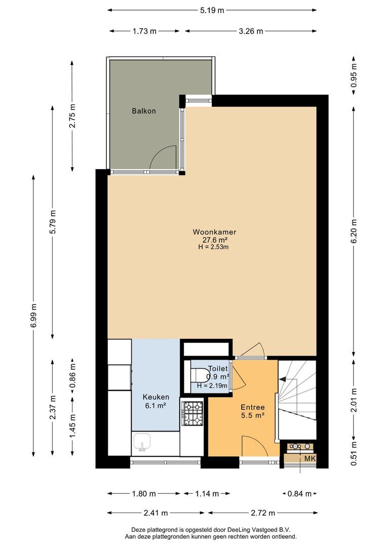
Woon etage: Entree/hal met modern toilet; een lichte en royale woonkamer (ca. 28 m²) op het westen met toegang tot het zonnige balkon. De open keuken (ca. 6 m²) is uitgerust met diverse inbouwapparatuur, waaronder een gaskookplaat, intern ventilatiesysteem, oven, vriezer en koelkast. De woonkamer vormt een gezellige en open leefruimte, perfect voor ontspanning of gezellig samenzijn.
Slaap etage: Overloop met handige trapkast met wasmachineaansluiting en aparte kast met de cv-installatie. Twee comfortabele slaapkamers (resp. ca. 8 en 12 m²) en een keurige badkamer met inloopdouche, wastafelmeubel en tweede toilet.
Pluspunten op een rij:
* Energiezuinig wonen met energielabel A
* Cv-ketel uit 2016 (eigendom)
* Eigen parkeerplaats in de afgesloten parkeergarage
* 2 externe privé (fietsen)bergingen
* Actieve en gezonde VvE via Pandgarant, bijdrage: € 209,- per maand (inclusief bergingen en parkeerplaats)
* Gezamenlijke binnentuin met speelgelegenheid
* Lift aanwezig
* Supermarkt op slechts 300 meter afstand
* Op loopafstand van het centraal station en de binnenstad
Deze maisonnette biedt het comfort van een modern appartement, de rust van een groene woonomgeving én de gemakken van de stad binnen handbereik. Ideaal voor wie centraal wil wonen, zonder in te leveren op ruimte en kwaliteit.
Kom langs en ervaar het zelf – jouw nieuwe thuis aan de Fongersplaats wacht op je!
Wonen op een van de fijnste plekjes in Groningen? Dan is deze moderne en energiezuinige maisonnette aan de Fongersplaats 65 precies wat je zoekt! Gelegen in het karakteristieke en sfeervolle complex ‘Fongersstede’, woon je hier in een rustige en groene omgeving, op steenworp afstand van het bruisende stadscentrum en het centraal station. De perfecte balans tussen levendig en ontspannen wonen!
Voor je auto is altijd plek aangezien je beschikt over een eigen parkeerplaats in de parkeergarage, tevens beschik je over een eigen afsluitbare (fietsen-)berging op de begane grond en een externe berging op je woonetage.
Dit goed onderhouden appartement is verdeeld over twee verdiepingen en biedt volop ruimte, comfort én licht – mede dankzij de gunstige ligging van de woonkamer en het balkon op het westen kun je tot in de avond genieten van de zon.
Indeling
Via het trappenhuis bereik je de maisonnette. Ook is er een lift aanwezig.
Woon etage: Entree/hal met modern toilet; een lichte en royale woonkamer (ca. 28 m²) op het westen met toegang tot het zonnige balkon. De open keuken (ca. 6 m²) is uitgerust met diverse inbouwapparatuur, waaronder een gaskookplaat, intern ventilatiesysteem, oven, vriezer en koelkast. De woonkamer vormt een gezellige en open leefruimte, perfect voor ontspanning of gezellig samenzijn.
Slaap etage: Overloop met handige trapkast met wasmachineaansluiting en aparte kast met de cv-installatie. Twee comfortabele slaapkamers (resp. ca. 8 en 12 m²) en een keurige badkamer met inloopdouche, wastafelmeubel en tweede toilet.
Pluspunten op een rij:
* Energiezuinig wonen met energielabel A
* Cv-ketel uit 2016 (eigendom)
* Eigen parkeerplaats in de afgesloten parkeergarage
* 2 externe privé (fietsen)bergingen
* Actieve en gezonde VvE via Pandgarant, bijdrage: € 209,- per maand (inclusief bergingen en parkeerplaats)
* Gezamenlijke binnentuin met speelgelegenheid
* Lift aanwezig
* Supermarkt op slechts 300 meter afstand
* Op loopafstand van het centraal station en de binnenstad
Deze maisonnette biedt het comfort van een modern appartement, de rust van een groene woonomgeving én de gemakken van de stad binnen handbereik. Ideaal voor wie centraal wil wonen, zonder in te leveren op ruimte en kwaliteit.
Kom langs en ervaar het zelf – jouw nieuwe thuis aan de Fongersplaats wacht op je!
Over dit object
Overdracht
| Status | verkocht |
|---|---|
| Prijs | € 300.000 k.k. |
Bouw
| Bouwjaar | 1981 |
|---|---|
| Bouwvorm | bestaande bouw |
| Type Object | Appartement |
| Hoofdfunctie | Woonruimte |
Indeling
| Woonoppervlakte | 73 m² |
|---|---|
| Woning Inhoud | 234 m³ |
| Kamers | 3 (2 slaapkamers) |
Energie
| Energielabel | A |
|---|






































































