
Es 61
Leek
contact met
Bruining en De Reus
| 0594 55 43 55 | |
| leek@bruiningdereus.nl | |
| 06 8281 0106 | |
| Boveneind 20, 9351 AP Leek | |
| bruiningdereus.nl |
INSTAPKLAAR GEZINSHUIS | FRAAIE LIGGING | MODERNE AFWERKING | INCL. GARAGE EN OVERKAPPING
Aan de rand van de geliefde, ruim opgezette woonwijk Oostindie mogen wij u deze uitstekend onderhouden helft van een dubbel woonhuis aanbieden, gelegen op een prachtige locatie aan een royale houtsingel. De woning is gebouwd in 2016, is optimaal geïsoleerd en tot in de puntjes afgewerkt.
De woning beschikt over een lichte, tuingerichte woonkamer met aangrenzende terrasoverkapping, een moderne open keuken, drie volwaardige slaapkamers en een royale zolderverdieping met mogelijkheid tot het creëren van een vierde slaapkamer. De aangebouwde stenen garage en de oprit met parkeergelegenheid op eigen terrein maken het geheel compleet. De zonnige en fraai aangelegde achtertuin biedt volop privacy en is een heerlijke plek om van het buitenleven te genieten.
Locatie
De woning is gelegen in een de zeer kindvriendelijke en groene woonwijk Oostindie. Voorzieningen als basisscholen, kinderopvang, speeltuinen, sportaccommodaties en een natuurpark bevinden zich op loopafstand. Het centrum van Leek én het prachtige landgoed Nienoord zijn eenvoudig per fiets bereikbaar. Dankzij de gunstige ligging nabij uitvalswegen bent u binnen 15 autominuten in zowel Groningen als Drachten. Ook het openbaar vervoer is uitstekend: op loopafstand bevindt zich een bushalte met een directe verbinding naar Groningen CS (ca. elke 15 minuten).
Indeling
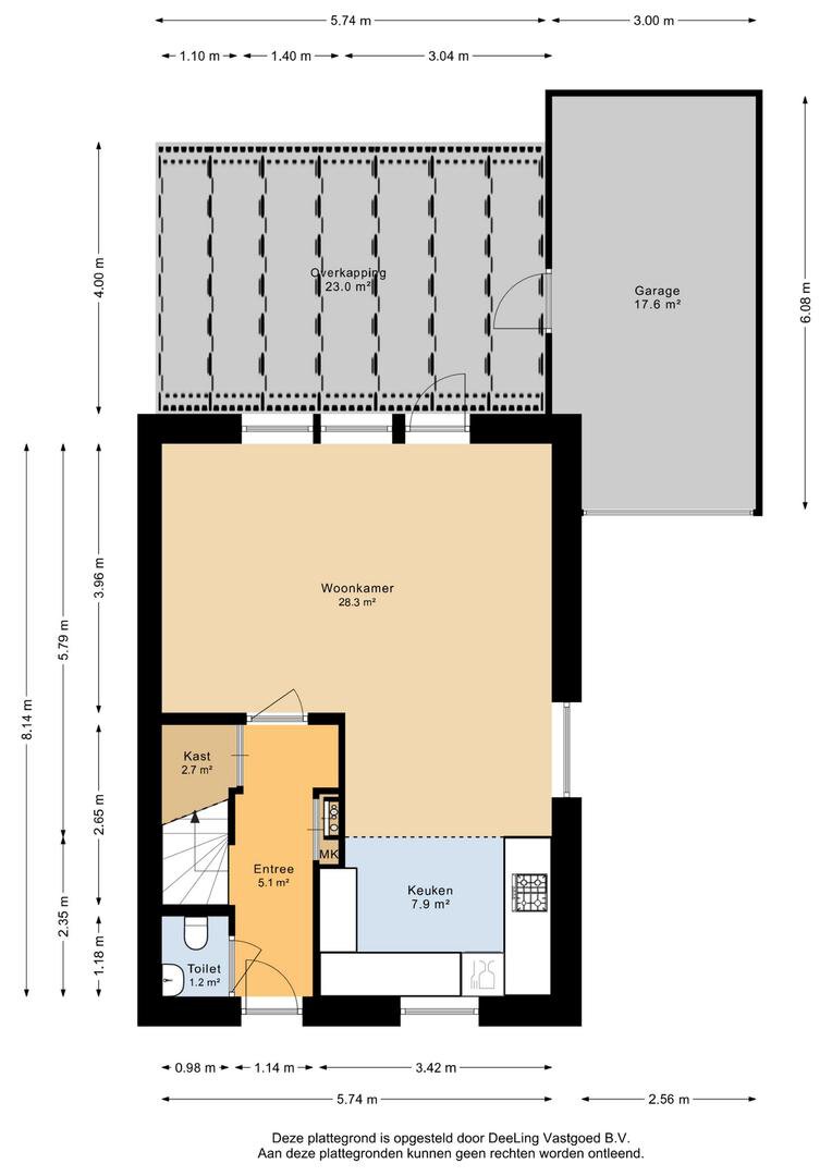
Begane grond:
Entree/hal met meterkast, moderne toiletruimte en praktische provisieruimte; lichte tuingerichte woonkamer met fraaie vloerafwerking en deur naar de overkapping/tuin. De open keuken aan de voorzijde is uitgerust met diverse inbouwapparatuur en biedt volop werk- en bergruimte. De gehele begane grond is voorzien van comfortabele vloerverwarming.
Eerste verdieping:
Overloop met toegang tot drie ruime slaapkamers en een aparte wasruimte. De moderne badkamer is compleet uitgevoerd met inloopdouche, toilet en wastafelmeubel. Eén van de slaapkamers beschikt over een vaste trap naar de zolderverdieping.
Tweede verdieping:
Royale, multifunctionele ruimte met dakraam. Uiteraard kan deze ook dienen als een vierde slaapkamer.
Bijgebouwen
Aangebouwde stenen garage met elektra en loopdeur naar de tuin.
Goed om te weten:
- Woonoppervlakte ca. 117 m²;
- Perceeloppervlakte 240 m²;
- Bouwjaar 2016;
- Volledig geïsoleerd (energielabel A);
- Voorzien van 4 zonnepanelen;
- Kunststof kozijnen, dus onderhoudsarm;
- Begane grond voorzien van vloerverwarming;
- Goed onderhouden en zorgvuldig bewoonde woning;
- Gelegen in een rustige, kindvriendelijke woonomgeving;
- Aanvaarding in overleg.
Tip: bekijk ook de woningvideo voor een complete indruk!
Interesse? Deze instapklare woning aan de Es 61 is helemaal klaar voor een nieuwe eigenaar. Maak snel een afspraak voor een bezichtiging en ontdek alle mogelijkheden van deze fantastische woning!
Aan de rand van de geliefde, ruim opgezette woonwijk Oostindie mogen wij u deze uitstekend onderhouden helft van een dubbel woonhuis aanbieden, gelegen op een prachtige locatie aan een royale houtsingel. De woning is gebouwd in 2016, is optimaal geïsoleerd en tot in de puntjes afgewerkt.
De woning beschikt over een lichte, tuingerichte woonkamer met aangrenzende terrasoverkapping, een moderne open keuken, drie volwaardige slaapkamers en een royale zolderverdieping met mogelijkheid tot het creëren van een vierde slaapkamer. De aangebouwde stenen garage en de oprit met parkeergelegenheid op eigen terrein maken het geheel compleet. De zonnige en fraai aangelegde achtertuin biedt volop privacy en is een heerlijke plek om van het buitenleven te genieten.
Locatie
De woning is gelegen in een de zeer kindvriendelijke en groene woonwijk Oostindie. Voorzieningen als basisscholen, kinderopvang, speeltuinen, sportaccommodaties en een natuurpark bevinden zich op loopafstand. Het centrum van Leek én het prachtige landgoed Nienoord zijn eenvoudig per fiets bereikbaar. Dankzij de gunstige ligging nabij uitvalswegen bent u binnen 15 autominuten in zowel Groningen als Drachten. Ook het openbaar vervoer is uitstekend: op loopafstand bevindt zich een bushalte met een directe verbinding naar Groningen CS (ca. elke 15 minuten).
Indeling
Begane grond:
Entree/hal met meterkast, moderne toiletruimte en praktische provisieruimte; lichte tuingerichte woonkamer met fraaie vloerafwerking en deur naar de overkapping/tuin. De open keuken aan de voorzijde is uitgerust met diverse inbouwapparatuur en biedt volop werk- en bergruimte. De gehele begane grond is voorzien van comfortabele vloerverwarming.
Eerste verdieping:
Overloop met toegang tot drie ruime slaapkamers en een aparte wasruimte. De moderne badkamer is compleet uitgevoerd met inloopdouche, toilet en wastafelmeubel. Eén van de slaapkamers beschikt over een vaste trap naar de zolderverdieping.
Tweede verdieping:
Royale, multifunctionele ruimte met dakraam. Uiteraard kan deze ook dienen als een vierde slaapkamer.
Bijgebouwen
Aangebouwde stenen garage met elektra en loopdeur naar de tuin.
Goed om te weten:
- Woonoppervlakte ca. 117 m²;
- Perceeloppervlakte 240 m²;
- Bouwjaar 2016;
- Volledig geïsoleerd (energielabel A);
- Voorzien van 4 zonnepanelen;
- Kunststof kozijnen, dus onderhoudsarm;
- Begane grond voorzien van vloerverwarming;
- Goed onderhouden en zorgvuldig bewoonde woning;
- Gelegen in een rustige, kindvriendelijke woonomgeving;
- Aanvaarding in overleg.
Tip: bekijk ook de woningvideo voor een complete indruk!
Interesse? Deze instapklare woning aan de Es 61 is helemaal klaar voor een nieuwe eigenaar. Maak snel een afspraak voor een bezichtiging en ontdek alle mogelijkheden van deze fantastische woning!
Over dit object
Overdracht
| Status | verkocht |
|---|---|
| Prijs | € 415.000 k.k. |
Bouw
| Bouwjaar | 2016 |
|---|---|
| Bouwvorm | bestaande bouw |
| Type Object | Woonhuis |
| Hoofdfunctie | Woonruimte |
Indeling
| Woonoppervlakte | 117 m² |
|---|---|
| Perceeloppervlakte | 240 m² |
| Woning Inhoud | 514 m³ |
| Kamers | 5 (4 slaapkamers) |
Energie
| Energielabel | A |
|---|





























































































