
De Vries Lamstraat 2
Groningen
contact met
Riant Makelaars Groningen
| 050 850 33 56 | |
| info@riantmakelaars.nl | |
| 050 850 33 56 | |
| Hereweg 29, 9725 AA Groningen |
Goed onderhouden hoekwoning met vier slaapkamers, twee badkamers en een vrijstaande garage. Dankzij de badkamer en slaapkamer op de begane grond, is het mogelijk om hier levensloopbestendig te wonen. Daarnaast is dit ook een ideale gezinswoning vanwege de ruimte en natuurlijk de twee badkamers. De woning heeft aan de voorzijde en gehele eerste verdieping kunststof kozijnen met HR++ beglazing, een nieuwere cv-ketel en de woning is goed na-geïsoleerd. Hierdoor kun je ook energiezuinig wonen!
De woning is gelegen in een kindvriendelijke buurt in het dorp Hoogkerk, met verschillende speeltuintjes op loopafstand. Met alle voorzieningen in de buurt is het hier prettig wonen en mocht je naar de stad willen dan zit ook de bushalte om de hoek. Daarnaast is er een goede verbinding met de A7 en A28. Op loopafstand ligt de Ruskenveense plas, waar je kunt wandelen en zomers lekker kunt zwemmen. Het prachtige natuurgebied de Onlanden is goed met de fiets te bereiken. Hier kun je een fijne fietstocht maken of wandelen in de natuur.
INDELING
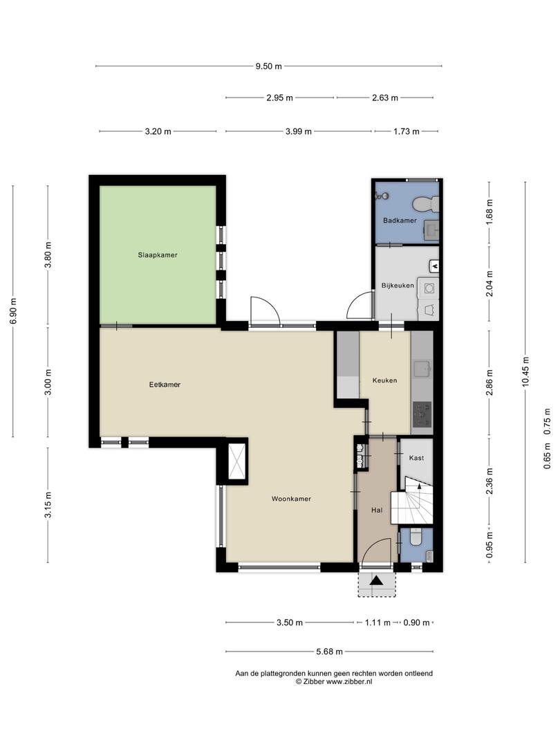
Begane grond: entree/hal met trapkast, toiletruimte, ruime woonkamer met aansluitend een eetkamer van samen ca. 31 m². De openhaard in de woonkamer geeft daarbij extra sfeer! Vanuit de eetkamer loop je zo de groene achtertuin in. De slaapkamer aan de achterzijde is ca. 12 m² en heeft zicht op de tuin. De dichte keuken van ca. 7 m² is voorzien van een nette, aangepaste keukenopstelling met inductiekookplaat, afzuigkap, koelkast, combi-oven en vaatwasser. Vanuit de keuken bereik je de bijkeuken met witgoedaansluiting, cv-opstelling en deur naar de tuin. Hier bevindt zich eveneens de badkamer met douche, wastafel en toilet.
Eerste verdieping: overloop met toegang tot de bergzolder, drie slaapkamers van ca. 12, 8 en 6 m² met allemaal een vaste kast. De badkamer heeft een douche en wastafel.
BUITENRUIMTE
Dankzij de hoekligging is het perceel ruim en is de mogelijkheid om zowel in de achtertuin als zijtuin in alle privacy te relaxen, in de zon of schaduw. De achtertuin is erg groen en beschut aangelegd. Er staat een vrijstaande stenen garage met eigen oprit op het perceel.
GOED OM TE WETEN
- de ideale gezinswoning met garage;
- mogelijkheid tot levensloopbestendig wonen;
- groene en netjes aangelegde tuin;
- parkeren op eigen terrein;
- voorzijde en bovenverdieping kunststof kozijnen met HR++ beglazing;
- achterzijde opnieuw gevoegd;
- nieuwe schoorsteen;
- spouwmuur is na-geïsoleerd;
- uitbouw is in 1990 gerealiseerd;
- cv-ketel Intergas 2022 (eigendom);
- stukje van de voortuin is gemeentegrond;
- aanvaarding in overleg.
De woning is gelegen in een kindvriendelijke buurt in het dorp Hoogkerk, met verschillende speeltuintjes op loopafstand. Met alle voorzieningen in de buurt is het hier prettig wonen en mocht je naar de stad willen dan zit ook de bushalte om de hoek. Daarnaast is er een goede verbinding met de A7 en A28. Op loopafstand ligt de Ruskenveense plas, waar je kunt wandelen en zomers lekker kunt zwemmen. Het prachtige natuurgebied de Onlanden is goed met de fiets te bereiken. Hier kun je een fijne fietstocht maken of wandelen in de natuur.
INDELING
Begane grond: entree/hal met trapkast, toiletruimte, ruime woonkamer met aansluitend een eetkamer van samen ca. 31 m². De openhaard in de woonkamer geeft daarbij extra sfeer! Vanuit de eetkamer loop je zo de groene achtertuin in. De slaapkamer aan de achterzijde is ca. 12 m² en heeft zicht op de tuin. De dichte keuken van ca. 7 m² is voorzien van een nette, aangepaste keukenopstelling met inductiekookplaat, afzuigkap, koelkast, combi-oven en vaatwasser. Vanuit de keuken bereik je de bijkeuken met witgoedaansluiting, cv-opstelling en deur naar de tuin. Hier bevindt zich eveneens de badkamer met douche, wastafel en toilet.
Eerste verdieping: overloop met toegang tot de bergzolder, drie slaapkamers van ca. 12, 8 en 6 m² met allemaal een vaste kast. De badkamer heeft een douche en wastafel.
BUITENRUIMTE
Dankzij de hoekligging is het perceel ruim en is de mogelijkheid om zowel in de achtertuin als zijtuin in alle privacy te relaxen, in de zon of schaduw. De achtertuin is erg groen en beschut aangelegd. Er staat een vrijstaande stenen garage met eigen oprit op het perceel.
GOED OM TE WETEN
- de ideale gezinswoning met garage;
- mogelijkheid tot levensloopbestendig wonen;
- groene en netjes aangelegde tuin;
- parkeren op eigen terrein;
- voorzijde en bovenverdieping kunststof kozijnen met HR++ beglazing;
- achterzijde opnieuw gevoegd;
- nieuwe schoorsteen;
- spouwmuur is na-geïsoleerd;
- uitbouw is in 1990 gerealiseerd;
- cv-ketel Intergas 2022 (eigendom);
- stukje van de voortuin is gemeentegrond;
- aanvaarding in overleg.
Over dit object
Overdracht
| Status | verkocht |
|---|---|
| Prijs | € 325.000 k.k. |
Bouw
| Bouwjaar | 1966 |
|---|---|
| Bouwvorm | bestaande bouw |
| Type Object | Woonhuis |
| Hoofdfunctie | Woonruimte |
Indeling
| Woonoppervlakte | 101 m² |
|---|---|
| Perceeloppervlakte | 263 m² |
| Woning Inhoud | 250 m³ |
| Kamers | 5 (4 slaapkamers) |
Energie
| Energielabel | C |
|---|






















































































