
Barnsteenstraat 44
Groningen
contact met
Riant Makelaars Groningen
| 050 850 33 56 | |
| groningen@riantmakelaars.nl | |
| 050 850 33 56 | |
| Hereweg 29, 9725 AA Groningen |
Nette eengezinswoning met vier slaapkamers en een fijne achtertuin met berging en achterom. Dankzij de ligging op het zuidoosten kun je hier gedurende dag lekker in de zon zitten. De gehele woning heeft kunststof kozijnen met dubbele beglazing. De ruime zolder biedt nog de mogelijkheid om hier een extra slaapkamer van te maken.
De woning is gelegen in een rustige straat in de wijk Vinkhuizen, met alle voorzieningen in het nabijgelegen winkelgebied en diverse scholen in de wijk. Je kunt alle kanten op. De binnenstad van Groningen bereik je met ca. 10 minuten fietsen, de ringweg van Groningen is binnen een minuut rijden te bereiken en mocht je juist lekker de rust opzoeken, kun je heerlijk wandelen in Het Roege Bos.
INDELING
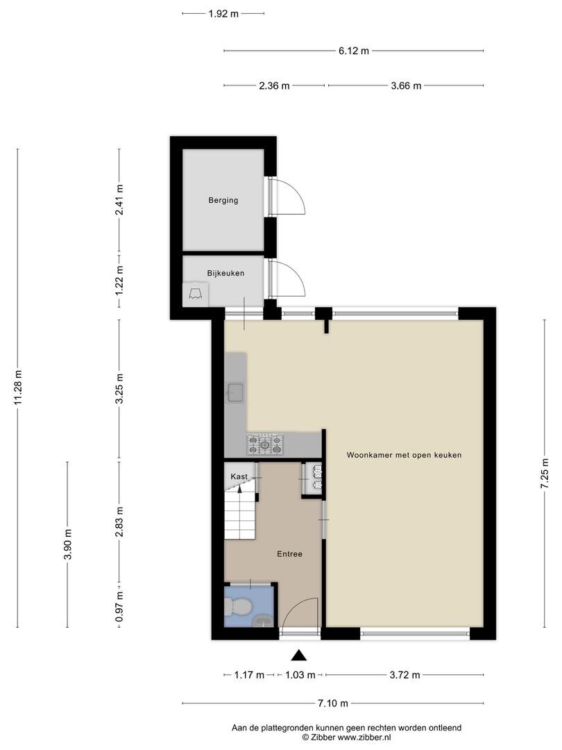
Begane grond: entree/hal, toiletruimte, lichte woonkamer van ca. 27 m² met open keuken van ca. 8 m². De keukenopstelling is zeer netjes met 5-pits gaskookplaat, afzuigkap, oven, koelkast, vriezer en vaatwasser. Vanuit de keuken bereik je de bijkeuken met witgoedaansluiting en deur naar de achtertuin.
Eerste verdieping: overloop, vier slaapkamers van ca. 11, 10, 8 en 5 m². De badkamer is zeer netjes en beschikt over een inloopdouche, wastafelmeubel en designradiator.
Tweede verdieping: door middel van een vlizotrap bereik je de ruime zolder van ca. 18 m² met cv-opstelling. Hier is het mogelijk om een slaapkamer te creeëren.
GOED OM TE WETEN
- de ideale gezinswoning met vier slaapkamers;
- zonnige tuin op het zuidoosten;
- gelegen nabij alle voorzieningen;
- kindvriendelijke woonwijk met speeltuintjes;
- kunststof kozijnen met dubbele beglazing;
- cv-ketel Intergas 2015 (eigendom);
- energielabel C;
- aanvaarding overleg, kan snel.
De woning is gelegen in een rustige straat in de wijk Vinkhuizen, met alle voorzieningen in het nabijgelegen winkelgebied en diverse scholen in de wijk. Je kunt alle kanten op. De binnenstad van Groningen bereik je met ca. 10 minuten fietsen, de ringweg van Groningen is binnen een minuut rijden te bereiken en mocht je juist lekker de rust opzoeken, kun je heerlijk wandelen in Het Roege Bos.
INDELING
Begane grond: entree/hal, toiletruimte, lichte woonkamer van ca. 27 m² met open keuken van ca. 8 m². De keukenopstelling is zeer netjes met 5-pits gaskookplaat, afzuigkap, oven, koelkast, vriezer en vaatwasser. Vanuit de keuken bereik je de bijkeuken met witgoedaansluiting en deur naar de achtertuin.
Eerste verdieping: overloop, vier slaapkamers van ca. 11, 10, 8 en 5 m². De badkamer is zeer netjes en beschikt over een inloopdouche, wastafelmeubel en designradiator.
Tweede verdieping: door middel van een vlizotrap bereik je de ruime zolder van ca. 18 m² met cv-opstelling. Hier is het mogelijk om een slaapkamer te creeëren.
GOED OM TE WETEN
- de ideale gezinswoning met vier slaapkamers;
- zonnige tuin op het zuidoosten;
- gelegen nabij alle voorzieningen;
- kindvriendelijke woonwijk met speeltuintjes;
- kunststof kozijnen met dubbele beglazing;
- cv-ketel Intergas 2015 (eigendom);
- energielabel C;
- aanvaarding overleg, kan snel.
Over dit object
Overdracht
| Status | verkocht |
|---|---|
| Prijs | € 275.000 k.k. |
Bouw
| Bouwjaar | 1969 |
|---|---|
| Bouwvorm | bestaande bouw |
| Type Object | Woonhuis |
| Hoofdfunctie | Woonruimte |
Indeling
| Woonoppervlakte | 91 m² |
|---|---|
| Perceeloppervlakte | 135 m² |
| Woning Inhoud | 350 m³ |
| Kamers | 5 (4 slaapkamers) |
Energie
| Energielabel | C |
|---|







































































