
Barnsteenstraat 39
Groningen
contact met
Riant Makelaars Groningen
| 050 850 33 56 | |
| groningen@riantmakelaars.nl | |
| 050 850 33 56 | |
| Hereweg 29, 9725 AA Groningen |
De ideale gezinswoning op een goede locatie! Deze goed onderhouden woning heeft drie slaapkamers en een achtertuin waar je na een drukke dag nog in de late middagzon kan zitten. De woning is voorzien van kunststof kozijnen met HR(+/++) glas en 12 zonnepanelen. Dankzij de uitbouw aan de achterzijde heb je een extra ruime living.
De woning is gelegen in een rustige straat in de wijk Vinkhuizen, met alle voorzieningen in het nabijgelegen winkelgebied en diverse scholen in de wijk. Je kunt alle kanten op. De binnenstad van Groningen bereik je met ca. 10 minuten fietsen, de ringweg van Groningen is binnen een minuut rijden te bereiken en mocht je juist lekker de rust opzoeken, kun je heerlijk wandelen in Het Roege Bos.
INDELING
Begane grond: entree/hal met toilet, trapkast, heerlijk lichte woonkamer van ca. 46 m² met aansluitend een open keuken van ca. 10 m². De keuken heeft een nette keukenopstelling voorzien van o.a. een 4-pits gaskookplaat, afzuigkap, oven, koelkast en vaatwasser. Door middel van de openslaande deuren loop je zo de achtertuin in. Ideaal als je zomers lekker buiten wil eten!
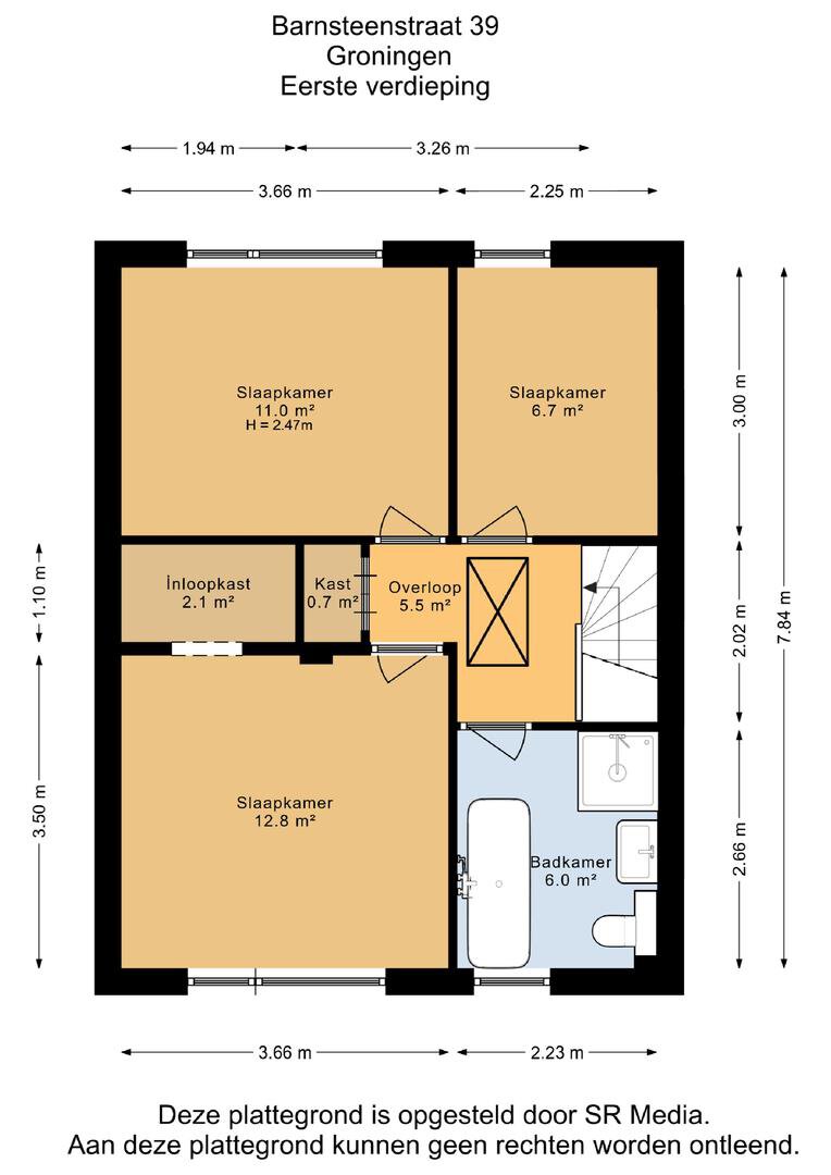
Eerste verdieping: overloop met vaste kast, slaapkamer van ca. 13 m² met een inloopkast, slaapkamer van ca. 11 m² en een slaapkamer 7 m². De badkamer van 6 m² is voorzien van een ligbad, douche, wastafel en tweede toilet.
Tweede verdieping: via vlizotrap bereik je de royale zolderberging met cv-ketel.
GOED OM TE WETEN
- de ideale gezinswoning, uitgebouwd;
- achtertuin met houten berging en achterom;
- kunststof kozijnen met dubbele beglazing (deels HR+/++);
- cv-ketel AWB 2013 (eigendom);
- voorzien van 12 zonnepanelen;
- moderne meterkast;
- niet zelfbewoningsclausule en ouderdomsclausule zijn van toepassing;
- voortuin momenteel nog in bruikleen;
- aanvaarding in overleg, kan snel.
De woning is gelegen in een rustige straat in de wijk Vinkhuizen, met alle voorzieningen in het nabijgelegen winkelgebied en diverse scholen in de wijk. Je kunt alle kanten op. De binnenstad van Groningen bereik je met ca. 10 minuten fietsen, de ringweg van Groningen is binnen een minuut rijden te bereiken en mocht je juist lekker de rust opzoeken, kun je heerlijk wandelen in Het Roege Bos.
INDELING
Begane grond: entree/hal met toilet, trapkast, heerlijk lichte woonkamer van ca. 46 m² met aansluitend een open keuken van ca. 10 m². De keuken heeft een nette keukenopstelling voorzien van o.a. een 4-pits gaskookplaat, afzuigkap, oven, koelkast en vaatwasser. Door middel van de openslaande deuren loop je zo de achtertuin in. Ideaal als je zomers lekker buiten wil eten!
Eerste verdieping: overloop met vaste kast, slaapkamer van ca. 13 m² met een inloopkast, slaapkamer van ca. 11 m² en een slaapkamer 7 m². De badkamer van 6 m² is voorzien van een ligbad, douche, wastafel en tweede toilet.
Tweede verdieping: via vlizotrap bereik je de royale zolderberging met cv-ketel.
GOED OM TE WETEN
- de ideale gezinswoning, uitgebouwd;
- achtertuin met houten berging en achterom;
- kunststof kozijnen met dubbele beglazing (deels HR+/++);
- cv-ketel AWB 2013 (eigendom);
- voorzien van 12 zonnepanelen;
- moderne meterkast;
- niet zelfbewoningsclausule en ouderdomsclausule zijn van toepassing;
- voortuin momenteel nog in bruikleen;
- aanvaarding in overleg, kan snel.
Over dit object
Overdracht
| Status | verkocht |
|---|---|
| Prijs | € 319.000 k.k. |
Bouw
| Bouwjaar | 1969 |
|---|---|
| Bouwvorm | bestaande bouw |
| Type Object | Woonhuis |
| Hoofdfunctie | Woonruimte |
Indeling
| Woonoppervlakte | 104 m² |
|---|---|
| Perceeloppervlakte | 115 m² |
| Woning Inhoud | 379 m³ |
| Kamers | 4 (3 slaapkamers) |
Energie
| Energielabel | B |
|---|










































































