
Abel Tasmanstraat 6 b
Groningen
contact met
Riant Makelaars Groningen
| 050 850 33 56 | |
| groningen@riantmakelaars.nl | |
| 050 850 33 56 | |
| Hereweg 29, 9725 AA Groningen |
Goed onderhouden bovenwoning met twee slaapkamers, op zeer goede locatie gelegen. De woning is door de jaren heen gemoderniseerd, met behoud van de sfeer die bij een charmante bovenwoning als deze hoort! De moderne open keuken geeft de mogelijkheid om in gezelschap lekker te koken en het balkon op het oosten heeft de ochtendzon. Heerlijk wakker worden met een kopje koffie, het geluid van de vogels en het vroege zonnetje op je gezicht!
De ligging is top, namelijk in een rustige straat in de wijk Zeeheldenbuurt. Zowel de binnenstad als het Centraal Station liggen op loopafstand. Wil je even rustig in de natuur wandelen, dan kun je zo naar het Stadspark. Met de auto ben je binnen enkele minuten op de ringweg van Groningen. Kortom: rustig wonen met alles binnen handbereik!
INDELING
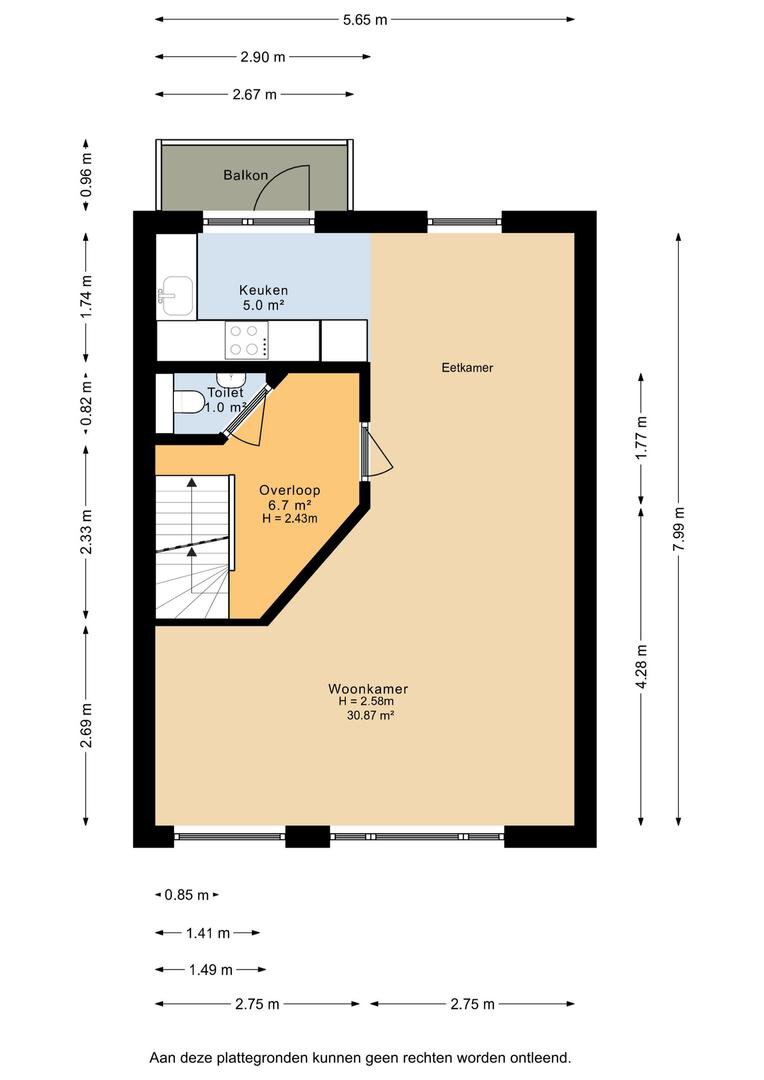
Begane grond: entree/hal met trapopgang.
Eerste verdieping: overkoop, toiletruimte, lichte L-vormige woonkamer van ca. 31 m² met aansluitend een open keuken van ca. 5 m² met deur naar het balkon. De keukenopstelling (2018) is modern en beschikt over een inductiekookplaat, afzuigkap, combi-magnetron, koel-vriescombinatie en vaatwasser.
Tweede verdieping: overloop met bergruimte voorzien van witgoedaansluiting en cv-opstelling, een slaapkamer van ca. 11 m² met een kastenwand en een slaapkamer van ca. 9 m². De nette badkamer heeft een ligbad, douchecabine, wastafel en tweede toilet.
Derde verdieping: bergzolder, toegankelijk middels een vlizotrap.
GOED OM TE WETEN
- sfeervolle bovenwoning, instapklaar;
- gelegen in de gewilde Zeeheldenbuurt;
- alle voorzieningen op loopafstand;
- cv-ketel Intergas (eigendom);
- plafond tussen tweede en derde verdieping geïsoleerd;
- grotendeels dubbelglas;
- energielabel C;
- actieve VvE met een maandelijkse bijdrage van € 193,77;
- aanvaarding in overleg.
De ligging is top, namelijk in een rustige straat in de wijk Zeeheldenbuurt. Zowel de binnenstad als het Centraal Station liggen op loopafstand. Wil je even rustig in de natuur wandelen, dan kun je zo naar het Stadspark. Met de auto ben je binnen enkele minuten op de ringweg van Groningen. Kortom: rustig wonen met alles binnen handbereik!
INDELING
Begane grond: entree/hal met trapopgang.
Eerste verdieping: overkoop, toiletruimte, lichte L-vormige woonkamer van ca. 31 m² met aansluitend een open keuken van ca. 5 m² met deur naar het balkon. De keukenopstelling (2018) is modern en beschikt over een inductiekookplaat, afzuigkap, combi-magnetron, koel-vriescombinatie en vaatwasser.
Tweede verdieping: overloop met bergruimte voorzien van witgoedaansluiting en cv-opstelling, een slaapkamer van ca. 11 m² met een kastenwand en een slaapkamer van ca. 9 m². De nette badkamer heeft een ligbad, douchecabine, wastafel en tweede toilet.
Derde verdieping: bergzolder, toegankelijk middels een vlizotrap.
GOED OM TE WETEN
- sfeervolle bovenwoning, instapklaar;
- gelegen in de gewilde Zeeheldenbuurt;
- alle voorzieningen op loopafstand;
- cv-ketel Intergas (eigendom);
- plafond tussen tweede en derde verdieping geïsoleerd;
- grotendeels dubbelglas;
- energielabel C;
- actieve VvE met een maandelijkse bijdrage van € 193,77;
- aanvaarding in overleg.
Over dit object
Overdracht
| Status | verkocht |
|---|---|
| Prijs | € 295.000 k.k. |
Bouw
| Bouwjaar | 1921 |
|---|---|
| Bouwvorm | bestaande bouw |
| Type Object | Appartement |
| Hoofdfunctie | Woonruimte |
Indeling
| Woonoppervlakte | 85 m² |
|---|---|
| Woning Inhoud | 171 m³ |
| Kamers | 3 (2 slaapkamers) |
Energie
| Energielabel | C |
|---|



















































































