
Oosterweg 15
Groningen
contact met
Riant Makelaars Groningen
| 050 850 33 56 | |
| groningen@riantmakelaars.nl | |
| Hereweg 29, 9725 AA Groningen |
Sfeervolle en recent volledig gemoderniseerde benedenwoning met stadstuin op het zuidwesten! In een karakteristiek pand in de populaire Oosterpoortbuurt ligt deze speelse benedenwoning met maar liefst drie slaapkamers en twee badkamers. De woning is de afgelopen jaren volledig gemoderniseerd, waarbij het karakter van het pand mooi behouden is gebleven. Dankzij de prettige indeling en de living aan de achterzijde geniet je hier van veel licht, rust en privacy. De beschutte stadstuin op het zuidwesten maakt het geheel compleet: een fijne plek om tot laat op de dag van de zon te genieten.
De woning is gelegen in een leuke straat in de bruisende Oosterpoortwijk met het stadscentrum en alle voorzieningen op loopafstand. Binnen enkele minuten bereik je met de auto de ringweg van Groningen. Reis je liever met het openbaar vervoer? Zowel het centraal station als station Europapark zijn eenvoudig lopend of per fiets bereikbaar. Daarnaast ligt het nieuwe Zuiderplantsoen om de hoek, een heerlijke plek om te ontspannen, wandelen of hardlopen.
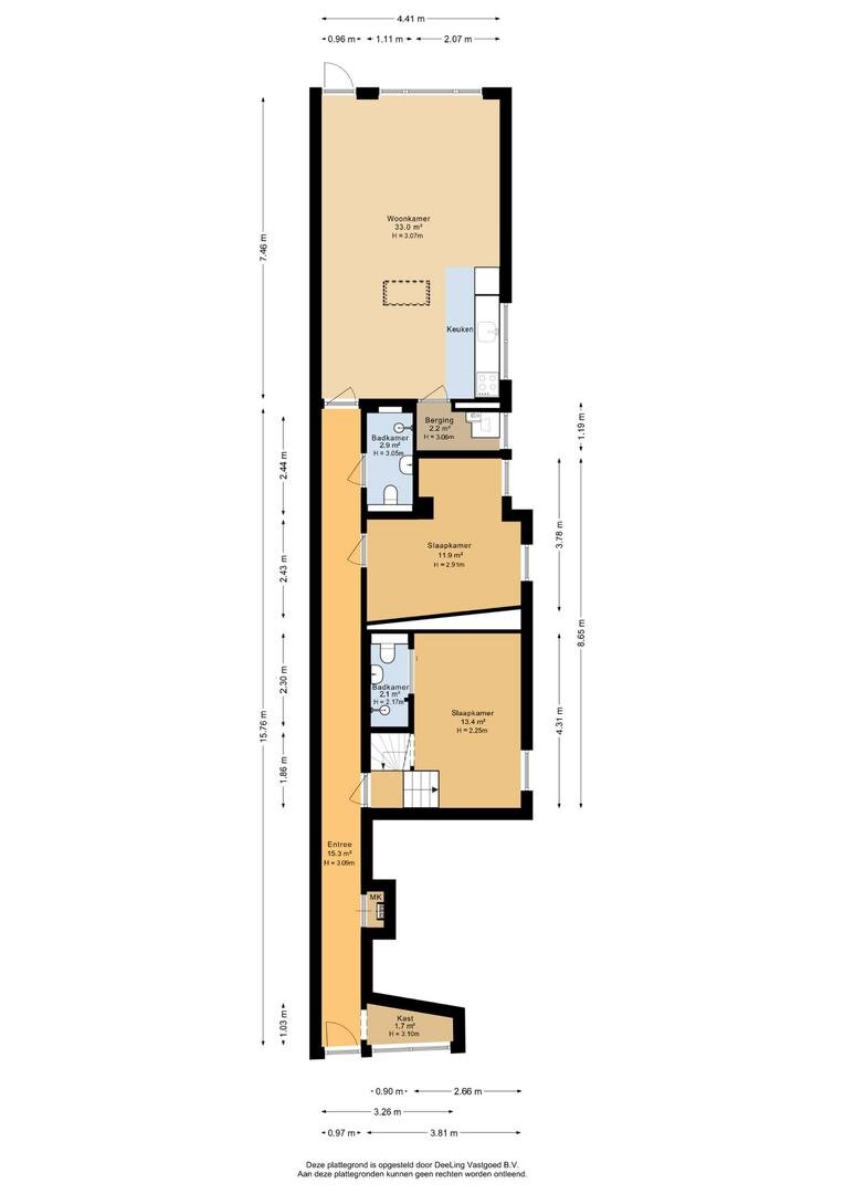
INDELING
Begane grond: entree met berging/etalage, slaapkamer van ca. 13 m² met eigen badkamer die is voorzien van douche, wastafel en toilet. Slaapkamer van ca. 12 m². In het souterrain is recent een derde slaapkamer gerealiseerd van ca. 13 m². Daarnaast is er vanuit de gang een tweede badkamer bereikbaar met douche, wastafel en toilet.
De lichte woonkamer met open keuken van ca. 33 m² bevindt zich aan de achterzijde van de woning en heeft een deur naar de tuin. De open keuken is geplaatst in 2021 en voorzien van een modern keukenblok met inductiekookplaat, afzuigkap, koelkast, vriezer en vaatwasser. Aansluitend is er een praktische berging met witgoedaansluiting en cv-opstelling.
GOED OM TE WETEN
- karakteristieke en speelse benedenwoning;
- recent volledig gemoderniseerd en gestukt;
- beschutte stadstuin op het zuidwesten;
- Nij Begun mogelijk per april 2026;
- keuken en badkamer(s) vernieuwd in 2021;
- het platte dak en de wanden zijn geïsoleerd;
- dakisolatie is niet meegenomen in het energielabel;
- voorzien van HR beglazing;
- deels kunststof kozijnen met HR++ beglazing;
- cv-ketel Intergas 2021 (eigendom);
- actieve VvE met een bijdrage van € 117,30 per maand;
- complex ligt deels op erfpacht wat is afgekocht tot 2055;
- aanvaarding in overleg.
De woning is gelegen in een leuke straat in de bruisende Oosterpoortwijk met het stadscentrum en alle voorzieningen op loopafstand. Binnen enkele minuten bereik je met de auto de ringweg van Groningen. Reis je liever met het openbaar vervoer? Zowel het centraal station als station Europapark zijn eenvoudig lopend of per fiets bereikbaar. Daarnaast ligt het nieuwe Zuiderplantsoen om de hoek, een heerlijke plek om te ontspannen, wandelen of hardlopen.
INDELING
Begane grond: entree met berging/etalage, slaapkamer van ca. 13 m² met eigen badkamer die is voorzien van douche, wastafel en toilet. Slaapkamer van ca. 12 m². In het souterrain is recent een derde slaapkamer gerealiseerd van ca. 13 m². Daarnaast is er vanuit de gang een tweede badkamer bereikbaar met douche, wastafel en toilet.
De lichte woonkamer met open keuken van ca. 33 m² bevindt zich aan de achterzijde van de woning en heeft een deur naar de tuin. De open keuken is geplaatst in 2021 en voorzien van een modern keukenblok met inductiekookplaat, afzuigkap, koelkast, vriezer en vaatwasser. Aansluitend is er een praktische berging met witgoedaansluiting en cv-opstelling.
GOED OM TE WETEN
- karakteristieke en speelse benedenwoning;
- recent volledig gemoderniseerd en gestukt;
- beschutte stadstuin op het zuidwesten;
- Nij Begun mogelijk per april 2026;
- keuken en badkamer(s) vernieuwd in 2021;
- het platte dak en de wanden zijn geïsoleerd;
- dakisolatie is niet meegenomen in het energielabel;
- voorzien van HR beglazing;
- deels kunststof kozijnen met HR++ beglazing;
- cv-ketel Intergas 2021 (eigendom);
- actieve VvE met een bijdrage van € 117,30 per maand;
- complex ligt deels op erfpacht wat is afgekocht tot 2055;
- aanvaarding in overleg.
Over dit object
Overdracht
| Status | verkocht onder voorbehoud |
|---|---|
| Prijs | € 375.000 k.k. |
Bouw
| Bouwjaar | 1915 |
|---|---|
| Bouwvorm | bestaande bouw |
| Type Object | Appartement |
| Hoofdfunctie | Woonruimte |
Indeling
| Woonoppervlakte | 102 m² |
|---|---|
| Woning Inhoud | 424 m³ |
| Kamers | 4 (3 slaapkamers) |
Energie
| Energielabel | C |
|---|





























































































